Telekom DataCenter v Bratislave
Priemyselná architektúra nie je o exhibícii tvarov či o prevratných architektonických ideách. Je predovšetkým službou. Slúži tomu, čo ukrýva. A v prípade Telekom DataCentra v Bratislave to nie je málo. Je tam to najaktuálnejšie, čo môže dátové centrum poskytnúť. Ide zároveň o budovu, ktorá kladie veľký dôraz na princípy Green IT, čiže efektívnejšie využitie jednotlivých zdrojov energie a infraštruktúry.
Zelená budova a jej technológieByť v súlade s Green IT znamená projektovať s dôrazom na najvyššie technologické, bezpečnostné a environmentálne štandardy. Medzi invenčné prístupy nového centra z pohľadu zelených technológií možno zaradiť napríklad spôsob chladenia využívajúci technológiu freecooling (využitie externého chladu počas zimných mesiacov), ktorý prispieva k dosiahnutiu energetickej efektívnosti centra definovanej cez očakávaný koeficient PUE = 1,5. PUE (Power Usage Effectiveness) je ukazovateľ vyjadrujúci energetickú účinnosť dátového centra. Vypočítava sa ako pomer medzi celkovou energiou spotrebovanou dátovým centrom a energiou spotrebovanou počítačovou infraštruktúrou umiestnenou v dátovom centre. Čím viac sa PUE blíži k hodnote 1, tým má dátové centrum vyššiu efektívnosť.
Infraštruktúra dátového centra akcentuje umiestnenie všetkých dôležitých komponentov v samostatnom požiarnom úseku s kontrolovaným vstupom, pričom servis týchto komponentov sa uskutočňuje bez nutnosti odstávky dátového centra. Systémy elektrického napájania a chladenia informačnej technológie inštalovanej na sále majú redundanciu zariadení aj rozvodov.
Kvôli zvýšenej bezpečnosti je stavba vybavená nepretržitým centrálnym monitoringom prevádzkových a kritických stavov podpornej technológie, detekciou zvýšenej teploty a nepretržitým monitoringom komunikačnej infraštruktúry. Súčasťou je aj systém kontroly vstupov, elektrický zabezpečovací systém, kamerový sledovací systém, detekcia zatečenia, skorá detekcia požiaru vysoko citlivým laserovým detektorom dymu (VESDA), elektronická požiarna signalizácia a stabilné hasiace zariadenie.
| Telekom DataCenter Miesto: Varšavská ul. 24/A, Bratislava Autor architektonického riešenia: Ing. arch. Jaroslav Kilián Projektanti architektonickej časti: Ing. arch. Jaroslav Kilián, Ing. arch. Miloš Djuračka Statika stavby: Ing. Pavel Čížek Technologický poradca: Ing. Ján Mihálik Investor: Slovak Telekom, a. s. Generálny zhotovovateľ: IBM Slovensko, s. r. o. Začiatok výstavby: 09/2010 Ukončenie výstavby: 05/2011 Plocha pozemku / Plot size: 5 100 m2 Zastavaná plocha: 790 m2 Podlažná plocha: 3 725 m2 Plocha výpočtových sál: 1 200 m2 Počet nadzemných podlaží: 5 Počet podzemných podlaží: 1 Investičné náklady bez DPH: 12 mil. eur Stavebná časť: Remeslo Stav Betonárske práce: BeKo, s. r. o. Vzduchotechnika: MF Team Elektrické zariadenia: EMM Nábytok: Kinnarps Kontaktný zatepľovací systém: Baumit Obklad: Fundermax Optické pripojenie budovy: Heizer Optik Reklamné prvky: Hanton |
Koncept stavby
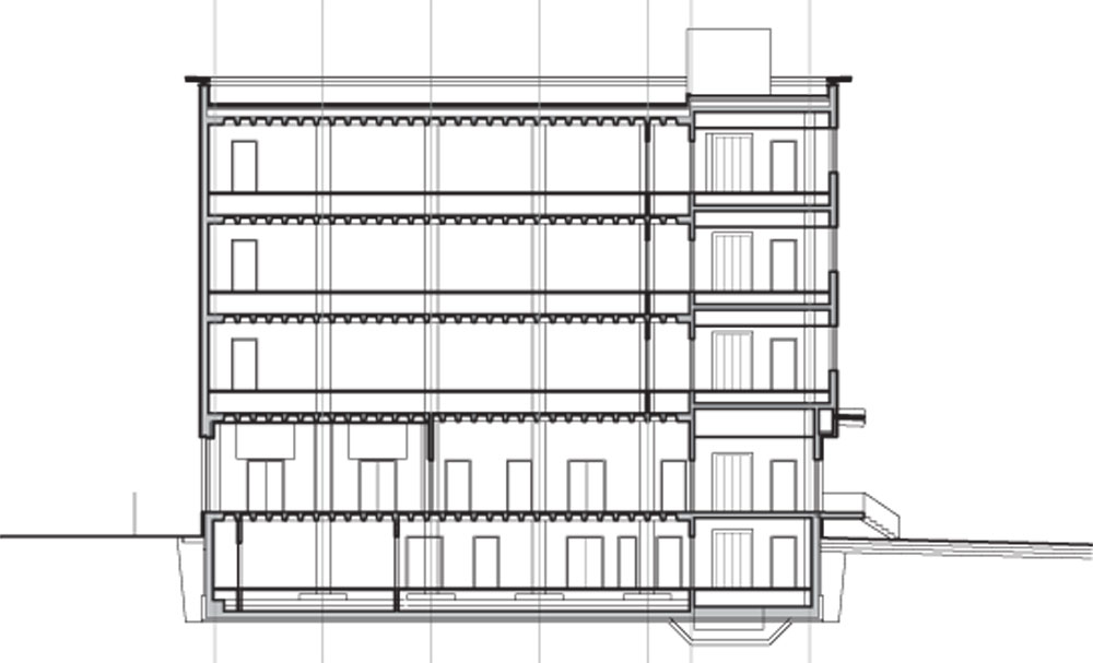
„Budova je príkladom úzkej spolupráce medzi architektom, technológom a statikom,“ hovorí autor projektu Ing. arch. Jaroslav Kilián. „Vysoké nároky investora na bezpečnosť, spoľahlivosť a dostupnosť prevádzky informačných systémov stanovili rámec pre dispozičný, priestorový a konštrukčný koncept stavby. Architektonická forma zámerne reflektuje zatvorenosť bezpečného betónového kubusu technologických prevádzok ako kontrast k navonok otvorenej časti modulu určeného na dohľad a personálny servis datacentra.“
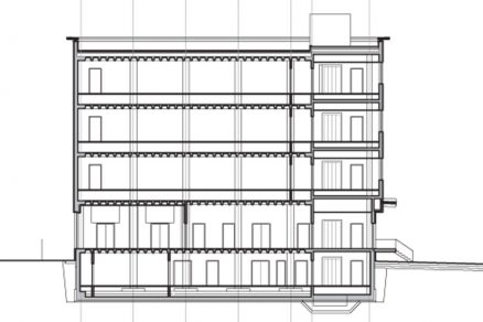
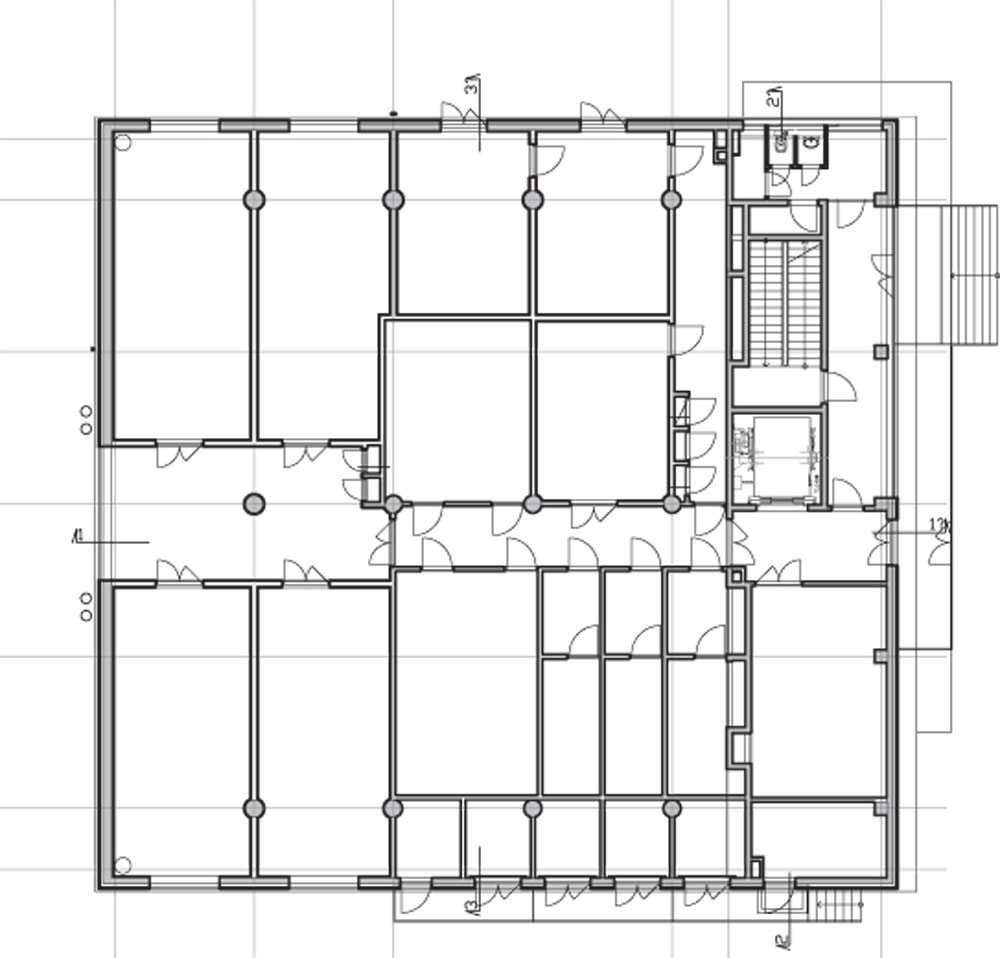
Stavba má štyri nadzemné a jedno podzemné podlažie. Tri podlažia slúžia pre výpočtové sály s celkovou výmerou 1 200 m2 a dve pre podpornú infraštruktúru. Dispozičné riešenie stavby vychádza z požiadavky na segregáciu prístupových práv užívateľov služieb informačnej technológie, správcov informačných systémov a správcov systémov podpornej technickej infraštruktúry. Komunikačný systém umožňuje bezpečný a bezbariérový prístup pre budúcu inštaláciu zariadení informačnej technológie.
Projekt je založený na robustných podporných technologických zariadeniach (zdroje záložného elektrického napájania, zdroje chladu), ktoré sú kvôli minimalizácii hlukovej záťaže do okolia i bezpečnosti umiestnené v interiéri stavby.
–>–>
Materiály a konštrukcie
„Výzvou pre návrh nosnej konštrukcie stavby boli vysoké nároky na užitočné zaťaženie stropov, veľké rozpätia a na seizmickú bezpečnosť stavby,“ tvrdí architekt Jaroslav Kilián. „My sme navrhli konštrukčnú sústavu monolitického betónu s kazetovými stropmi so skrytými prievlakmi, ktorá umožnila efektívne využitie územne povolenej výšky stavby, zjednodušila zakladania a zvýšila bezpečnosť stavby proti zaplaveniu. Konštrukcia tak ponúkla vysokú flexibilitu pre prestupy technologických rozvodov. Stropné konštrukcie a základy majú doskový charakter s väzbou na sústavu stĺpov a stenové útvary.“
Materiálové riešenie stavby sa zakladá na priznaní hlavných konštrukčných materiálov monolitického pohľadového betónu a neomietaných murív z betónových tvaroviek Liapor. Vzhľadom na zvýšené nároky na bezprašnosť prostredia sú steny natreté silikátovou exteriérovou farbou. Všetky technologické rozvody sú v technologickej časti priznané na povrchu.
Úpravy stien v personálnej časti sú sadrové s jemne sivým náterom. Na znížených sadrokartónových podhľadoch sú svietidlá a rozvody klimatizácie. Fasádu artikulujú hliníkové výplne otvorov, zámočnícke výrobky a technologické rozvody. Strešný plášť je z dôvodu zvýšených nárokov na garanciu neprerušenia prevádzky výpočtových systémov aj v prípade poruchy a nutnej opravy riešený so zdvojenou hydroizoláciou s možnosťou včasnej detekcie zatečenia do strešných vrstiev.
Dátové centrum má za sebou niekoľko mesiacov úspešnej prevádzky a potvrdilo, že aj napriek svojej veľkosti nie je určené výhradne veľkým firmám, ale svojimi službami je dostupné aj pre menšie spoločnosti.
(pet)
Foto: Dano Veselský, Jaroslav Kilián,
Slovak Telekom
Článok bol uverejnený v časopise ASB.
















