Aj priemysel vie inšpirovať kvalitnú architektúru
Priemyselná architektúra nemusí byť len bezduchá škatuľa, v ktorej sa ukrýva výroba alebo sklad. Môže byť aj architektúrou so všetkými svojimi atribútmi, ktorej primárna funkcia i pragmatická dispozícia sa citlivo a súčasne invenčne prejavujú aj na fasáde. Platí to aj pre výrobný a skladový areál spoločnosti TEKMAR SLOVENSKO, s. r. o., ktorý sa nachádza v Lužiankach pri Nitre. „Snažili sme sa o kompaktnú stavbu, v ktorej by sa vyčleňovala hmota administratívy od výrobnej časti,“ hovorí autor projektu Milan Csanda. „Napriek rozličnej konštrukčnej podstate bolo cieľom ich zjednotenie s prelínaním jednotlivých materiálov medzi obidvoma hmotami. Samozrejme, chceli sme dať techniku vnútorného prostredia navonok prostredníctvom výrazného motívu.“
Prelínanie a motívy na fasádeTo spomínané prelínanie materiálov medzi obidvoma hmotami sa rieši prienikom obvodového plášťa v podobe strieborno-sivého vlnitého hliníkového plechu, ktorý sa nachádza na administratívnej ako aj na skladovej časti. Administratíva sa odlišuje doplňujúcim materiálom – omietkou – so sýtou červenou farbou (odkaz na firemné farby investora) imitujúcou fasádny obklad a predsadeným drevom. Výplne otvorov sú zase hliníkové v tmavosivej farbe.

Pragmatická dispozícia
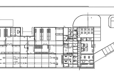
Dispozícia výrobno-skladovacieho objektu pragmaticky rešpektuje prísne požiadavky na prevádzkové riešenie výrobného objektu potravinárskeho charakteru. Vytvára viaceré autonómne subprevádzky, ktoré sú relatívne vzájomne nezávislé.

Výrobno-skladovacia časť cez spoločné vstupné, hygienické a sociálne priestory (šatne, jedáleň) sa člení na samotnú výrobnú a skladovaciu časť. Výrobná časť obsahuje ďalšie subčasti, ktoré zabezpečujú samotný výrobný proces (príprava surovín, výroba a balenie, administratívne priestory výroby) a skladovací proces (príjem surovín, expedícia výrobkov, obslužné priestory, pomocné skladovacie priestory a administratívne priestory skladu).
Pred administratívnou časťou budovy sa nachádza pomerne veľké predpolie v trojuholníkovom tvare, kde je umiestnené parkovisko pre zamestnancov firmy ako aj návštevníkov. Tvarovanie týchto spevnených plôch vytvára prepojenie medzi líniou Hlohoveckej cesty a osadením objektu.
Pri skladovacej časti objektu zo severovýchodnej strany sa nachádzajú spevnené plochy slúžiace na manipuláciu s príjmom surovín a expedíciou hotových výrobkov.
Kontext územia

Od začiatku bolo zreteľné, že táto budova sa bude konfrontovať s neďalekým Ematechom. Architektonický posun je očividný. Hmota administratívy pri Tekmare sa vyčleňuje od výrobno-skladovacej časti. Pri Ematechu zase išlo o aditívne priradenie administratívy ku skladu. „V prípade projektu pre Tekmar však bol k dispozícii mierne komplikovaný pozemok,“ pripomína architekt Csanda. „Navyše, investor veľmi aktívne vstupoval do dialógu a na začiatku tak vznikli tri-štyri návrhy, ktoré sa od seba radikálne líšili. Dokonca sa rozmýšľalo o kruhovom pôdoryse objektu a rozličných alternatívach usporiadania.“
Napriek tomu dostal architekt voľnú ruku, ktorú nezneužil. Veľmi pozorne sledoval brehy korigujúce daný typ architektúry ako aj vlastný názor vychádzajúci z neofunkcionalistického tvarovania. Bude zaujímavé sledovať ho aj naďalej, pretože v budúcnosti by sa podľa návrhu Milana Csandu mala neďaleko zrealizovať aj budova spoločnosti Campri.
Situácia
Výrobný a skladový areál Tekmar Slovensko

Generálny projektant: Architektonická kancelária Csanda-Piterka, Nitra
Autor: Ing. arch. Milan Csanda
Investor: TEKMAR SLOVENSKO, s. r. o.
Stavebno-technické riešenie: Ing. Marián Piterka
Statika: Ing. Ervín Hulák
Celkové náklady: približne 4,31 mil. eur (asi 130 mil. Sk)
Plocha pozemku: 9 775 m2
Celková zastavaná plocha: 3 059 m2
Obstavaný priestor: 17 441 m3
Parkovacie miesta: 20
Projekt na stavebné povolenie: marec 2007
Projekt pre realizáciu: jún 2007
Začiatok výstavby: február 2008
Ukončenie výstavby: november 2008
Generálny dodávateľ: Inpek, spol. s r. o., Nitra
Dodávatelia:
Nosné oceľové konštrukcie: HF Steel, spol. s r. o., Nitra,
Nosné betónové konštrukcie a obvodový plášť – omietky: Schenk Slovakia, spol. s r. o., Nitra
Obvodový plášť – plechové panely a strecha: Elora Slovakia, spol. s r. o., Čadca
Obvodový plášť – Alucobond, obklad TRESPA: G.A.D Studio Bratislava
Exteriérové a interiérové okná a zasklené steny: Noves okná, spol. s r. o., Spišská Nová Ves
Dlažby a obklady: Orstap Nitra
Priemyselná podlaha: Remstav, spol. s r. o., Bratislava
Interiérové dvere: Levap, spol. s r. o., Nitra
Vzduchotechnika: A.C.T. Nitra, spol. s r. o.
Elektroinštalácia: El spol. Komárňanský, Nitra
Slaboprúdové rozvody: Fittich Temis, spol. s r. o., Nitra
Cestné komunikácie: Staveko-Tatry, spol. s r. o., Poprad
Interiérový nábytok: Neudoerfler Slovensko, spol. s r. o., Bratislava
(pet)
Foto: Igor Trombitáš
Článok bol uverejnený v časopise ASB.












