Nemocnica svätého Michala
V „predvolebnom“ čase si jej otvorenie nenechal ujsť ani premiér SR Robert Fico, podľa ktorého by mala slúžiť najmä verejnosti, pričom pre vojakov, policajtov či záchranárov sa má využívať desať percent kapacity. Fico vo svojom príhovore na otvorení skonštatoval, že „je to najmodernejšie zdravotnícke zariadenie, aké si vieme predstaviť, vrátane najmodernejších technológií, ktoré má táto nemocnica k dispozícii.“ Nemocnica má 120 lôžok, no kapacita sa dá rozšíriť až na 140 lôžok. Mali by v nej ošetriť dvakrát toľko pacientov ako doteraz.
Využitie na 100 percent
V lôžkovej časti sa budú o pacientov starať v špecializovaných odboroch: vnútorné lekárstvo vrátane kardiológie, neurológia, chirurgia, urológia, gynekológia, úrazová chirurgia vrátane ortopédie, anesteziológia a intenzívna medicína. „Nemocnica bude poskytovať všeobecné zdravotnícke služby,“ uviedol minister vnútra Robert Kaliňák. Tamojší všeobecní lekári môžu podľa neho prijať 16 000 pacientov, okrem toho sú tu aj viaceré ambulancie špecialistov. Kaliňák predpokladá, že kapacita nemocnice sa využije na 100 percent.
Nemocnica svätého Michala by sa mala využiť na 100 percent.
Nemocničné chodby sú dostatočne široké, možno by bolo treba viac miest na sedenie.
Nemocnica sv. Michala je akciovou spoločnosťou so 100-percentnou majetkovou účasťou štátu v pôsobnosti ministerstva vnútra. Založená bola v decembri 2008, o pol roka neskôr sa zlúčila so zanikajúcou Nemocnicou Ministerstva obrany SR, a. s., na Patrónke a stala sa jej právnym nástupcom. Zdravotnú starostlivosť poskytuje širokej verejnosti s osobitným prihliadnutím na potreby silových rezortov, ústredných orgánov štátnej správy, vlády, prezidenta, diplomatického zboru, Slovenskej informačnej služby a Národného bezpečnostného úradu.
Pri terapiách nechýba ani bazén.
Izby majú nadštandardné vybavenie, každá má vlastné sociálne zariadenie.
Kompaktnosť hmoty, modelácia ulice
Areál nemocnice v minulosti pozostával prevažne z dvoch hlavných objektov: z polikliniky a nemocnice. Poliklinika bola svojou hlavnou budovou umiestnená súbežne s Lazaretskou ulicou, nemocnica zase pozdĺž Cintorínskej ulice. Poliklinika prešla v roku 2000 rozsiahlou rekonštrukciou – vrátane rekonštrukcie energobloku a novostavby dvojpodlažnej podzemnej garáže so samostatným vjazdom z vnútorného areálu nemocnice. Dnes sú v nej ambulantné prevádzky. Nemocnica sa od konca 90. rokov minulého storočia nevyužívala, postupne chátrala, až kým ju v roku 2010 nezbúrali.
„Hlavným cieľom bola výstavba modernej nemocnice, ktorá by bola prevádzkovo spojená s existujúcou budovou polikliniky prostredníctvom existujúcej technickej infraštruktúry,“ hovorí hlavný inžinier projektu Ing. Luděk Tomek z kancelárie LT PROJEKT. Objekt má dve podzemné podlažia (parkovacie podzemné garáže) a sedem nadzemných podlaží, pričom šieste je ustupujúce a siedme je len technický výstup na strechu objektu.
Nemocnica sv. Michala má k dispozícii 120 lôžok, ktoré sa dajú rozšíriť až na 140 lôžok.
Deväťdesiat percent klientely bude verejnosť, desať percent budú tvoriť bezpečnostné zložky.
Pohľad do vestibulu novej nemocnice
„Snažili sme sa, aby navrhnuté objekty svojou kompaktnou horizontálne položenou architektonickou hmotou dotvárali existujúci stavebný blok,“ približuje urbanistické riešenie L. Tomek. „Súčasne sme chceli, aby modelovali uličný priestor v jeho typickej konfigurácii s historickou dominantou Kaplnky sv. Ondreja v závere pozdĺžneho priehľadu. Pri architektúre sme chceli dosiahnuť pozitívny, optimistický a upokojujúci výraz stavby. Racionálna architektonická koncepcia stavby s účelnou konštrukciou zabezpečuje optimálne pracovné podmienky pre vysokokvalifikovaný zdravotnícky personál a súčasne u pacientov navodzuje pocity dôvery a istoty.“
Ústrednou architektonickou hmotou komplexu je nový hlavný objekt areálu. Základný hranol s výrazne horizontálnymi proporciami je vzhľadom na uličný priestor odsadený. Nižšie vedľajšie krídlo komplexu budov je na západnej strane kolmo napojené na pozdĺžnu os hlavnej hmoty. Tým sa priestorová štruktúra mestského bloku scelila, čo zároveň podporilo aj farebné riešenie.
Priečny rez
Východný pohľad
Jediná v Starom Meste?
Kaliňák do budúcna nevylúčil rozširovanie nemocnice. Šéf rezortu vnútra tento plán avizoval už dávnejšie s tým, že by nemocnica mohla mať časom až 250 lôžok. Plánom je, aby nahradila všeobecné zdravotnícke zariadenia v centre hlavného mesta. Nemocnica na Bezručovej ulici je zatvorená a nemocnica na Mickiewiczovej ulici sídli v rozpadajúcej sa budove. Miesto po Vojenskej nemocnici sv. Michala na Patrónke má zaujať nová moderná univerzitná nemocnica ministerstva zdravotníctva. Po jej dokončení by sa malo zavrieť niekoľko existujúcich zariadení v hlavnom meste. Okrem iných aj nemocnica na Mickiewiczovej ulici. V prípade, že naozaj skončí, Nemocnica svätého Michala zostane jedinou v Starom Meste.
Južný pohľad
Severný pohľad
Nemocnica svätého Michala, a. s.
Miesto: Cintorínska 16, Bratislava-Staré Mesto
Investor: Nemocnica sv. Michala, a. s.
Generálny projektant: LT PPROJEKT, a. s., Brno
Začiatok výstavby: október 2013
Ukončenie výstavby: október 2015
Celkové investície: asi 50 mil. eur bez DPH; z toho stavebná časť asi 28 mil. eur
Zastavaná plocha: 2 870 m2
Obstavaný priestor: 104 180 m3
Generálny dodávateľ stavby: skupina dodávateľov v zložení – Strabag Pozemné a inžinierske staviteľstvo, s. r. o. (vedúci člen skupiny), a člen skupiny Ekofin Slovakia, a. s
Generálny dodávateľ technológie: E-BA tpz, spol. s r. o.
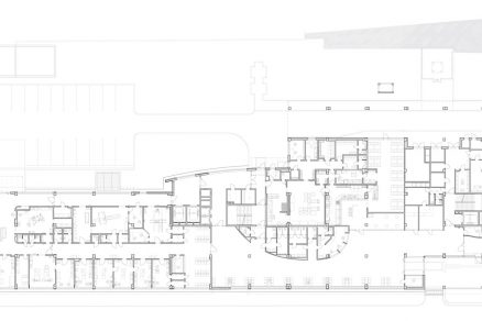
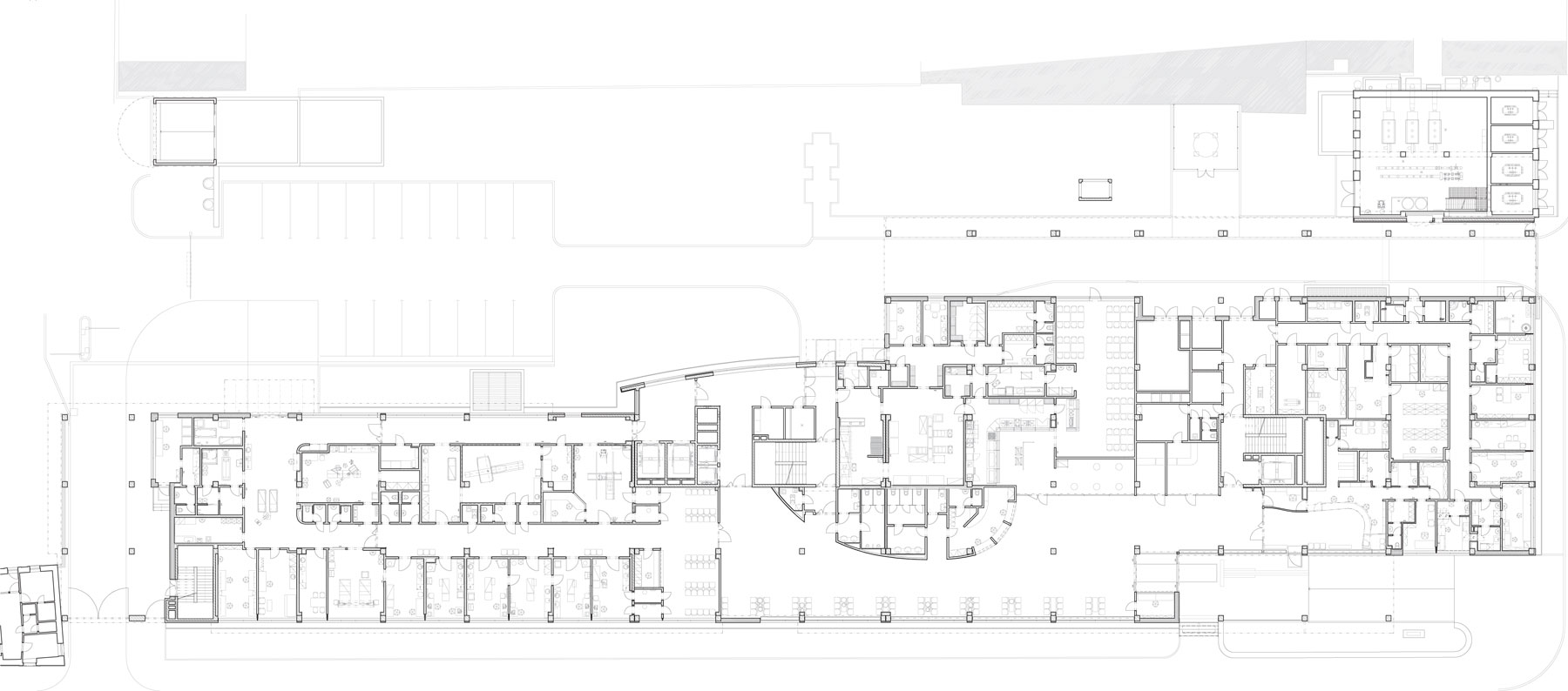
Pôdorys 1. nadzemného podlažia
Fakty o novej nemocnici
- výstavba sa začala v polovici septembra 2013,
- má 120 lôžok s možnosťou rozšírenia na 140 lôžok,
- lôžkové oddelenia fungujú v deviatich odboroch, posilnené je oddelenie intenzívnej medicíny,
- má 50 ambulancií so 30 špecializačnými odbormi,
- do novej techniky investovali 23 mil. eur,
- sídlom je Cintorínska ulica, časom by si nemocnica mala písať adresu Satinského 1.
TEXT: Ľudovít Petránsky
FOTO: Dano Veselský, DOKUMENTÁCIA: LT Projekt, a. s.
Článok bol uverejnený v časopise ASB.























