Katolícka nemocnica upúta empatiou
Prístavba k nemocnici Milosrdných sestier v rakúskom meste Ried bola realizovaná počas plnej prevádzky a so zachovaním prístupu do starého krídla. Do nových priestorov sa operačné sály a časť oddelení sťahovali začiatkom roku 2013.
Katolícka nemocnica patrí do siete siedmich nemocníc a dvoch sanatórií, ktoré spravuje rád vincentínok. Sekulárny manažment riadi nemocnicu v Riede so spádovou oblasťou 200-tisíc obyvateľov. Pracuje tu 1 200 zamestnancov na 18 oddeleniach so 431 lôžkami. Ďalšia dvadsiatka lôžok je určená pacientom, ktorí podstupujú zákroky na dennej klinike. Počet lôžkových pacientov sa v roku 2012 blížil k 33 tisícom, pričom priemerný počet dní, ktoré pacienti strávia hospitalizovaní v tejto nemocnici, neustále klesá, dnes je to 4,1 dňa. Nemocnica sa chváli viac ako 12 tisícmi operačných zákrokov v roku 2012 a počet pacientov ošetrených v ambulanciách dosahuje takmer 90-tisíc. Toľko nearchitektonická štatistika, ktorá však pomáha utvoriť si reálnu predstavu o prevádzke nemocnice a jej organizácii.
Ako riadiaca veža
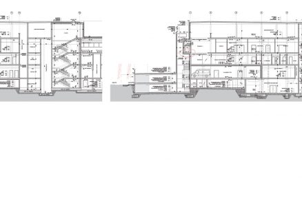
Päťpodlažnou prístavbou sa vytvorilo úplne nové krídlo, ktoré je so starou časťou prepojené novou vstupnou halou s recepciou a menšími stravovacími zariadeniami. Dôležitou súčasťou novej centrály je deväť operačných sál, denná klinika, nové ambulancie, centrála sterilizácie (AEMP), garáže pre osem záchranných vozidiel, ako aj centrálny príjem pre celú nemocnicu a príjem úrazových stavov. Druhé prepojenie medzi oboma krídlami zabezpečuje spojovací most na úrovni štvrtého podlažia, kde sú umiestnené operačné sály. „Na tento most sú naši architekti veľmi hrdí. Predstavuje šikovnú logistickú skratku pre urgentné prípady, ktoré si vyžadujú extra rýchly presun pacienta z helikoptéry priamo na operačnú sálu,“ okomentoval tento prvok Erik Štefanovič, konateľ spoločnosti Delta Projektconsult Slovakia.
Trojuholníkový pôdorys novej budovy vyplynul z priestorových možností a umožnil účelné usporiadanie oddelení so stredovým umiestnením komunikačného jadra. Architektúra objektu je veľmi jednoduchá, podriadená účelu. Z neho vyplývajú všetky použité prvky, ako sú pásové okná či tieniace žalúzie, ktoré dodávajú budove charakteristický vzhľad. Charakteristickú siluetu však architekti vytvorili miernym vysunutím pôdorysu podlažia s operačnými sálami. Inšpirovaní letiskovými riadiacimi vežami vymodelovali pomyselný mozog celej nemocnice, kde sa odohrávajú tie najdôležitejšie procesy, teda operácie. Účelnosť tohto nápadu sa zúročila pri umiestňovaní technologického podlažia, ktoré je hneď nad operačnými sálami, čiže ľahko prístupné a obsluhovateľné.
Empatia na každom kroku
Moderné, jednoducho riešené nové priestory s čistými líniami sú v nemocnici Milosrdných sestier samozrejmosťou. Našu pozornosť upútal najmä cit pre drobné detaily, ktoré spríjemňujú pobyt pacientov v nemocnici. Neušlo nám, že na každom oddelení visia po chodbách originálne umelecké diela a že estetická stránka neťahala za kratší, teda ekonomicky úsporný koniec. Príkladom je aj zariadenie pôrodnej sály, kde sú všetky pomôcky a prístroje schované, ale v prípade potreby ihneď poruke, takže rodičke miestnosť skôr pripomína relaxačnú miestnosť než miesto stresu a bolesti. Zaujímavo a veľkoryso sú na jednotlivých oddeleniach nadimenzované priestory pre pacientov, ako sú napríklad moderné a dobre vybavené kuchynky či spoločenské miestnosti, do ktorých má prístup aj návšteva, alebo taký detail, ako sú skrinky na vázy na kvety pre pacientov.
Pri obhliadke sme nevynechali ani nemocničnú kaplnku od architekta Arch.-Dr.arch. Domenica Mária La Marcu, ktorá je prístupná aj verejnosti, s každodennými omšami, a je dôstojným doplnením nemocničnej prevádzky. Okenné vitráže dopĺňajú premyslenú hru s osvetlením interiéru, keďže svietidlá sú zabudované nielen do stropu, ale aj do podlahy. Duchovnú podporu poskytujú rádové sestry, k dispozícii je aj krízový tím a vlastný kňaz.
Realizáciu projektu mal na starosti tím pod vedením projektového vedúceho spoločnosti DELTA Projektconsult Wels Dipl.-Ing. Othmara Bürstmayera, ktorý na konzultácie prizýval okrem investora a projektantov aj špecialistov zo všetkých oblastí nemocnice, čím sa zabezpečilo trojstupňové schválenie a efektívnosť riešenia. Nemocnica Milosrdných sestier v Riede sa okrem kvalitnej stavebnej realizácie môže pochváliť dobre premyslenou a účelnou prevádzkou a v neposlednom rade mimoriadne citlivým empatickým prístupom k pacientom.
Nemocnica Milosrdných sestier
Miesto: Ried, Rakúsko
Architekt: Delta Projektconsult
Projektový manažment: Delta Projektconsult
Projekcia: 14 mesiacov
Čas výstavby: 30 mesiacov
Ukončenie výstavby: 2013
Plocha parkoviska brutto: 7 500 m2
Podlažná plocha budovy brutto: 9 700 m2
TEXT:Mária Nováková
foto: Dano Veselský
Dokumentácia: Delta Projektconsult
Článok bol uverejnený v časopise ASB.















