Umenie v továrni
Ostrov obklopený ramenami Loiry uprostred západofrancúzskeho mesta Nantes bol kedysi jeho priemyselným centrom. Dnes sa však vďaka otvorenosti a prezieravosti predstaviteľov mesta mení na oddychovú a kultúrnu zónu. Na mieste bývalých skladov a lodeníc tak vznikla celá kultúrna štvrť, nedávno doplnená kultúrnym centrom v bývalej továrni – La Fabrique.
Nantes je skvelým príkladom toho, ako začleniť kultúru do projektu mestského rozvoja. Niekdajší priemyselný areál s rozlohou 15 hektárov bol po zatvorení lodenice v roku 1980 zapojený do procesu regenerácie mesta s cieľom prilákať kreatívne firmy, investorov, turistov, študentov aj miestnych obyvateľov.Proces premeny sa začal na začiatku 90. rokov minulého storočia, keď sa v hangároch uskutočňovali divadelné predstavenia, festival klasickej hudby aj výstavby a ostrov ožil. Renomovaní architekti ako Dominique Perrault, François Grethe či Jean Nouvel boli oslovení, aby nanovo definovali nábrežie ostrova a dodali mu novú postindustriálnu identitu. Ich projekty tak ukázali smer, akým sa má obnova ostrova uberať. V tom čase vznikli v rámci divadelného festivalu aj objekty Les Machines de’ Ille; jedným z nich je obria kinetická socha slona, ktorá sa stala ikonou mesta – projekt vychádzajúci z imaginárneho sveta nantského rodáka Julesa Verna a fantázie surrealistických umelcov. Tieto a ďalšie umelecké intervencie znamenali nový impulz pre komunálnu politiku a vtedajší starosta mesta Nantes Jean-Marc Ayrault pochopil potenciál kultúry stimulovať ekonomický aj spoločenský vývoj. Podpora kultúry sa tak stala politickou prioritou.
S odstupom rokov sa myšlienka mestského rozvoja prostredníctvom kultúry lepšie definovala a začali tu vznikať ateliéry vysokej umeleckej školy a školy architektúry, galérie, v zlievarňach vznikol napríklad poeticky pôsobiaci verejný park pod oceľovou konštrukciou. V neposlednom rade tu vyrástlo multimediálne centrum nazývané príznačne La Fabrique podľa projektu ateliéru Tetrarc. Poskytuje priestor na festivaly, výstavy, koncerty, divadelné a multimediálne predstavenia, ale aj ateliéry a skúšobne či nahrávacie štúdiá.
La Fabrique poskytuje priestor na festivaly, výstavy, koncerty, divadelné a multimediálne predstavenia, ale aj ateliéry, skúšobne či nahrávacie štúdiá.
| KULTÚRNE CENTRUM LA FABRIQUE
Miesto: Nantes, Francúzsko
Autor: Tetrarc architekti (Michel Bertreux, Rémi Tymen, Guillame Blanchard)
Investor: Mesto Nantes, SAMOA – société d´aménagement de la métropole ouest atlantique
Plocha: 7 222 m2
Súťaž: 2005
Realizácia: 2011
Náklady: 16,5 mil. €
|
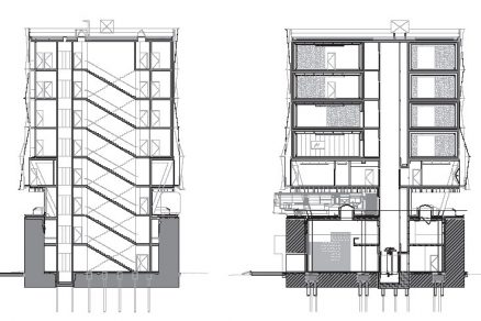
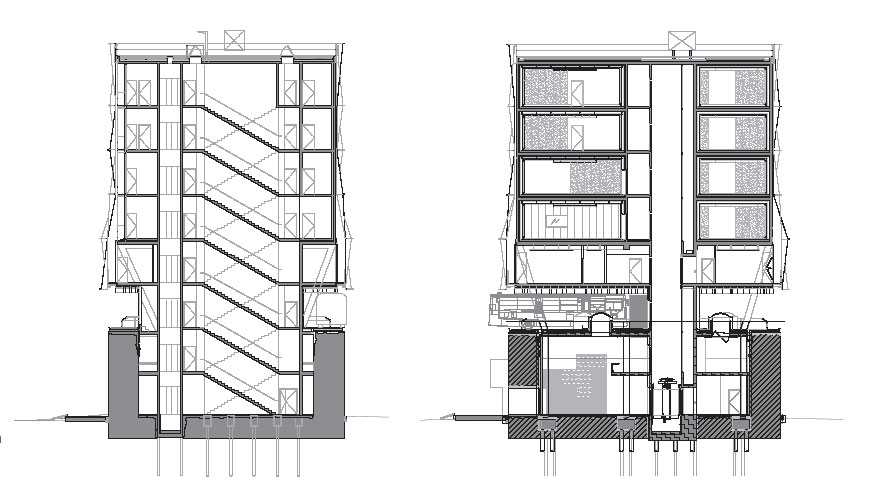
Hangár a bunker
La Fabrique nadväzuje na bývalé prekladisko nantských lodeníc Dubigeon a využíva pôvodné konštrukcie skladových hangárov a bunkrov určených na ochranu pracovníkov pred leteckým bombardovaním. Skladá sa z troch rôznych jednotiek – divadelnej/koncertnej sály pre 400 ľudí (s priľahlými kanceláriami), sály pre 1 200 divákov vloženej do skeletu lodeníc a nakoniec samostatne stojacej budovy s jednotlivými štúdiami vloženej do konštrukcie krytu. Celý komplex sa snaží maximálne integrovať všetky štrukturálne a architektonické prvky, ktoré sú charakteristické pre pôvodné stavby. Industriálnu minulosť pripomína aj nová fasáda z oceľových plechov. Pokrýva všetky časti komplexu, ktoré tvaruje do nepravidelných geometrických útvarov vďaka rôzne nakloneným rovinám. Kombinácia prelamovaných a perforovaných oceľových dielcov vytvára pôsobivé efekty, osobitne v prípade samostatne stojacej budovy so základňou z bunkra. Medzi ňou a nadstavbou vydvihnutou na konzolách vznikla terasa s ozdobne uchopeným stropom z červeného polykarbonátového závoja, na ktorej možno naraziť dokonca na autobus – nie však hocijaký. Autobus Trempolino slúžil od roku 1999 ako mobilné nahrávacie štúdio pre mladé kapely.
Využitý potenciál
Pôsobivá architektúra spolu s technologicky vyspelým vybavením koncertných a divadelných sál vytvára na ostrove centrum kvalitných umeleckých zážitkov, doplnené ďalšími oddychovými zónami – parčíky, reštaurácie či kaviarne v industriálnych kulisách, vtláčajúce miestu špecifického genia loci. Práve preto ho stále viac vyhľadávajú miestni obyvatelia, ako aj turisti, ktorých kultúrny ostrov láka do Nantes čím ďalej, tým viac. Vďaka tomuto rozvoju došlo k veľkému nárastu cestovného ruchu, z mesta sa stalo akési inovatívne podhubie na európskej úrovni a spolu s tým rapídne narástla ponuka pracovných miest v oblasti kultúrnych a tvorivých odvetví. V Nantes tak investícia do kultúry išla ruka v ruke s hospodárskym rozvojom. Predovšetkým však vďaka politike vizionára na čele mesta, ktorý pochopil potenciál kultúry a jej úlohu v súčasnom svete aj v budúcnosti.
Kultúra v industriálnych kulisách láka do Nantes čoraz viac turistov.
Rez halou
Rez budovou nad bunkrom
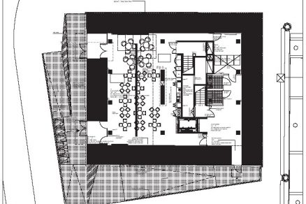
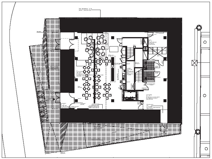
Situácia
Pôdorys podlažia nad bunkrom
TEXT: KATEŘINA KOTALOVÁ
FOTO: STÉPHANE CHALMEAU
Článok bol uverejnený v časopise ASB.




















