Strecha ako virtuálna obloha: Cinema center v Busane
Ateliér Coop Himmelb(l)au zostal verný svojmu názvu. Vytvoril vznášajúcu sa strechu ako virtuálnu oblohu. Oblohu nad filmovým umením v Busane. V komplexe kinosál Busan Cinema Center sa na jednom mieste stretávajú verejný priestor, kultúrne programy, zábava, technika a architektúra.
Tá sa zapája do organizmu mesta a spoluvytvára jeho dominantu. LED žiarovky, vsadené do strechy ako jej ozdobné prvky, pripomínajú virtuálnu oblohu a spájajú jednotlivé objekty s verejným priestranstvom do jedného multifunkčného mestského priestoru. Médiá, technika, zábava a voľný čas sa tu miešajú v otvorenej architektúre, ktorá poskytuje priestor na spontánne i plánované podujatia a aktivity. Výsledkom je miesto, ktoré má schopnosť citlivo reagovať na premeny a fungovať ako katalyzátor kultúrnej výmeny a transformácie.
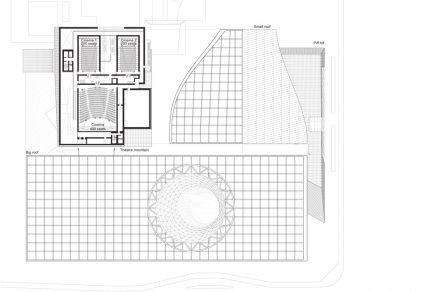
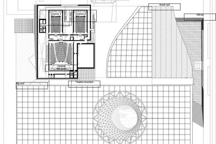
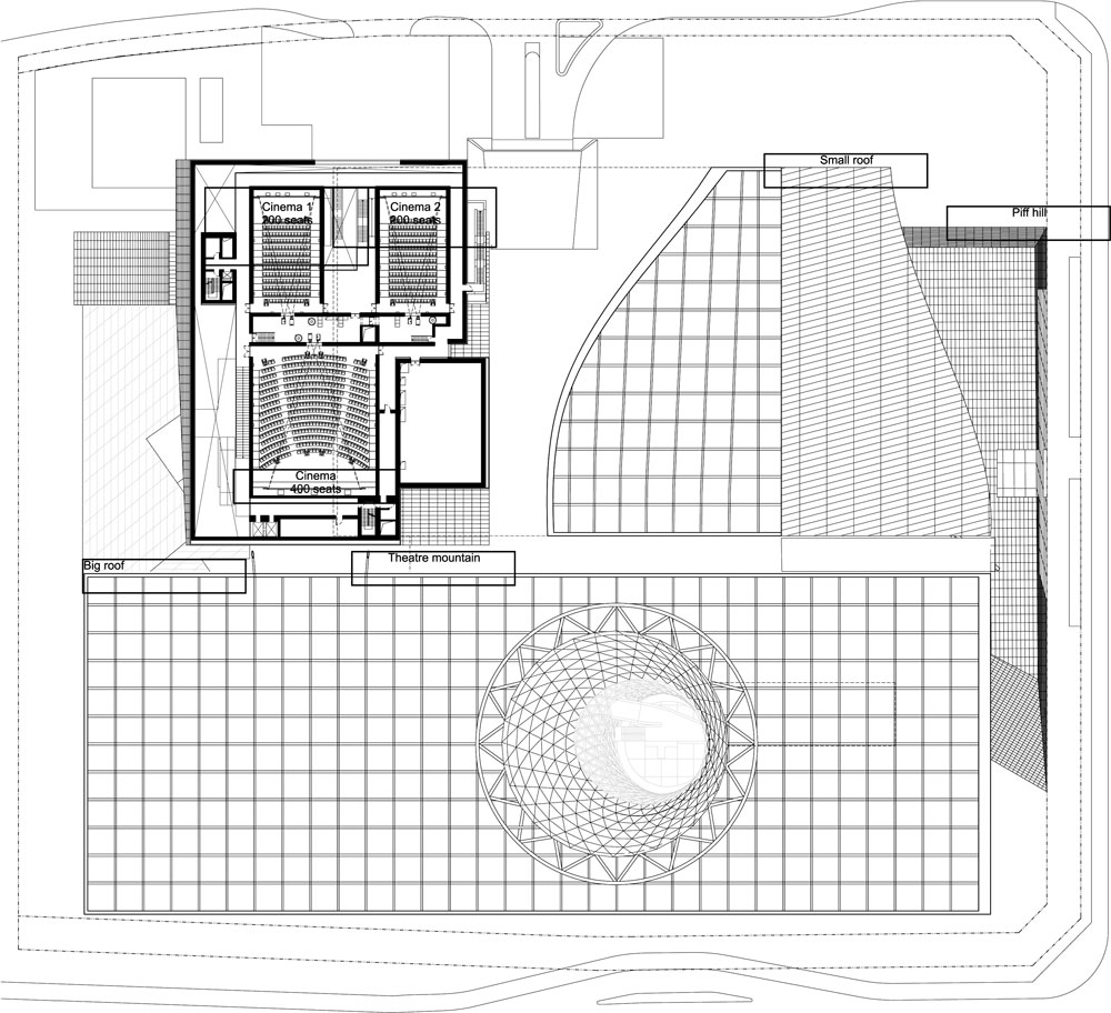
Jadrom jednotlivých priestorovo odlíšených častí celého architektonického komplexu sú budovy postavené pod spoločnou strechou. Je v nich divadlo, premietacie sály i amfiteáter, haly na zhromaždenia, kancelárie, štúdiá na umeleckú tvorbu, reštauračné zariadenia a rozličné kryté i nekryté verejné priestranstvá. Priestory v komplexe sú navrhnuté tak, aby umožňovali flexibilné využívanie jednak počas filmového festivalu, jednak pri bežnej prevádzke.
Materiál použitý pri stavbe budov definuje jednotlivé priestory a funguje ako jazyk, ktorým je vyjadrená architektonická koncepcia diela. Vďaka svojmu tvaru, umiestneniu a použitému materiálu tieto časti vytvárajú dynamické a neformálne napätie medzi zemou a strechou.
Strecha a dvojkužeľ
Dynamicky stvárnený povrch s LED žiarovkami, ktorými sú posiate zvlnené stropy vonkajších strešných baldachýnov, prepožičiava komplexu Busan Cinema Center symbolický a reprezentatívny ikonografický charakter. Rozličné umelecky poňaté svetelné šou, ktoré sa tu prezentujú pri príležitosti medzinárodného filmového festivalu, sú príležitosťou pre umelcov zameraných na oblasť vizuálneho umenia. Svetlo, ktoré je podstatou filmového umenia, sa stalo umeleckým výrazovým prostriedkom, ktorého prostredníctvom vznikla na verejnom mestskom priestranstve jedinečná atmosféra.
Výrazným symbolickým prvkom vstupnej časti komplexu je dvojkužeľ, spájajúci budovy Cinema Mountain a BIFF Hill. Základom jeho architektonického návrhu je oceľová sieť v tvare bubna, spočívajúca na viacerých radiálne rozmiestnených betónových stenách. Tento dvojkužeľ je jediným vertikálnym štrukturálnym prvkom, ktorý podopiera veľkú konzolovú strechu a plní funkciu stĺpa. Počas bežnej prevádzky centra je v spodnej časti dvojkužeľa verejne prístupná kaviareň s možnosťou vonkajšieho sedenia a vrchná časť dvojkužeľa vedie do luxusnej reštaurácie, baru a haly s výhľadom na park na nábreží rieky.
| CINEMA CENTER, BUSAN Miesto: Busan, Južná Kórea Investor: Mesto Busan Užívateľ: Medzinárodný filmový festival v Busane Generálny projektant: COOP HIMMELB(L)AU Wolf D. Prix / W. Dreibholz & Partner ZT GmbH Hlavný dizajnér/CEO: Wolf D. Prix Partner projektu: Michael Volk Architekt projektu: Günther Weber Súťaž (1. cena): 11/2005 Začiatok projektovania: 1/2007 Začiatok výstavby: 10/2008 Ukončenie výstavby: 2012 Investičné náklady: približne 100 miliónov € Plocha pozemku: 32 100 m2 Čistá podlažná plocha (vnútorné priestory): 51,067 m2 Zastavaná plocha: 10 005 m2 (bez strechy) Zastavaný priestor: 49 708 m3 Rozmery konzolovej strechy: 60 × 120 m Výška podpier: 85 m Ceny: International Architecture Award, 2007 The Chicago Athenaeum, Illinois, USA, 2007 Zápis v Guinessovej knihe rekordov – kategória Najdlhšia konzolová strecha, Londýn, Spojené kráľovstvo, 2011 |
Sály, kiná, amfiteáter
V multifunkčnej budove sa nachádzajú viacúčelová divadelná sála pre 1 000 divákov s najmodernejšou javiskovou technikou, multiplex s tromi premietacími plátnami pre 400 divákov a dve kiná pre 200 divákov. Divadelná sála a kiná majú osobitné vchody a foyer, ktorý sa však spolu s priestormi určenými oddych počas prestávky sa dá meniť podľa potrieb aktuálnych podujatí.
Úplne oddelené priestory divadla a kín zabezpečujú optimálnu zvukovú izoláciu divadelného priestoru, ktorý je navrhnutý ako flexibilná hala špičkových parametrov so sedadlami na dvoch úrovniach, optimálnymi líniami pohľadu a nastaviteľnou akustikou.
V Mestskom údolí sa nachádza filmový amfiteáter, do ktorého sa zmestí až 4 000 divákov. Údolie je chránené veľkou vonkajšou strechou vysvietenou LED žiarovkami, ktorá je orientovaná smerom k flexibilnému javisku a premietaciemu plátnu na vonkajšej, východnej fasáde budovy Cinema Mountain. Amfiteáter je vybavený vstavanými projekčnými plochami, javiskom, reproduktormi a osvetlením tak, aby sa pri predstaveniach vonku mohla využívať aj javisková technika interiérového divadla.
TEXT: ĽUDOVÍT PETRÁNSKY
FOTO: © DUCCIO MALAGAMBA
PROJEKTOVÁ DOKUMENTÁCIA: © COOP HIMMELB(L)AU
Článok bol uverejnený v časopise ASB.




















