Ihrisko zvané Manhattan
New York má ďalšie miesto na šport. V severnom Manhattane, na rohu Západnej 218. ulice a Broadwaya nedávno vyrástlo Campbell Sports Center od architekta, ktorý má rád svetlo. Američan Steven Holl vymodeloval priestor, ktorý aj v náročnej mestskej situácii pôsobí ako spojený zážitok.
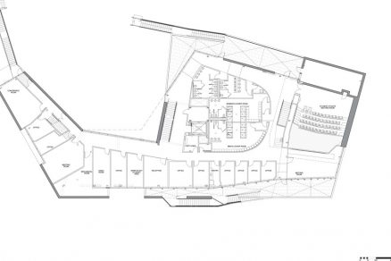
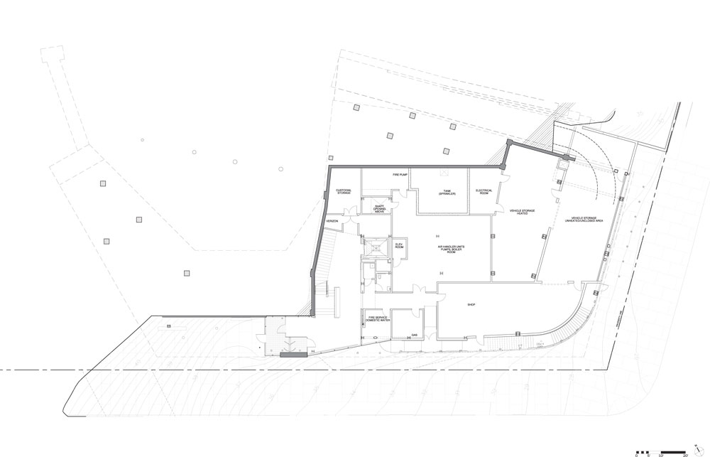
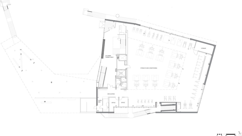
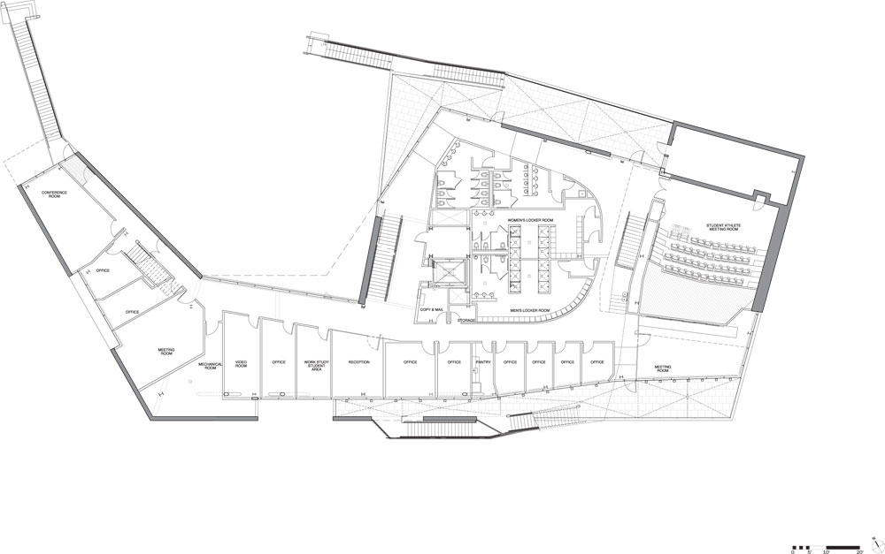
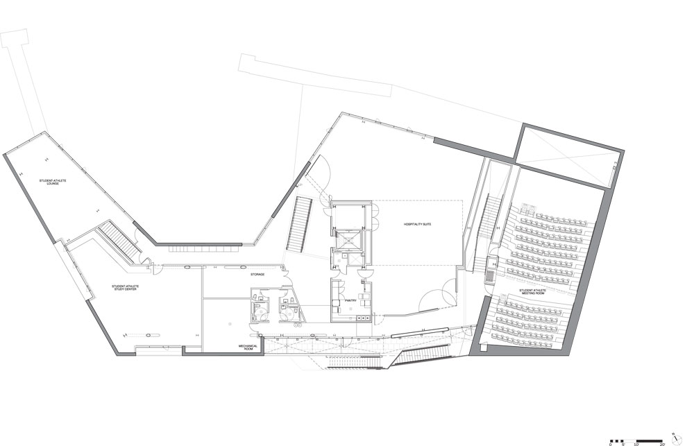
Zadanie Kolumbijskej univerzity bolo jasné: urobiť novú vstupnú bránu pre revitalizovaný športový komplex Baker Athletics, v ktorom sa rozvíja študijný program pre budúcich učiteľov športu. Nové zariadenie ponúka takmer 4,5-tisíca štvorcových metrov plochy na rôzne športové aktivity, ale aj administratívu, mítingovú miestnosť v štýle divadelného auditória, študovne a menšie nemocničné oddelenie.Myseľ a telo
Steven Holl patrí k starej škole architektov, ktorí si svoje koncepty najprv výtvarne stvárnia na papier. Jeho akvarely sú maliarsky príťažlivé, ale zároveň aj funkčne presné. Všetky dispozície, materiálové i konštrukčné parametre a hmotové rozvrstvenie sa najprv objavia v týchto malých obrazoch. Pri Campbell Sports Center má na akvarelovom obrázku v jednotlivých vrstvách napísané: Myseľ, Telo a Myseľ/Telo. Steven Holl je naozaj klasik a vo svojich inšpiráciách sa dostal až k antike a jej kalokagatii – ideálu harmonického súladu a vyváženosti fyzickej a duševnej stránky človeka formulovanému antickým Gréckom, pre ktoré bola telesná kultúra integrálnou súčasťou kultúry spoločnosti.
Samozrejme, Holl vie, že je začiatok 21. storočia a inšpirácie musí vyjadriť adekvátne svojej dobe. Preto si vo svojom architektonickom koncepte zaznamenal dôležité body v pôdoryse a línie v priestore. „Prirovnal by som to k ihrisku, kde sa hrá futbal či bejzbal,“ vysvetľuje Steven Holl. „Na tomto ihrisku sa vytvára diagram, ktorý definuje pôdorys v mierne naklonenej situácii pozemku. A podobne ako body a línie tohto diagramu prinášajú fyzické tlaky a protitlaky, aj samotný objekt pracuje s rovnakými silami. Výsledkom je metaforické napätie a rovnováha medzi mysľou a telom, medzi telom objektu a jeho detailmi.“
![]() |
![]() |
Línie v priestore
Steven Holl sa však nepozerá na svoj objekt len ako na solitér. Vždy ho vníma v rámci urbanistickej štruktúry, navyše, v prípade Campbell Sports Center je táto situácia dosť sťažená. Objekt je na nároží dopravných tepien New Yorku, neďaleko je stanica metra a veľká prekládka tovaru. „Chcel som vytvoriť bránu do športového areálu, ale aj originálny signálny bod, ktorý by zreteľne artikuloval svoju funkciu,“ hovorí Holl. Terasy a vonkajšie schody sú naozaj tými líniami v priestore, ktoré kreslia ihrisko na fasáde budovy a z vyšších poschodí ponúkajú rozmanité výhľady na ihrisko zvané Manhattan.
Architekt zhmotnil svoje idey do súčasných materiálov. Základom sú prefabrikované betónové dosky pripevnené na oceľovej konštrukcii. Na fasáde so stykovými škárami sú hliníkové platne s protioxidačnou pieskovou úpravou, pričom niektoré sú ladené do červeno-hrdzavej farby. Tento princíp sa opakuje aj v interiéri, pričom v auditóriu kongresovej miestnosti a nemocničnej časti sú využité aj perforované bambusové panely vytvárajúce prírodnú atmosféru.
Vonkajším výrazom reaguje Holl na históriu komplexu Baker Athletics z konca 17. storočia, ale aj na neďaleký rušný most s prekládkou tovaru Broadway Bridge. Výraz sa skladá z mnohých detailov, ktoré autor posplietal do pôsobivého diagramu s etiketou Hollov diagram architektúry.
| CAMPBELL SPORTS CENTER Miesto: Západná 218. ulica, Broadway, New York Klient: Columbia University Architekti: Steven Holl Architects, Steven Holl, Chris McVoy, Olaf Schmidt, Marcus Carter, Christiane Deptolla, Peter Englaender, Runar Halldorsson, Jackie Luk, Filipe Taboada, Dimitra Tsachrelia, Ebbie Wisecarver Začiatok výstavby: 2008 Ukončenie výstavby: 2/2013 Úžitková plocha: 4 459 m2 |
TEXT: ĽUDOVÍT PETRÁNSKY
foto: CHRIS MCVOY, IWAN BAAN
dokumentácia: STEVEN HOLL ARCHITECTS
Článok bol uverejnený v časopise ASB.





















