Modulová drevená materská škola
Vzhľadom na predošlý demografický vývoj mesto Mariánské Lázně uvažovalo o zrušení pôvodnej materskej školy a následnom predaji nehnuteľnosti. S pribúdajúcim počtom narodených detí bolo potrebné plány zmeniť. Existujúce objekty však obsahovali azbest a ich rekonštrukcia by bola ekonomicky nevýhodná. Výsledným rozhodnutím bola novostavba.
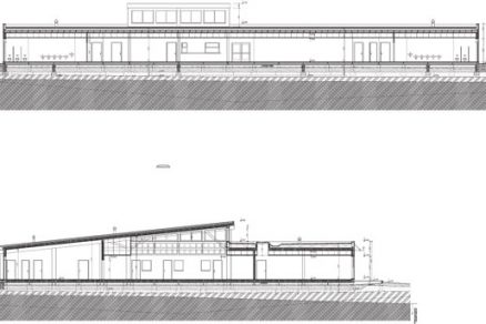
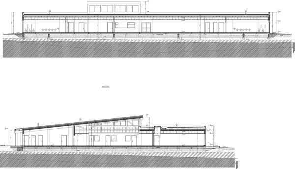
Kompaktný objemMesto požadovalo stavbu v triede energetickej náročnosti A. Vzhľadom na podmienku investora postaviť drevostavbu a samotnú typologickú špecifickosť objektu prišli autori architektonického návrhu s konceptom kompaktného objemu, ktorým sa podarilo minimalizovať ochladzované plochy fasád budovy. Usporiadanie je výhodné aj z hľadiska funkčno-prevádzkových vzťahov. Celá materská škola je jednopodlažný objekt obdĺžnikového pôdorysu. Na sever a juh sú orientované dlhšie strany a na východ a západ kratšie. Strecha je plochá so sklonom 1°, len nad priestorom jedálne a kuchyne je vyvýšená so sklonom 6°, aby sa dosiahlo tzv. bazilikálne osvetlenie týchto miestností.
Budova je umiestnená na severnej hranici pozemku – nadväzuje tak na pravouhlé usporiadanie susedných objektov. Navyše sa uvoľnila južná časť záhrady na hry detí a ich kontrolovaný a bezpečný pobyt na čerstvom vzduchu.
| Materská škola Úšovice, Mariánské Lázně Investor: Mesto Mariánské Lázně Autorský návrh: Ing. arch. Jakub Masák, Ing. arch. Petr Němejc Generálny projektant: Masák & Partner Generálny dodávateľ: Hochtief CZ, a. s. Dodávateľ drevostavby: Groupe Ecomodula Industry Zastavaná plocha: asi 1 800 m2 Obostavaný priestor: asi 8 300m3 Počet tried: 6 Počet žiakov: 124 Realizácia: 3 – 7/2011 |
![]() |
![]() |
Modulový koncept
Ako uviedli architekti, navrhovanie drevostavieb so sebou nesie určité špecifiká a v mnohých ohľadoch vyžaduje detailnejší prístup v príprave projektu než pri klasických stavbách z tradičných materiálov. Návrh materskej školy navyše patrí medzi zaujímavé zadania a napokon aj samotní užívatelia stavby bývajú vo svojej detskej otvorenosti pri posudzovaní dosť nemilosrdní.
Stavba je modulová, každý modul má štyri okenné otvory. Ich veľkosť je prispôsobená samotnej funkcii modulu. Z exteriéru je členenie jasne čitateľné. Časti hygienických priestorov a chodieb majú tenkovrstvovú bielu omietku, ostatné moduly majú obklad zo smrekovcového dreva. Aby sa deti lepšie orientovali, architekti navrhli rôznofarebné poňatie fasád jednotlivých tried.
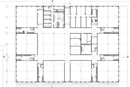
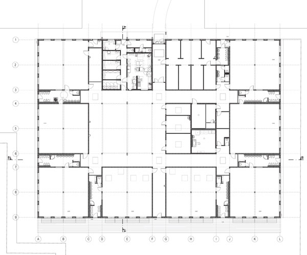
Objekt tvorí sústava dvanástich priestorových modulov, každý s pôdorysnou plochou približne 100 m2 s jasnou priradenou funkciou. Pobytové miestnosti, ako sú herne a spálne, sa nachádzajú po obvode budovy. Na severnej strane je kuchyňa so zázemím, šatne a vstup do objektu. Prepojenie jednotlivých častí je riešené komunikačnými koridormi s pridruženou funkciou v podobe úložných priestorov alebo hygienického zázemia, ktoré je prístupné z herní a zároveň je z neho možný výstup do exteriéru. Jadro stavby je využité na administratívne a technické zázemie a otvorený modul slúži ako jedáleň a spoločenský priestor.
Pôdorys 1. NP
Rezy
Drevené nosné konštrukcie
Objekt je založený na dvojstupňových železobetónových pätkách a pásoch. Obvodové nosné steny tvorí sendvičová konštrukcia s nosnými drevenými stĺpikmi s prierezom 60/160 mm s obojstranným opláštením sadrovláknitými doskami, z interiéru až na drevené latovanie s inštalačnou dutinou s hrúbkou 40 mm. Medzera medzi nosnými stĺpikmi je vyplnená tepelnou izoláciou zo sklených vlákien. Nosnú funkciu sendvičových vnútorných stien zaisťujú drevené stĺpiky s prierezom 60/120 mm s osovou vzdialenosťou 625 mm. Výplň tvorí minerálna vata, ktorá slúži ako tepelná, akustická a požiarna izolácia.
Strešné panely sú takisto sendvičové, nosnú konštrukciu tvoria drevené stropnice s prierezom 80/260 mm. Prievlaky sú z lepeného lamelového dreva s prierezom 200/420 mm.
Materská škola je typickým príkladom stavby, ktorej návratnosť mesto ako investor nemôže počítať iba v číslach. Do najmenších detailov premyslená a vydarená stavba s dobre vyriešenými funkčno-prevádzkovými vzťahmi je miestom, kde deti trávia veľkú časť dňa. Je veľmi dôležité, aby toto prostredie bolo zdravé a podnetné a zároveň s čo najmenším ekologickým dosahom počas celej životnosti stavby.
Mária Nováková
Foto a dokumentácia: Masák & Partner
Článok bol uverejnený v časopise ASB.























