Jasle Guastalla: Architekti deťom vytvorili svet na mieru
V máji 2012 zemetrasenie v okrese Guastalla zničilo dve školy. O tri roky neskôr namiesto nich vyrástli nové jasle. Architekti deťom vytvorili svet na mieru.
Dominantným je v tomto návrhu tvar budovy. Architekti sa s ním skutočne pohrali. Hranaté priestory nechali bokom, vlastne iba v exteriéri – na samotnom plášti budovy. Sústredili sa na imaginárny amorfný tvar, ktorý podnecuje detskú fantáziu a v rozlete jej neurčuje žiadne hranice.
Architektonické stvárnenie škôlky je atraktívne aj pri večernom nasvietení.
Netradičný tvar drevenej konštrukcie podnecuje fantáziu a ponúka veľa zaujímavých priehľadov.
Samozrejmý dizajn
V jasličkách je miesto pre 120 detí vo veku od 0 do 3 rokov, čiže ide o najmladšiu vekovú kategóriu. Mohlo by sa zdať, že venovať toľkú mimoriadnu pozornosť navrhovaniu priestoru pre deti, ktoré sa v podstate ešte len učia chodiť a vnímať, je len plytvanie nápadmi aj financiami.
Mnoho našich domácich príkladov nám ukazuje, že škôlka či jasle sú synonymom pestro až gýčovo pomaľovaných stien s množstvom rozprávkových postavičiek, lebo „deťom sa to páči“ a úplne stačí, keď je detskej ergonómii prispôsobená sanita a rozmery nábytku.
V Taliansku, kde sa kvalitný dizajn pokladá za samozrejmosť, majú trochu iný názor a zariadenie pre najmenších v Guastalle je toho dôkazom.
Interiér je mierkou aj materiálmi prispôsobený deťom.
Architekti z MCA vyprojektovali jasle tak, aby priestor stimuloval detskú interakciu pomocou dotykového spoznávania. Interiér, kde nič nebolo ponechané na náhodu, je dokonale vizuálne prepojený s exteriérom.
Zaliaty svetlom a zariadený starostlivo vyberanými materiálmi s prevahou dreva ponúka množstvo dotykových podnetov, deti sa tu môžu voľne bez hrozby úrazu pohybovať. Farebnosť je nevtieravá, prevláda drevo s jednoduchou povrchovou úpravou či malé farebné akcenty.
Architekti počítali s tým, že priestor zaplnený deťmi a ich aktivitami bude dostatočne farebný, takže o farebné vizuálne podnety nebude pri hrách núdza. Organizácia denných zón podlieha pedagogickým a výchovným možnostiam, ktoré sú limitované vekovo nízkou skupinou.
Je fantastické, že tvarový experiment architektov dostal dôveru investora.
Jasle s výhľadom
Deti sa ľahko s novou škôlkou zoznámili a udomácnili sa v nej. Familiárne sú triedy, spálne, ale aj všetky obslužné a spojovacie priestory. Všetky podnecujú zvedavosť, ponúkajú možnosti na objavovanie, umožňujú ľahko vytvoriť miesto na hranie.
Koncept radenia jednotlivých priestorov za sebou navyše ponúka prirodzený prehľad pre dospelých, a zároveň umožňuje zvedavej detskej duši pozorovať, čo sa práve deje v ostatných triedach.
Keďže denný pobyt je zameraný hlavne na hru a rozvíjanie základných zručností a schopností, neočakáva sa od detí, že budú vzorne sedieť a potichučky sa sústredene venovať nariadenej činnosti. O to viac ocenia rozvoľnenú dispozíciu.
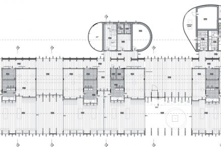
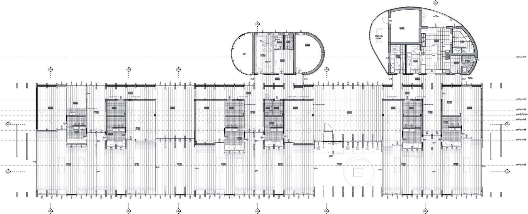
Pôdorys prízemia
Analýza tieňov vzhľadom na pozíciu solárnych panelov / Analýza teploty obalu budovy / Analýza prirodzeného svetla v interiéri
Konštrukcia stavby je vytvorená z drevených rámov, je ekologická s minimálnym negatívnym environmentálnym dosahom. V interiéri sú rámy plne priznané, podieľajú sa na priateľskej atmosfére a kvalitnej tepelnej izolácii stavby.
Budova jaslí má aj ďalšie ekologické vymoženosti: dažďová voda sa zbiera a recykluje na ďalšie použitie, na streche sú namontované fotovoltické panely, ktoré minimalizujú energetické požiadavky stavby.
Bioklimatická schéma ukazuje možnosti premysleného konceptu: vetranie komínovým efektom, zber dažďovej vody, regulovaný prienik denného svetla a tepelných ziskov do interiéru.
Umiestnenie škôlky v areáli so záhradou.
Miesto: Guastalla, Taliansko
Investor: Comune di Guastalla
Projekt: Mario Cucinella Architects
Autori: Mario Cucinella, Marco dell’Agli (zodpovedný architekt), Alberto Casarotto, Irene Sapenza, Alberto Bruno, Yuri Costantini (model)
Výstavba: 2014 – 2015
Plocha: 1 400 m2
Náklady: 1 650 €/m2
Zeleň a krajinná úprava: Marilena Baggio
Konštrukcie: Geoequipe Studio Tecnico Associato
Konštrukčná schéma
Guastalla, Taliansko
TEXT: Mária Nováková,
Foto: Moreno Maggi,
Dokumentácia: Mario Cucinella Architects
Článok bol uverejnený v časopise ASB.






















