Skanzen v pasívnom štandarde
Ten kontrast je pôsobivý. Skanzen starobylej dediny zakomponovaný v malebnom údolí a nad týmto obrazom zastaveného času sa týči monumentálny objekt – drevostavba v pasívnom štandarde s veľkou zasklenou fasádou. Je to vstupná brána, ktorá prepája dva svety.
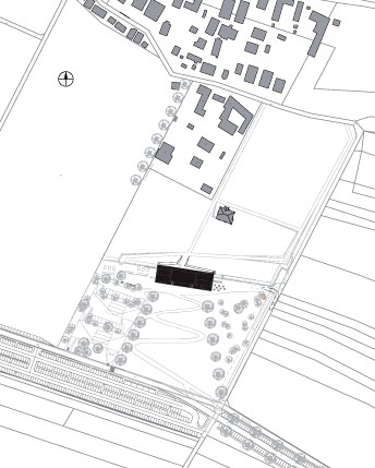
Museumsdorf Niedersulz je najväčší skanzen v Dolnom Rakúsku, v ktorom je podľa originálov postavených 80 budov – remeselnícke dielne a chalupy, mlyn, cintorín, štyri kaplnky a množstvo pomocných hospodárskych budov lemujúcich ulice rozľahlej dediny. A na návrší, nad touto atmosférou zastaveného času, je vstupný portál.„Chceli sme vytvoriť modernú propyleju, ktorá by vďaka svojej hmote, použitým materiálom a výhľadu vytvorila adekvátne prepojenie so skanzenom a zároveň oživila atmosféru starých čias,“ hovorí Karl Gruber, architekt skanzenu v rakúskom mestečku Niedersulz. „Snažili sme sa uplatniť tradičné spôsoby stavania, ale podľa nových princípov.“

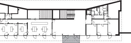
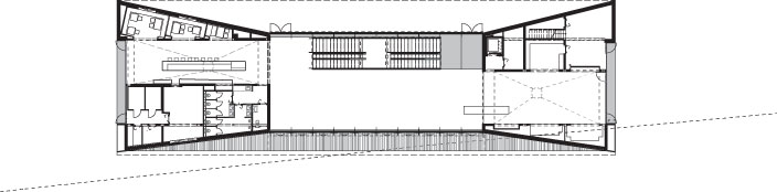
Azda najpôsobivejší je výhľad cez sklenenú fasádu portálu smerom na strechy starých domov v skanzene. Objekt tak prepája dva svety, medzi ktorými sa pohybujú návštevníci. Na prízemí je veľká drevom obložená vstupná hala, na obidvoch koncoch budovy sa nachádza obchod a je tu aj múzejná kaviareň. Tieto priestory sú metaforou historických budov a odzrkadľujú pôvodné tvary starých domov. Samozrejme, dominuje drevo. Všade, kde sa pozriete, je samé drevo. Dokonca aj výklenky v stene určené na sedenie sú obložené dubom.
Výpravným schodiskom s miernym sklonom sa návštevníci dostanú na na nižšie podlažie, na ktorom sa okrem vstupu do samotného skanzenu nachádza kancelária múzea, archív a sklad. Obidva hlavné priestory majú svetlú omietku.
Ozvena tradície
Nový stavebný objekt sa realizoval v pasívnom štandarde a použité materiály sú interpretáciou tradičnej budovy. Na vonkajšiu fasádu sa podobne ako pri tradičných poľnohospodárskych stavbách použili vertikálne drevené dosky s viditeľnými letokruhmi natreté tmavou lazúrou.
„V miestach styku dosiek slúžia krycie dosky ako ochrana. Tieto ľahko vymeniteľné ochranné dosky dodávajú fasáde osobitú štruktúru. V spojení s dlhými vykonzolovanými prístreškami jej poskytujú efektívnu konštrukčnú ochranu, približuje architekt.“
Pri fasáde sa použilo drevo odolné proti vode, vysokým teplotám a tlaku (termodrevo), ktoré si nevyžaduje dodatočnú chemickú ochranu. Nanesená lazúra s olejovou bázou (ľanový olej) nemá ochrannú funkciu a drevu dodáva len farbu. Drevený vzhľad majú aj viditeľné plochy v interiéri. Podlahy z drevených parkiet hrubých 20 mm zdobia masívne letokruhy. Pod obkladom stropu sú ukryté všetky technické zariadenia (vetranie, osvetlenie, bezpečnostné zariadenia).
–>–>

Skanzen rozpráva množstvo príbehov a jedným z nich je príbeh o energeticky efektívnej výstavbe zameranej na šetrenie neobnoviteľnými zdrojmi energie. Je obrazom chudobnej spoločenskej vrstvy, ktorá tu žila (a musela šetriť) v minulom storočí, a rozpráva aj o období pred energetickým boomom. „Niet pochýb, že v súčasnosti stojíme na jeho konci, a preto musíme začať stavať budovy šetrné k životnému prostrediu,“ zdôrazňuje Karl Gruber. „Tento nový koncept sa odráža v kompaktnej stavebnej konštrukcii s prepracovanými povrchmi. Snažili sme sa o optimálny tvar budovy a kvalitne zaizolované vonkajšie steny. Použili sme solárnu energiu a navrhli rozličné teplotné zóny vo vnútri budovy v súlade s denným režimom skanzenu a ročným obdobím. Samozrejmosťou sú materiály šetriace neobnoviteľné zdroje.“
Doplnkom k tomuto základnému konceptu sú aj high-tech komponenty. Vo vstupnom portáli sa nachádza efektívne vetracie zariadenie so spätným získavaním tepla. Vykurovacie špičky sú pokryté kotlom na pelety. Na chladenie budovy (podlahové, resp. stropné chladenie, ochladzovanie privádzaného vzduchu) sa počas letných mesiacov používa energia získaná zo zemných vrtov so zabudovaným tepelným čerpadlom.
Automatické ovládanie okien umožňuje dodatočné prirodzené nočné chladenie vstupných priestorov, obchodu a kaviarne. Dôraz sa kládol aj na energeticky efektívne osvetlenie, ktoré je zabudované v strope.
Podmaňujúce, a zároveň efektívne. Tradičné, a zároveň nanajvýš súčasné. Nie náhodou bol projekt minulý rok ocenený cenou Holzbaupreis v kategórii verejné budovy v Dolnom Rakúsku. Odporúčame milovníkom dobrej architektúry, ale aj ako tip na rodinný výlet. Niedersulz je len niečo vyše hodiny autom z Bratislavy.
| VSTUPNÝ PORTÁL, MUSEUMSDORF Miesto: Niedersulz, Rakúsko Využitie: vstupný portál do skanzenu Typ budovy: dom v pasívnom štandarde Spotreba energie na vykurovanie za rok: 10 kWh/m2 . a Energetický systém: kontrolované vetracie zariadenie so spätným získavaním tepla Zdroj energie na dodatočné vykurovanie: kotol na pelety Generálny projektant: AH3 Architekten ZT GmbH Architekt: DI Karl Gruber Spolupracujúci architekt: DI Martin Wagensonner Úžitková plocha: 1 110,50 m2 Začiatok výstavby: jar 2011 Ukončenie výstavby: 2012 |
TEXT: ĽUDOVÍT PETRÁNSKY
FOTO: DANO VESELSKÝ
DOKUMENTÁCIA: AH3 ARCHITEKTEN ZT GMBH
Článok bol uverejnený v časopise ASB.




















