Rekonštrukcia mestských kúpeľov na galériu
Chátrajúca budova bývalých mestských kúpeľov v Liberci čakala na náročnú prestavbu dlhé roky. Dovnútra sa už dnes nechodí v plavkách, ale za umením.
Stred mesta Liberca zmenili nové obchodné centrá za posledných pár rokov na nepoznanie. Na Masarykovej triede sa však zastavil čas niekde na prelome 19. a 20. storočia, keď bol Liberec svetoznámym centrom textilného priemyslu. Niekdajšiu slávu mesta tu spoločne s honosnými vilami v historizujúcom slohu pripomínajú kúpele Františka Jozefa I. Podľa projektu viedenského architekta Petra Paula Branga ich nechala v rokoch 1901 – 1902 postaviť Liberecká spořitelna pod dohľadom Adolfa Burgera. Novorenesančná budova s náznakmi nastupujúcej secesie slúžila na pôvodný účel až do roku 1984. Potom fungovala ako reštaurácia či klub. Nový osud kúpeľov bol spečatený v roku 2011, keď sa začala ich premena na výstavné priestory Oblastnej galérie v Liberci.
O náročnej revitalizácii hovorí architekt Jiří Buček z kancelárie SIAL: „Prvý príbeh záchrany kúpeľov sa začal pre nás krátko potom, ako mesto v roku 2005 objekt kúpilo. Rehabilitácia domu s pôvodným využitím bol celkom logický krok. Nakreslili sme projekt, v roku 2007 bolo vydané stavebné povolenie. Mesto medzitým usilovne hľadalo možného investora a prevádzkovateľa, vybraný izraelský investor z projektu nakoniec vycúval. Veľmi neradi sme sa s projektom lúčili. Vtedy sa objavila možnosť zachrániť kúpele z európskych peňazí, len bolo treba nájsť náhradnú funkčnú náplň. Galéria a výstavné priestory boli vsadením na istotu, ostatne, skúseností s podobnými konverziami je vo svete dosť.“
Radikálne zásahy
„Samotná podstata nového usporiadania je založená na prelínaní a kontraste starého a nového. Všetko, čo je historicky podstatné, vytvára rámec absorbujúci nové, kontrast medzi historickou substanciou a súčasným mobiliárom je súčasťou práce s pamiatkami. Zámerom bolo prijať historický kontext domu, zachovať všetko dôležité a podstatné z pamiatkového hľadiska a navrhnúť zmeny podľa súčasných nárokov na prevádzku galérie,“ vysvetľujú autori svoj prístup k objektu. „Požiadavky budúceho užívateľa sme splnili troma úpravami: predĺžili sme hlavné schodisko, kde vznikol centrálny komunikačný bod, porušenú bazénovú vaňu sme odstránili a tak vznikol na úrovni dvora vysoký priestor na dočasné expozície a napokon sme vložili transparentnú vstavbu do dvorovej časti oproti kotolni.“
Spomínané odstránenie bazénovej vane patrilo medzi najdiskutovanejšie. Nová pieskovaná sklenená podlaha na oceľovej konštrukcii na úrovni parteru umožňuje sekundárne osvetlenie ďalšieho výstavného priestoru. Členenie do dvoch hlavných podlaží poskytuje široké možnosti využitia priestorov aj na viacero nezávislých výstav. Na druhej strane architekti zachovali pôvodné historické detaily, pričom niektoré boli odkryté až počas samotnej stavby. Charakteristickým prvkom rekonštrukcie sa stalo zrenovované kovové zábradlie na ochodzi centrálneho priestoru. Bolo treba opraviť či repasovať všetky vitráže, dvere, okná aj zachované časti pôvodnej secesnej dlažby. „Pri prestavbe kúpeľov všetci cítili, že význam tejto budovy je v Liberci vďaka osobitej histórii vnímaný ako mimoriadny. Musíme povedať, že hoci pri jednotlivých postupoch pripravovanej rekonštrukcie boli pamiatkari veľmi prísni, celkovo boli veľmi ústretoví. Umožnili veľa radikálnych zmien, aj keď trvali dôsledne na zachovaní či reštaurovaní mnohých detailov.“
Najlepšia novostavba v historickom prostredí
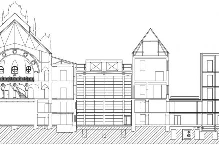
Liberec prestavbou získal úplne unikátne priestory nielen pre zbierky Oblastnej galérie, ale aj na konanie širokej škály kultúrnych a spoločenských akcií.. Vstup pre návštevníkov ostal totožný s hlavným vchodom do bývalých kúpeľov, na foyer nadväzujú ďalšie obslužné časti. Administratíva galérie je umiestnená v priečnom západnom krídle, lektorské pracovisko v bývalej kotolni bolo rozšírené ešte o detský workshop. V tesnej blízkosti existujúcej budovy kúpeľov pribudla novostavba moderného depozitára s reštaurátorskými dielňami, fotoateliérom, bádateľňou aj miestnosťou pre strážnikov. Výstavba depozitára v kontakte s historickým objektom bola jedna z požiadaviek stavebného programu novej galérie. „Depozitár je v podstate trezor, pokladňa na obrazy. Kovová fasáda nám pripadala ako vhodné a pravdivé vyjadrenie funkcie, zároveň sme hľadali kov, s ktorým by sa dalo ďalej remeselne pracovať. Výsledkom sú hliníkové lamely liate do pieskovej formy ošetrené eloxom. Zlievareň v Jablonci nad Nisou našich 2 000 kusov odlievala pol roka, bolo skvelé sledovať ich ručnú prácu.
Účelom fasády depozitára je odovzdať ďalším generáciám nejakú informáciu, kód,“ popisuje postup pri tvorbe fasády architekt Jiří Buček. „Zrejme nám pomohla náhoda, keď sme v Severočeskom múzeu objavili pôvodné modrotlačové matrice pravdepodobne od Johanna Liebiga. Spojenie textilnej tradície regiónu a remesla bol jasný a nosný koncept, tak sme motív jednej z matríc preniesli na fasádu depozitára.“ Jeho nová kompaktná hmota rešpektuje uličnú čiaru a výška zodpovedá rímse Mestských kúpeľov. Novým prvkom je expozičné plató, ktoré spojilo novú a historickú budovu do jednotného celku. „Harmonický celok, to sú slová, ktoré s architektúrou nemajú veľa spoločného. Na Fakulte umenia a architektúry, kde vediem 10 rokov architektonický ateliér, učím študentov premýšľať nad pravdivým silným konceptom, ktorý môže prežiť aj ďalšie úpravy v procese projektovania a realizácie bez kašírovania a napodobenín. To sprevádzalo aj tento projekt. Staré sa stretáva s novým. Začiatok 20. storočia je v kontakte s 21. storočím, pôvodné secesné zábradlie je vedľa pohľadového betónu,“ pripomína autor.
Zrekonštruovaná budova s prístavbou získala cenu Grand Prix 2014 Obce architektov Českej republiky.
Rekonštrukcia Mestských kúpeľov na galériu
Miesto stavby: Liberec
Klient: Statutární město Liberec
Užívateľ: Oblastní galerie v Liberci
Generálny projektant: SIAL architekti a inženýři, spol. s r. o., Liberec
Autor: Jiří Buček
Spoluautori: Jan Duda, Filip Horatschke, Helena Hlávková
Spolupráca: Petr Čihák, Jana Hlavová
Hlavný inžinier projektu: Karel Novotný
Stavebné riešenie: František Bielik, Josef Franc, Vlastimil Schneider, Zdeněk Dřevěný
Generálny dodávateľ: Chládek a Tintěra, Pardubice
TDI: Investing CZ
Štúdia: 2009
Projekt: 2010 – 2011
Realizácia: 2011 – 2013
Úžitková plocha: 10 400 m2
Obstavaný priestor: 46 400 m3
Náklady: 300 mil. Kč bez DPH
TEXT: Veronika Benešová, SIAL
Redakčná úprava: Mária Nováková
Foto: Ivan Němec
Článok bol zverejnený v časopise ASB.
















