Rekonštrukcia košických kasární na Kulturpark
Minulý rok v júni sme absolvovali obhliadku kasární na Kukučínovej ulici v Košiciach. Do areálu sa práve nasťahovali stavebné firmy, aby rozbehli prestavbu areálu na budúci Kulturpark. Celkom otvorene priznávam, ovládla nás vtedy typická slovenská skepsa, či je vôbec možné taký objem prác zvládnuť za jeden rok.
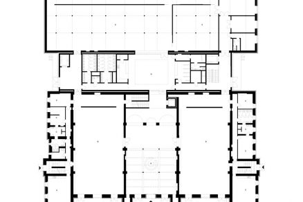
Košický Kulturpark dnes vyhráva na viacerých frontoch. Architektonickú súťaž vyhral správny tím so správnym návrhom. Architekt Irakli Eristavi so svojím tímom sa pohral s existujúcimi dispozíciami a vyprodukoval skvelý architektonický návrh dotiahnutý do najmenších detailov. Má hlavu aj pätu a otvára široké spektrum možností využitia celého areálu. O projekte a o princípoch celého návrhu, ktorý vychádzal z vojenskej štruktúry s pomocou vloženej mriežky so základným rozmerom 8 × 8 m, sme písali v októbrovom ASB už minulý rok. Kulturpark je v tomto ohľade veľmi príjemným prekvapením, až sa derú na jazyk slová, že priam neslovenským.

Výsledná realizácia totiž maximálne zodpovedá pôvodnému projektu, a ak aj nastali nejaké realizačné zmeny, ničím nepokazili drsný pôvab, ktorým celý areál dýcha. Ostalo z neho dosť bývalej vojenskej reminiscencie napríklad tým, že autori rešpektovali rozloženie existujúcich budov a s citom vkladali nové objemy v podobe jednopodlažných pavilónov. Ostatne, ultramoderné mimikry týchto kvádrov z vysokolešteného antikorového plechu, v ktorom sa zrkadlí výborne zachovaný historický park s mohutnými stromami, by sa s trochou zveličenia dalo považovať za nenápadný odkaz, že aj v kultúre sa oplatí investovať do drahých materiálov. Skultivované prostredie je totiž najlepšou cestou k skultivovaniu ľudí. Ako na tom sú práve Košice, môže ukázať aj hlavný nástupný priestor.
Biely lakmus
Čisté vybetónované plochy, urbánna pergola v podobe 15 stĺpov nesúcich transparenty, sklenené výplne pavilónov November, Uniform a Delta, drevené pódiá kompletne vybavené na aktivity rôzneho druhu a najmä bielo-biely mobiliár určený na sedenie, povaľovanie a iný relax, to všetko je podľa autora akýmsi lakmusovým papierikom kultúrnosti národa. „Nemôžeme robiť všetko ‚blbuvzdorné,‘ hovorí bez servítky Irakli Eristavi. „Rozhodli sme sa použiť kvalitný dizajn z dielne architektov PPAG a ich exteriérové sedenie Twins vyrobené z HDPE.“ Kde inde, ak nie v Kulturparku, majú miesto kvalitné materiály a kvalitný dizajn?
Čiernobiele videnie
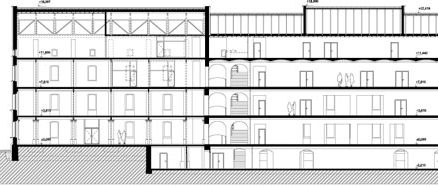
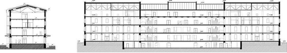
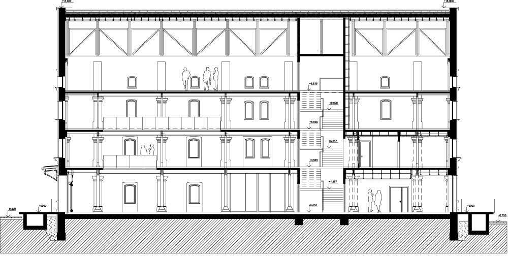
V areáli stále cítiť dostatok minimalistickej kasárenskej strohosti. Farebná škála sa pohybuje výlučne medzi bielou a čiernou. A to je jeho ďalšia výhra. Autorský tím jednoduchú krásu priestorov vyzdvihuje nabielo natretým obnaženým tehlovým murivom, rozsiahlymi plochami bielej epoxidovej podlahy, čiernou farbou rámov okenných výplní, prípadne ochrannými čiernymi mrežami či načierno natretými oceľovými konštrukciami. Architekti sebavedome, ale s pokorou voči pôvodnému pracujú s novotvarom technického zázemia vloženým do bloku Alfa a s jeho fasádnymi betónovými rebrami. Celkom samozrejme vyzdvihujú minimalistickú utilitárnosť sivých betónových schodísk, nechávajú vyznieť prirodzenú krásu sivého pohľadového betónu, neomietnutých stien, jednoduchých nástupných rámp a komunikácií.
Túto farebne obmedzenú, ale materiálovo bohatú paletu dopĺňajú repasovanými pôvodnými krovmi alebo novými drevenými konštrukciami. Všetky konštrukcie, ktoré boli zdravé a neporušené, nechali na svojom mieste, povyberali len tie, ktoré z požiarneho či izolačného hľadiska nevyhovovali súčasným štandardom. Rovnako s citom pre detail poskladali mozaiku vnútorného vybavenia od nábytku cez hygienické zariadenia až po svietidlá. Celkovo Kulturpark pôsobí ako čiernobiely film, ktorý neustále beží v treťom či štvrtom pláne, pričom v popredí sa budú odohrávať všetky možné druhy a farby umenia, predstavení, inštalácií, vernisáží, koncertov, tréningov, tvorivých dielní, tvorivého vyučovania alebo len samotného bytia tvorov.
Nech to vychytá
Irakli Eristavi a celý tím architektov, projektantov a mnohých ďalších jeho spolupracovníkov odviedli v Košiciach neuveriteľný kus práce. Sú príkladom, že európske fondové peniaze sa v kultúre dajú míňať zmysluplne na niečo, čo presahuje rámec mesta, regiónu a trúfam si povedať, že aj Slovenska. Bývalé kasárne ustáli svoju reinkarnáciu na kultúrnu ustanovizeň na výbornú. V tejto bitke niet porazeného. Nech teda tvorivý zápal architektov a nadšenie počas realizácie sú inšpiráciou a neustálym mementom aj pre tých, ktorí budú mať na starosti prevádzku a funkčnú náplň. Aby Kulturpark vyhral na celej čiare.
A zopár foto z rekonštrukcie:
TEXT: Mária Nováková
foto: Dano Veselský, Roland Bozó
Dokumentácia: zerozero
Článok bol uverejnený v časopise ASB.














































