Poľovnícky dom
V slovenskej architektúre sa, našťastie, čoraz častejšie objavujú objekty, ktoré ťahajú jej úroveň v zmysle konceptu a stavebnej realizácie. Patrí k nim aj Poľovnícky dom na Záhorí, ktorý zabodoval v prestížnych slovenských architektonických súťažiach a opäť ukázal, že aj subtílny objekt môže mať veľký dosah. Stačí maličkosť – dobrý nápad.
Víťazstvo v kategórii Občianske a priemyselné stavby v súťaži CE.ZA.AR 2017, nominácia v Cene Dušana Jurkoviča 2017, pričom podľa poroty len tesne zostal na druhej priečke, účasť vo finálovej pätici v stredoeurópskej Piranesi Award (z 35 nominovaných diel zo siedmych krajín Európy) – to sú ocenenia u medzinárodných porôt, dôležité však je, čo prináša dom do krajiny.
Azda nepreženiem, keď poviem, že je to taký tichý zážitok, ktorý sa však neodhalí naraz. Odkrýva sa postupne ako správne tajomstvo. Ak chcete obsiahnuť celý objekt, musíte vyjsť na neďalekú cestu, keď chodíte okolo neho, vidíte z neho vždy len časť – jedna sa odhalí, druhá zase zmizne. Vzniká tak pocit, že stavba je menšia ako v skutočnosti.
Farebné a kompozičné riešenie opticky objekt zmenšuje
Autori hovoria o diétnej hmotnostnej kategórii v jeho vizuálnom vneme a kontraste s robustným, ba až drsným vonkajším prejavom cez svoj monochromatický drevený obklad. Áno, architekti sa zriekli neprimeraných objemov v lesnej krajine a sledovali základný archetyp domu v jeho čistote bez zbytočných doplnkov. Výsledkom je súčasný dom, ktorý vystihuje svoju funkciu – príbytok pre poľovníkov, ktorí sa chcú ubytovať, opatriť zver, ale aj sa zabaviť.
Subtílny tmavý objekt nenarúša prírodnú scenériu
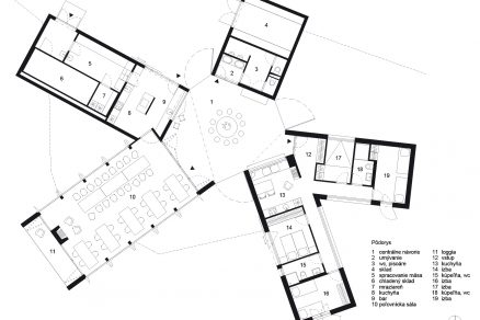
Schéma hviezdice
Zadanie malo pomerne obsiahly program, do ktorého sa muselo skĺbiť viacero funkcií – od ubytovania po rozrábku ulovenej zveri, teda funkcií, ktoré spolu prevádzkovo nesúvisia. Investor pri tvorbe nemal špeciálne požiadavky, jeho jedinou podmienkou bolo dodržať stanovenú prevádzku a rozpočet.
Proces tvorby hmoty
„Pôdorysná schéma hviezdice s piatimi radiálami z týchto požiadaviek vyplynula prirodzene,“ hovorí pre ASB Ing. arch. Linda Hrušovská, konateľka ateliéru Pantograph. „Takto sa funkcie prevádzkovo nekrižujú, a predsa sa vzájomne prepoja vo vnútornom átriu. Hostia ubytovaní v jednom objekte tak nemusia vôbec nič tušiť o ulovenej zveri, ktorá sa porciuje v susednom objekte.“
Prechodné ubytovanie zabralo dve z piatich radiál. Jedna radiála pozostáva z veľkej spoločenskej miestnosti s balkónom – akousi strieľňou, z ktorej poľovníci trénujú streľbu na terč. Ďalšia radiála je miestnosť na rozrábku a uskladnenie ulovenej zveri. A poslednú tvoria sociálne zariadenia a sklady pre poľovníkov.
Interiér kuchyne v spoločenskej časti
Prepojenie s prírodou
Poľovnícky dom má dve tváre. Keď sú zatvorené veľké až panoramatické drevené okenice, je uzavretý do seba a pôsobí až nedobytne. Dokonca nevidieť ani škáry medzi okenicami a fasádou a s okolím komunikuje len v základnej siluete. Keď sa okenice otvoria, dom otvára svoju náruč a interiér sa plynule prepája s vonkajškom.
Vnútorné átrium – komunikačný uzol celého objektu
„Toto prepojenie bola kľúčová črta konceptu,“ súhlasí Linda Hrušovská. „Objekt bol predsa vytvorený pre ľudí, ktorí sú najspokojnejší vonku. Prevádzka zvnútra vonku a naopak preto musela byť navrhnutá plynulo, hranice interiéru a exteriéru mali byť čo najviac potreté a nenápadné.“
Pohľad z obytnej kuchynky do átria
Robustnejší prejav dreveného obkladu fasád vyplýva z typológie objektu, ale interiéry sa menia v závislosti od funkcie. Je tu aj pitevňa s mraziarenskými boxmi, ktorá je celá z antikora. Veľká spoločenská miestnosť pripomínajúca príťažlivú zafúľanosť hostinca znesie hlasnejšiu vravu, ale aj zablatené poľovnícke čižmy. Naopak, ubytovacia časť s malou kuchynkou, obývačkou a romantickým apartmánom je presným opakom. Interiér je svetlý, útulný a čistý, tu treba chodiť v prezuvkách.

Prevádzka po roku
Nič nemôže potvrdiť správnosť architektonického konceptu do takej miery ako prevádzka. A tá má v prípade Poľovníckeho domu na Záhorí za sebou prvý rok. Spokojnosť poľovníckeho zväzu potvrdzuje celkové riešenie a pozitívne ohlasy pochádzajú aj z laickej verejnosti. O reakcii odborníkov sme už hovorili, a to treba pripomenúť, že ide o prvú realizovanú stavbu (okrem interiérov) ateliéru Pantograph.
Ja som bol v Poľovníckom dome v druhej polovici októbra, keď v prírode doznievalo babie leto. Príroda hrala všetkým farbami a ostro kontrastovala s tmavými a výraznými tvarmi netradičného domu. Ten akoby tu bol stále. Nikoho nevyrušoval, ale zároveň priťahoval. Vie, že skrýva tajomstvo, ale nepotrebuje ho povedať za každú cenu. Dobrý nápad a osvietený investor priniesli na Slovensko ďalšiu dobrú architektúru.
POĽOVNÍCKY DOM NA ZÁHORÍ
Miesto: pod vrchom Vysoká, kataster obce Kuchyňa na Záhorí
Investor: Poľovnícka organizácia Bučková
Architekti: Pantograph, s. r. o.
Realizácia: 2016
Plocha pozemku: 7 592 m2
Úžitková plocha: 237,5 m2
Zastavaná plocha chaty: 288,28 m2
Obstavaný priestor: 887,29 m3
Plocha zelene: 7 103,14 m2
Kapacita
Jedálenská časť: asi 54 miest na sedenie
Ubytovacia časť: 8 lôžok + 1 mezanín – spolu 9 osôb
Pôdorys poľovníckeho domu
TEXT: ĽUDOVÍT PETRÁNSKY; FOTO: LÍVIA ŠTOKINGEROVÁ; DOKUMENTÁCIA: PANTOGRAPH
Článok bol uverejnený v časopise ASB 11-12/2017.



















