Peter Dass Múzeum
Ak majú nórski architekti k dispozícii nádherné miesto, nepostavia objekt priamo naň, ale vedľa, aby sa jeho krásou dalo kochať aj naďalej. Takýto je aj projekt z dielne architektonického štúdia Snøhetta.
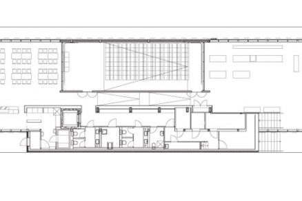
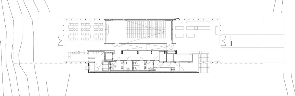
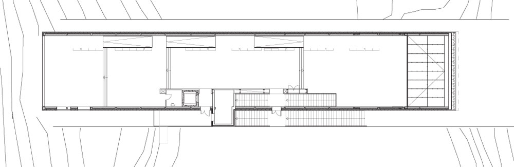
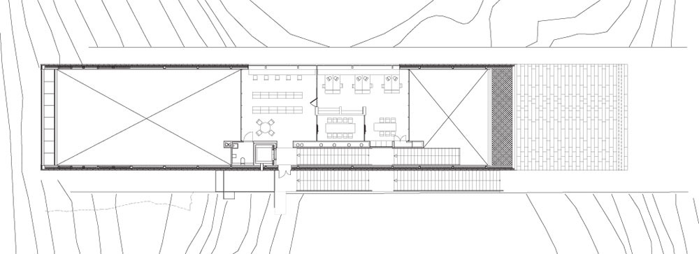
Petter Dass bol jedným z najvýznamnejších a najobľúbenejších nórskych básnikov. Od roku 1689 až do svojej smrti v roku 1707 pôsobil ako farár Alstahaugskej farnosti. Dôležité historické súvislosti spojené s týmto miestom stáli na začiatku projektu múzea venovaného tejto osobnosti nórskej literatúry a dejín.Zadanie projektu zahŕňalo výstavbu múzea s rozlohou 1 350 m2 a úpravu priľahlých plôch, vybudovanie parkoviska a obslužnej budovy. Múzeum má dve podlažia a okrem výstavných priestorov v ňom návštevník nájde aj kaviareň, knižnicu a spoločenskú sálu.
Symbolické prepojenie
Architekti v snahe čo najmenej narušiť lokalitu novým zásahom jednoducho odstránili časť svahu, doslova z neho kus odrezali a približne v objeme vybranej hmoty navrhli objekt múzea. Z diaľky vyzerá miesto takmer neporušene s malým náznakom posunu hmoty, ktorý v zimnom období takmer úplne kamufluje sneh, ale zblízka je zrejmé, že stavba je samostatný objekt, ktorý môže voľne dýchať.
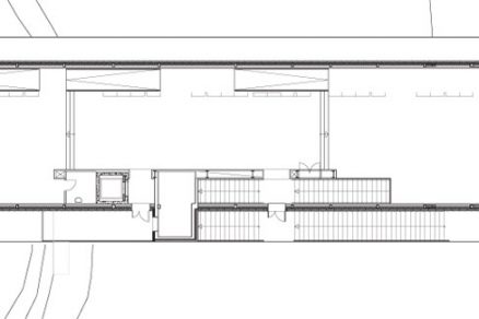
Expresívne tvary múzea stoja v kamennej brázde s dĺžkou 70 metrov. Do hladka opracované kamenné múry prírodného svahu sú od seba vzdialené 15,5 metra, samotné múzeum má 11,5 metra, takže z každej strany je vytvorený dvojmetrový pás prístupný verejnosti. Odstup od tmavých skál ponúka nové zaujímavé priehľady z exteriéru do interiéru a naopak a návštevníci sa môžu voľne prechádzať okolo celej budovy.
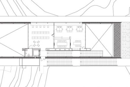
Veľké sklenené plochy prízemia zdôrazňujú vzájomné materiálové aj vizuálne pôsobenie pôvodnej prírodnej hmoty a ľudského novotvaru s oceľovou konštrukciou a so zinkovou fasádou. Natiahnuté konce budovy na konzolách symbolizujú prepojenie minulosti s budúcnosťou. Na jednej strane majú návštevníci cez veľkoplošné sklenené plochy nádherný výhľad na historický kostolík a na druhej strane môžu rozjímať pozorujúc meniacu sa scenériu oblohy. Práve tento výhľad do ďalekých výšok znázorňuje podľa autorov budúcnosť.
![]() |
![]() |
Bez podpory
Ako pri ďalších svojich projektoch, ani v prípade múzea Pettra Dassa sa architekti z ateliéru Snøhetta nebáli radikálnych výrazných tvarov, ktorých vizuálny účinok je taký silný, že nepotrebuje žiadnu ďalšiu podporu v podobe dizajnových výstrelkov v interiéri. Farebná paleta im stačí neutrálne monochromatická. Rovnako asketická ako tvary a farby je aj nórska príroda, ktorá je vizuálne neoddeliteľnou súčasťou interiéru. Čistú bielobu omietnutých stien zatepľuje len drevená dubová podlaha a farebnosť samotnej expozície.
| Petter Dass múzeum Miesto: Alstahaug, Sandnessjøen Kommune, Nordland fylke Klient: KF Petter Dass Eiendom Investor: Alstahaug kommune, Nordland fylkeskommune, Kultur- og kerkedepartementet, privátni darcovia Autor: Snøhetta AS Architekti: Kjetil T Thorsen, Tarald Lundevall, Astrid Renata Van Veen, Maria Svaland, Jim Dodson, Bartosz Milewski; Tom Holtmann, Ellen Heier, Andreas Nygaard Návrhy interiérov: arch. Heidi Pettersvold Krajinná architektúra: arch. Jenny B. Osuldsen, Lars Jørstad Nordbye Konštrukcia: Norconsult AS v/ Frank Jacobsen Základy: Alsten Maskinstasjon AS Oceľové konštrukcie: Lønnheim Entreprenør AS Betónové konštrukcie: EntrepreTOR AS Exteriérové práce: EntrepreTOR AS Interiérové práce: Veidekke AS Zastavaná plocha: 1 350 m2 Zadanie projektu: 2001 Ukončenie výstavby: 2007 |
TEXT: Mária Nováková
Podklady a dokumentácia: Snøhetta
Foto: Ćke e lindman
Článok bol uverejnený v časopise ASB.





















