Ostrov kultúry uprostred jazera
Nový Peking a úžasné hry – to je jeden zo sloganov svetovej udalosti, ktorú bude v roku 2008 hostiť ázijský kontinent. Touto optikou poňali pri príležitosti konania Letných olympijských hier v Pekingu transformáciu mesta aj čínske autority. Návštevníci tejto veľkolepej udalosti budú mať možnosť vzhliadnuť i novostavbu Čínskeho národného divadla, ktorá sa nachádza v srdci metropoly pozdĺž radu Chang’An vedľa Ľudového parlamentu. „Rozhodnúť o realizácii Čínskeho národného divadla na mieste, kde sa sústreďuje také množstvo významných historických stavieb, prirodzene vyvoláva snahu podať svedectvo o význame kultúry vo vzťahu k histórii a súčasnému svetu,“ vysvetľuje autor návrhu opery, architekt z parížskeho prostredia Paul Andreu. Objekt, ktorého zaoblená hmota vystupuje v podobe ostrova zo stredu vodnej plochy, sa rozprestiera na ploche takmer 15 hektárov.
S rešpektom k okoliu

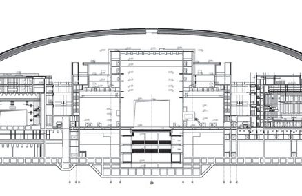
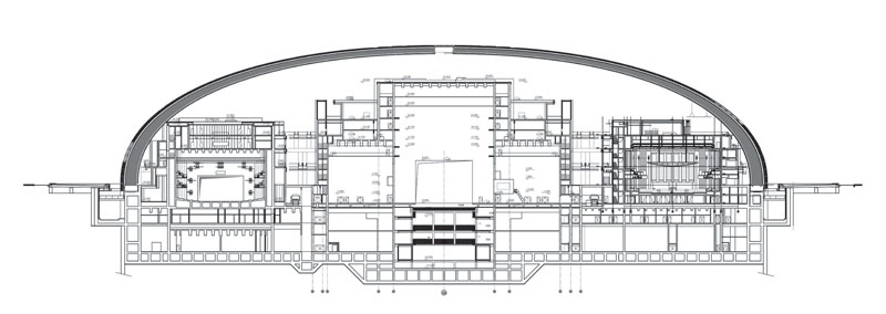
Budova divadla zastrešuje tri sály – operu pre 2 416 divákov, koncertnú sálu s kapacitou 2 017 ľudí a divadelný priestor pre 1 040 návštevníkov. Svoje miesto si našli aj priestory na kreatívnu tvorbu či výstavné priestory so štedrosťou, otvorené mestu.
„Taký významný počin nedovoľuje, aby sa budova stala druhoradou, temnou, či dokonca nepovšimnutou. Rovnako nemožno pripustiť, aby zostávala v izolácii. Preto sme vyvinuli úsilie maximálne rešpektujúce budovy, ktoré ju obklopujú a ktoré všetky – na rôznych stupňoch – poznačili históriu čínskej architektúry. Zároveň, s odvahou podobnou dnešnej architektúre, sme jej prepožičali aj vitálnosť,“ vysvetľuje Andreu.
Areál verejných priestorov a sál spočíva na podnoži, kde sa všetky technické vybavenia sústreďujú do jedného celku, lebo ich prvoradým cieľom je efektívnosť podobne ako v prípade priemyselnej výroby. Nedochádza tak k stratám pri fungovaní takého rozsiahleho komplexu. Nič nemá narušiť rovnováhu verejných priestorov a potešenie návštevníkov.
Vstúpiť do sna
Do hlavného objektu verejnosť vstupuje cez priehľadnú galériu dlhú 60 m, ktorú architekt ukryl pod hladinu vodnej plochy. Reliéf ostrova tak zostáva nedotknutý. Galéria predstavuje mysteriózne miesto, ktoré slúži na prechod z každodennej reality do sveta fikcie a snov bez toho, aby sa zvlášť zviditeľňoval vstupný otvor. Tento priestor je verejne prístupný a predstavuje mestskú štvrť s reťazou rozličných priestorov – uličiek a námestí, obchodných priestorov, reštaurácií, čakacích či oddychových priestorov. Obzvlášť rozvinutý verejný priestor prepožičiava monumentu charakter otvorenosti a ľudovosti.
„Má to byť otvorené fórum, a nie miesto predstavení pre elitu. Jednotlivé miesta predstavení vyúsťujú práve do tohto priestoru,“ približuje zámer architekt Paul Andreu. Vstupy do sál sú rozmiestnené tak, aby bol dav ľudí rovnomerne rozložený v celom priestore a pohyb si zachoval plynulosť.
Predstavenie sa začína
Operná sála zaujala svoje miesto uprostred. Operné umenie najviac závisí od konvencií, preto mu v monumente prislúcha najvýznamnejšie miesto.
Priestory auditória a divadla sa nachádzajú po jeho stranách. Nemožno k nim pristúpiť priamo, ale treba sa k nim postupne prepracovať. A to si vyžaduje čas objavovať priestor.
Opera je zabalená do metalického materiálu zlatistej farby. Pred múrmi alebo neosvetlenými časťami pôsobí jeho štruktúra ako nepriehľadná, na ostatných miestach sa stáva čiastočne transparentným a s istým odstupom odhaľuje vnútorný priestor.
Diváci prenikajú do opery dvoma veľkými dvernými otvormi vo vonkajšom zlatistom múre. Keď nimi prejdú, vstupujú do priestoru zvislého pohybu, ktorý ich vzďaľuje od vonkajšieho sveta a zároveň ich približuje k vytúženému miestu – momentu predstavenia.
Z hlavnej haly ešte možno divákov vzhliadnuť, avšak už s istým odstupom, ktorý vytvára čiastočná transparentnosť.
Symbolike múru prislúcha oddelenosť, ale najmä psychologická a symbolická vzdialenosť, ktorú treba pred vstupom do sveta zážitku z predstavenia prekonať.
Objavovať je dovolené
Celý koncept je hrou postupných vrstiev, prechodov a priestupov, priehľadnosti a svetla. Foyer na najvyššej úrovni opery ponúka publiku, podľa možností a času využitia opery, panoramatickú vyhliadku na mesto, možnosť uvidieť svoje mesto z iného, dosiaľ nepoznaného uhla pohľadu a znovuobjaviť ho.
„Hľadali sme harmóniu v zmesi skromnosti a ambície, za a proti. Progresívne postupovať jednotlivými etapami aj vďaka názorom, ktoré sme mali možnosť si vypočuť, avšak bez toho, aby sme zo zreteľa spúšťali to, čo bolo pre nás podstatné od začiatku.
Čínske národné divadlo má byť divadlom v meste, otvoreným pre všetkých. Tak ako novučičká štvrť, v ktorej má priestor fantázia, sny a zážitok z predstavenia,“ uzatvára svoje pekinské predstavenie architekt Andreu.
Názov stavby: Čínske národné divadlo Miesto: Avenue Chang‘An, Peking
Investor: The Grand National Theatre Committee
Autori architektonického riešenia: Paul Andreu a ADPi
Spolupráca: François Tamisier (ADPi) a Hervé Langlais
Hl. inžinier projektu: Felipe Starling (ADPi)
Akustika: M. Vian (CSTB)
Scénografia: M. Rioualec
Umelecká podpora: Ruling Zhang Blein
Celkové náklady na realizáciu: viac ako 2 miliardy Sk
Celková plocha: 149 500 m2
Rozmery škrupiny: dĺžka veľkej osi – 212,42 m, dĺžka malej osi – 143,82 m, výška – 46 m
Kapacita sál: operná sála – 2 416 miest, koncertná sála – 2 017 miest, divadlo – 1 040 miest
Začiatok realizácie: 1999
Koniec realizácie: 2007
Celková plocha: 149 500 m2
Celkové náklady: 364 miliónov eur
Lucia Hakelová
Foto: Paul Andreu













