Najväčšie centrum predškolského vzdelávania na svete
V septembri 2017 bolo v Singapure otvorené najväčšie predškolské zariadenie na svete Early Learning Village. Zmestí sa doň až 2 100 detí vo veku od 18 mesiacov do 6 rokov a výchovu bude viesť 400-členný odborný personál. Za projektom stojí londýnska pobočka Bogle Architects, pre ktorú bolo zásadné prispôsobiť návrh malému človeku, ktorý začína vnímať veľký svet okolo seba.
Svetové médiá vo svojich reakciách na túto stavbu uviedli, že ide o historický míľnik v oblasti navrhovania projektov predškolskej výchovy. Ide o neuveriteľne inovatívny architektonický návrh inštitúcie pôsobivých rozmerov, ktorý si i napriek gigantickému objemu zachoval logický koncept a je plný vizuálnych podnetov, z ktorých môžu čerpať deti aj učitelia.
Kľúčovou výzvou pre architektov bolo zabezpečiť, aby veľkosť objektu nebola pre malé deti zastrašujúca, aby sa zaistil plynulý pohyb užívateľov a aby bol návrh objektu, vo svojej podstate hravého a zábavného, aj dostatočne flexibilný vstrebať prípadné zmeny na trhu.
Hlavný vstup do objektu
Synergia dvoch inštitúcií
Zadanie od Cognita – celosvetového prevádzkovateľa vzdelávacích centier – zdôrazňovalo, že tento ambiciózny projekt bude modelom škôl budúcnosti. Ponúka totiž prvky, ktoré sú v stavbách predškolského vzdelávania veľmi zriedkavé: externé hravé zóny, bazén, flexibilnú viacúčelovú halu a špeciálne triedy na výuku umenia, hudby a tanca.
Cognita využila synergiu dvoch svojich inštitúcií – Australian International School (AIS) a Stamford American International School – a v Singapure vybudovala komplex 5 budov, v ktorých je viac ako sto tried. „Jedna inštitúcia kladie dôraz na obchod a komerčný aspekt, druhá zase na vzdelanie,“ približuje Michael Drake, CEO v spoločnosti Cognita Asia. „Pevne veríme, že táto spolupráca prinesie do vzdelávacieho procesu predškolského veku množstvo inovatívnych impulzov. Niektoré procesy pôjdu vďaka tomuto prepojeniu oveľa rýchlejšie a už onedlho budeme môcť reálne hovoriť o konkrétnych výsledkoch.“
Vstupná pergola
„V biznis reči by sa teda dalo povedať, že viac detí znamená aj väčšie úspory, a to v celom rozsahu našej činnosti,“ dodáva Michael Day, šéf Stamford American International School. „Keby sme riešili obe školy oddelene, prišli by sme o úžasnú pridanú hodnotu, ktorou je vzájomné ovplyvňovanie vzdelávacieho procesu, výmena skúseností a odovzdávanie vedomostí.“ Napriek globálnemu cieľu, ktorým je vzdelávanie, je rozsiahle centrum útulným a veľmi dôverným miestom pre deti bez rozdielu veku.
Early Learning Village z vtáčej perspektívy
Deti rovnakého veku sa sústreďujú na spoločných poschodiach a sú ďalej členené do štyroch menších kolektívov, aby sa s nimi lepšie pracovalo. „Budova možno pôsobí zvonku obrovsky, ale deti a ich rodičia po vstupe do nej hneď prídu na to, že tieto štyri triedy sú ako bezpečná a zároveň priateľská školská dedinka,“ upozorňuje Adam Patterson z AIS. „A keďže na jednotlivých poschodiach máme množstvo ihrísk a hracích priestorov, deti tam môžu ísť kedykoľvek a nielen po obede ako v iných podobných zariadeniach.“
Architektúra vzťahov
Škola je špeciálne navrhnutá na podporu výuky detí pomocou zážitkov a ponúka živé výučbové priestory plné farieb a svetla. Zatiaľ čo učitelia majú možnosť čerpať z dospeláckeho pohľadu na priestor, Bogle Architects navrhli duálne prostredie a zahrnuli do projektu dvere veľkostne prispôsobené deťom, pracovné lavice so schodíkmi pre deti rôznych výšok i orientačný systém umiestnený na zemi a v úrovni očí detského užívateľa.
Axonometria návrhu
Dôležitým predpokladom architektov zvládnuť túto úlohu bolo aj dlhodobé skúmanie vzťahu medzi deťmi rozličného veku. Organizácia a prevádzka objektu ELV reaguje na odlišné potreby 18-mesačných detí od 6-ročných predškolákov a na nižších úrovniach umiestňuje bohatú extenzívnu zeleň pre 4- až 5-ročné deti, v tesnej blízkosti priestorného občerstvenia pre ich rodičov.
Pozdĺžny rez
Návrh bezprostredného prostredia pre deti vychádzal z filozofie Reggio Emilia. Architekti vytvorili prostredie, ktoré je otvorené a veľmi pútavé, plné denného svetla a prepojené s vonkajším prostredím. Rôznorodé priestory variujú od menších plôch senzorickej výuky až po veľké exteriérové plochy určené na hru i rozvoj sociálnych vzťahov, a to preto, že bohatá škála zážitkov je pre vývoj detí zásadná.
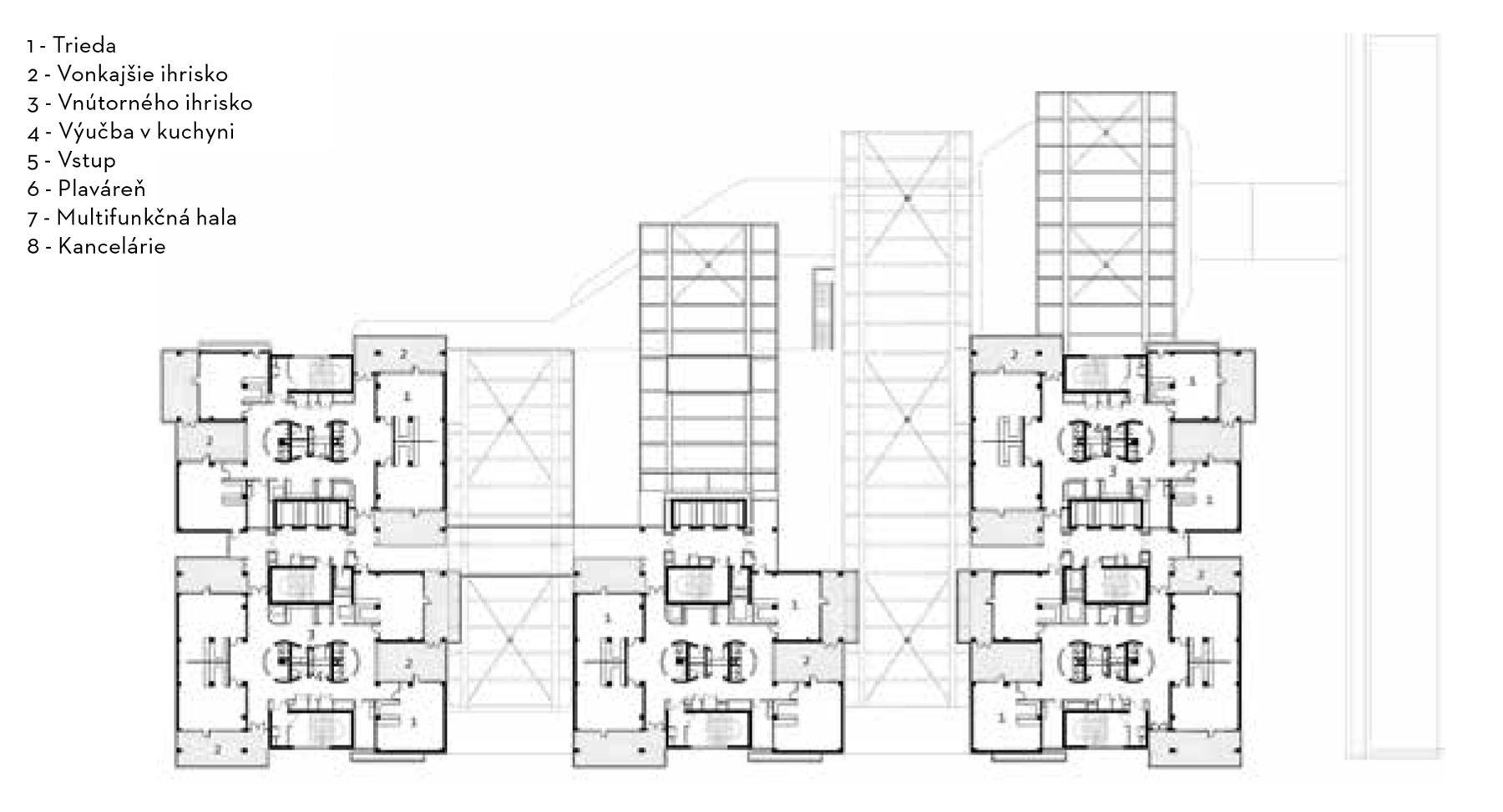
Pôdorys 5. nadzemného podlažia
V interiéroch má všetko svoj zmysel, aj ten najmenší detail. Napríklad nižšie okenné parapety umožňujú deťom sadnúť si na ne a pozorovať okolitý svet, ale zároveň si na nich môžu čítať knihy a rozvíjať sa po intelektuálnej stránke. Vonkajšie plochy – 20-metrový bazén, multifunkčná hala a množstvo ihrísk – zase slúžia na rozvoj fyzických zdatností.
![]() |
|
| Pôdorys 3. nadzemného podlažia | Typický detailný rez |
Pútavý a hravý
„Hlavná výzva nebola v tomto prípade v zdôraznení veľkosti objektu, ale v snahe urobiť z budovy objekt, ktorý by pôsobil menšie, hravo a zaujímavo pre svojich malých užívateľov,“ hovorí Ian Bogle z prestížnej architektonickej kancelárie Bogle Architects, ktorá má svoju centrálu v Londýne a pobočky v Prahe a v Hongkongu. „Tento komplexný projekt bol pre nás výnimočným zadaním, na ktorom sme si vyskúšali zvládnutie logistiky a vertikálnej prevádzky v samotnom objekte tak, aby bola orientácia a pohyb obrovského počtu učiteľov a detí čo najviac zjednodušená. Výsledkom je komplex, ktorý pôsobí intímne a osobne, vizuálne komplexne, ale jednotne a poskytuje inšpiratívne prostredie pred žiakov, rodičov a odborný personál.“
Plocha pre hru detí na 3. nadzemnom podlaží
Keďže doteraz neboli definované zásady pre navrhovanie budov tejto typológie, architekti sa inšpirovali úplne typickou materskou školou, ktorú tvoria tradične 4 triedy umiestnené okolo centrálneho priestoru s vonkajšími plochami asi pre 100 detí.
Plaváreň s 20 – metrovým bazénom
Pomocou detailných analýz a 3D modelu sa ukázal ako optimálny princíp návrhu ELV vertikálne vyskladanie takýchto škôlok nad seba, s vykonzolovanými pergolami. Vytvorilo sa tak hravé prostredie a potrebná ochrana pred nepriazňou počasia.
Pergoly poskytujúce útočisko pred nepriazňou počasia
„Ak by som mal zhrnúť najdôležitejšie princípy ELV návrhu, sú nimi maximalizácia denného osvetlenia, priehľady do exteriéru ale i v rámci interiéru kvôli dohľadu nad deťmi, jasná a zrozumiteľná prevádzka a dôraz na životné prostredie,“ dodáva architekt Ian Bogle.
Toto centrum predškolského vzdelávania je otvorené všetkým národnostiam vrátane Singapurčanov. Poplatky za detí závisia od veku detí a počtu dní strávených v tomto zariadení. Ak si rodič pre dieťa objedná trojročnú dochádzku na päť dní v týždni, vyjde ho na 14,5 tisíca amerických dolárov (asi 12,4 tisíca eur) za polrok.
CENTRUM PREDŠKOLSKÉHO VZDELÁVANIA EARLY LEARNING VILLAGE
Miesto: Chuan Lane, Singapur
Klient: Cognita
Autori návrhu: Bogle Architects ltd.
Lokálni architekti: A61 Architects
Realizácia: 7/2015 – 8/2017
Podlažná plocha: 54 000 m2
Kapacita: 2 100 detí
TEXT: ĽUDOVÍT PETRÁNSKY, FOTO: BOGLE ARCHITECTS/INFINITUDE, DOKUMENTÁCIA: BOGLE ARCHITECTS
Článok bol uverejnený v časopise ASB 10/2017.





















