Miesto nádeje pre onkologických pacientov
Dánske mesto Næstved sa môže pýšiť novým poradenským centrom pre onkologických pacientov. Stavba za z takmer 2 milióny eur od architektonického štúdia Effekt z Dánska, zastrešuje okrem poradenstva aj voľnočasové aktivity pre pacientov. Cieľom návrhu malo byť vytvorenie miesta, ktoré by malo skôr zanechávať pocit útulného domova ako inštitúcie.
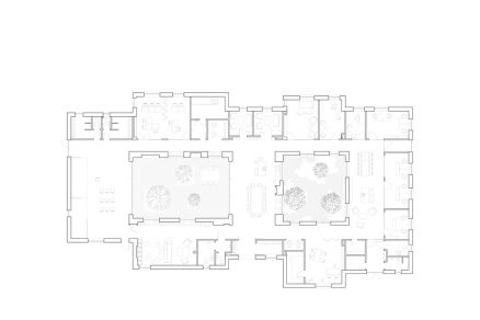
Tvar stavby je vytvorený ako súbor 7 budov, ktoré vyzerajú ako rodinné domy, pričom každá časť je určená pre iný účel.
Výzor rodinných domov dopĺňajú sedlové strechy s rôznymi sklonmi, celkovo tak objekt pripomína radovú zástavbu.
Poradenské centrum sa nachádza čiastočne v rodinnej zástavbe, takže svojim vzhľadom výrazne nevytŕča.
Každá časť je navrhnutá a vybavená pre iný účel. Vo vnútri nájdete knižnicu, kuchyňu, klubovňu, telocvičňu, obchod, wellness a administratívne priestory.
Fasáda domu je vytvorená z bielych cementovláknitých dosiek, ktoré sú uložené horizontálne. Výnimku tvoria dve fasády zo zvislo uložených drevených dosiek pre zvýraznenie vstupu do objektu.
V strede sa nachádzajú dva dvory, s vysadenou zeleňou a záhradným nábytkom, ktoré rozširujú spoločenské priestory interiéru. Vďaka obklopeniu zo všetkých strán sú dvory dobre odhlučnené.
Interiér je vybavený dreveným nábytkom a podlahou, celkovo pôsobí útulne a komfortne.
Na ploche 740 m2 je dostatok miesta aj pre malú telocvičňu.
Hlavné časti objektu sú medzi sebou dobre poprepájané aby poskytovali lepší priestor k spoločenskej interakcii medzi pacientmi, personálom a návštevou.
Peter Rypák
Foto: effekt.dk




















