Z levickej synagógy sa stane kultúrne centrum
Levická synagóga sa nachádza v historickej časti mesta pod hradom a postavili ju v rokoch 1853 – 1857 v klasickom eklektickom štýle, charakteristickom aj pre iné synagógy na Slovensku. Synagóga bola sanovaná pôvodne podľa projektov z rokov 1983 – 2002 a v súčasnosti je staticky stabilizovaná. Jej rekonštrukcia bola zastavená z finančných dôvodov. Pripravil sa nový projekt, ktorý vychádza z iných zámerov investora.
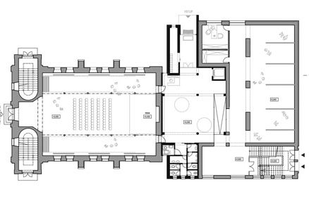
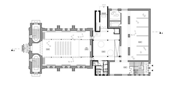
Pôvodný projekt rekonštrukcie synagógy neuvažoval o využití školy. Teraz, po jej majetkovoprávnom vysporiadaní, je možné z dvoch objektov vytvoriť kultúrno-spoločenské centrum prepojené spoločným nádvorím. Pôvodne mala synagóga hlavný vstup zo strany hradu, ale v budúcnosti sa bude používať iba výnimočne. Bočné vstupy do synagógy vedú na empory, ktoré boli podľa židovskej tradície určené ženám. Keďže v novom koncepte sa z dvoch budov vytvorí jeden komplex, je vhodnejšie situovať nový vstup do nádvoria medzi synagógu a školu zo severnej strany. Nádvorie bude prekryté a v budúcnosti sa bude využívať aj ako vstupná hala so servisnými priestormi. Návštevnícky výťah bude vertikálnou komunikačnou osou obidvoch objektov. Pred vstupom budú aj odstavné plochy pre automobily návštevníkov.
Architektúra synagógy sa zachová aj s pôvodnou dispozíciou bez zásahov, pričom pôvodná konštrukcia bude očistená. Zachované maľby a omietky sa zakonzervujú v súčasnom stave. Komplex sa doplní mobilnými prvkami. Osvetlenie bude decentne zabudované a orientované na vystavené exponáty. Na prízemí i na poschodí budú exponáty stálej zbierky. V mieste, kde bola pôvodne uložená tóra, bude miesto pre pódium. Predpokladá sa využívanie priestoru na komorné koncerty, prednášky i malé divadelné produkcie.
V druhej etape sa bude rekonštruovať bývalá židovská škola. Z jej učební sa vybúraním priečok vytvoria výstavné priestory. V suteréne budú depozity. Výstavné priestory v bývalej škole sa cez vstupnú halu prepoja so synagógou. V škole by mali byť tematické výstavy, najmä zo zbierok zberateľov z levického regiónu. Rekonštrukcia školy si vyžiada úpravy fasády. Na čelnej južnej strane bude potrebné zamurovať okná, pretože výstavné priestory si vyžadujú nepriame a umelé osvetlenie. Slnečné osvetlenie, najmä z južnej strany, je nevhodné. Pôvodné schodisko v škole zostane zachované. Škola bude napojená aj na nový výťah.
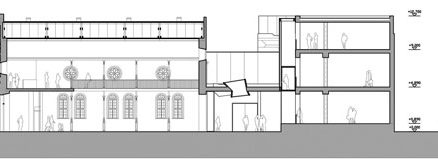
Fasády synagógy sa obnovia podľa pôvodných historických podkladov. Nová vstavaná hala bude citlivo osadená k synagóge. Nová fasáda školy bude čiastočne rešpektovať pôvodný výraz moderny a predsadené fasádne prvky vytvoria nové čelo pri pohľadoch od centra mesta. Časť parku sa doplní priestorovými exponátmi.
Pôdorys 1.NP
Rez
| Rekonštrukcia synagógy v Leviciach Funkcia: Multifunkčné kultúrne centrum Investor: Mesto Levice Autori architektonického riešenia komplexu: AA atelier Architektúry – prof. Ján M. Bahna, Marek Danihel, Juraj Kurpaš, Mirka Kavická, Ivan Galanda Generálny projektant rekonštrukcie Synagógy: Jakab Design Studio, Komárno Štúdia: 2007 Projekt: 2009 – 2010 Realizácia: v priebehu Dodávateľ rekonštrukcie: Furmet Group | 
Ján M. Bahna
Vizualizácie: AA atelier
Autor je člen redakčnej rady časopisu ASB.
Článok bol uverejnený v časopise ASB.
 
													








 
						 
						 
						 
						 
						 
						



 
					 
					 
					 
					 
					 
					 
					 
					 
					 
					 
					 
					 
					 
					 
					 
					 
					 
					 
					 
								 
								 
								 
								 
								