Z bývalej fabriky kongresové a výstavné centrum
Územie starého cukrovaru v španielskom Leóne sa mení na kongresové a výstavné centrum. Realizácia minimalizuje všetko, čo by nesúviselo s trvalou udržateľnosťou.
Francúzsky architekt Dominique Perrault chce v niekdajšej fabrike znova zasvietiť, aby zhmotnil dynamiku tohto mestského územia na začiatku 21. storočia. Ako to chce urobiť? Osobitým architektonickým výrazom, zapojením stavby do urbánneho prostredia a využitím najnovších technológií, ktoré majú jasné stratégie trvalej udržateľnosti. Perraultov projekt zvíťazil v architektonickej súťaži v roku 2005 a jeho súčasťou je rozvojový plán celej priemyselnej zóny. „Náš projekt chce obsiahnuť všetko podstatné, čo sa týka rozvoja mesta León,“ hovorí Dominique Perrault. „Jeho spojenie s historickou budovou, centrom, ako aj so stanicou rýchlovlakov.
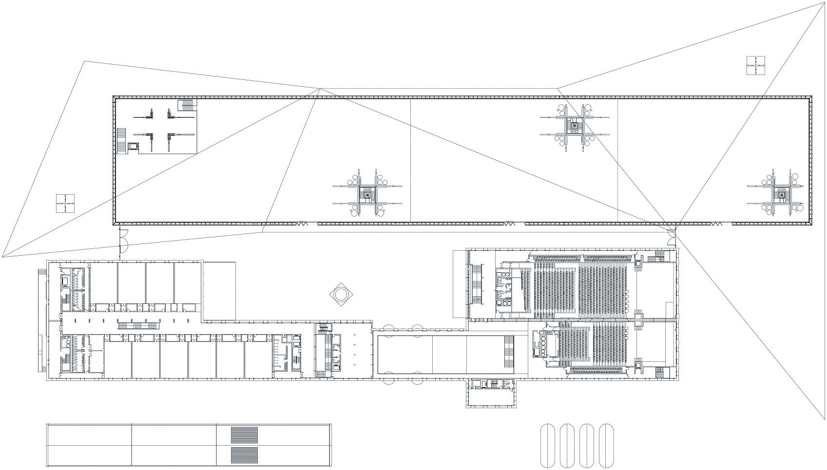
Priestor polyfunkčného centra sa bude flexibilne meniť v závislosti od charakteru spoločenskej či kultúrnej akcie. Dôležitou súčasťou trvalo udržateľného projektu bude obnoviteľná energia získavaná cez fotovoltické panely na streche, pričom cez komíny sa bude recyklovať vo vzduchových rúrach. Veľký dôraz kladieme aj na akustické parametre hál, a preto používame nové materiály, ktoré rovnomerne šíria zvuk po priestore a nevytvárajú ozvenu.“ V kongresovom a výstavnom centre budú tri rôzne výstavné priestory na ploche 12 700 m2, pričom kongresové centrum na 8 500 m2 bude členené na rôzne haly, výstavné plochy, miestnosti na obchodné schôdze a pre médiá, administratívu či kaviarne a na parkovisko so 400 miestami.
Centrum sa bude flexibilne meniť v závislosti od charakteru spoločenskej akcie.
Stratégie udržateľnosti
Obnova energií a ochrana vody je výsledkom zložitého technologického systému, ktorý sa zakladá na principiálnych stratégiách. Limitné zníženie nákladov na vykurovanie a chladenie sa odvíja od sofistikovaných fasád s dvojitou vrstvou, zavesenou strechou a kompaktnosťou celej budovy. Jej princípy založené na pasívnom štandarde znižujú množstvo tepla potrebné na prevádzku budovy o vyše 30 %.
Nové materiály budú rovnomerne šíriť zvuk po priestore bez ozveny.
Výroba obnoviteľnej energie sa odvíja od produkovania elektrickej energie cez 1 300 kusov fotovoltických panelov zabudovaných priamo v streche, pričom horúca voda sa bude vyrábať z dodatočných solárnych panelov na ploche 300 m2. Dažďová voda sa bude zberať do veľkých zásobníkov (s kapacitou vyše 1 000 m3) ukrytých v podzemí a následne využívať v toaletách, na zavlažovanie rastlín a čistenie verejných priestranstiev pred budovou. Energetická simulácia budovy je dokonca nastavená tak, že množstvo spotrebovanej energie počas roka (440 MWh) bude nižšie ako kapacita vyrábanej.
Dominique Perrault sa snažil prepojiť centrum s historickou budovou niekdajšieho cukrovaru.
Projekt v Leóne nezaprie svojho tvorcu, ale ani aktuálne trendy 21. storočia. Sebavedomý dizajn aj masívne technológie, ktoré šetria prírodu. Originálne tvaroslovie, ale aj rešpektovanie okolia a zapojenie sa do mestského organizmu. To je architektúra D. Perraulta, ktorá slúži, ale zároveň ju aj vidieť.
Pôdorys 1. nadzemného podlažia
Situácia
Kongresové a výstavné centrum
Miesto: Ulica Dr. Fleminga, León, Španielsko
Architekt: Dominique Perrault Architecte
Klient: Mesto León
Architektonická súťaž: október 2005, 1. miesto
Realizácia: 2009 – 2018
Zastavaná plocha: 41 000 m2
Obstavaný priestor: 318 000 m3
Celková investícia: 50 mil. € (okrem daní)
LEÓN, ŠPANIELSKO
TEXT: ĽUDOVÍT PETRÁNSKY,
VIZUALIZÁCIE, DOKUMENTÁCIA: DOMINIQUE PERRAULT ARCHITECTE
Článok bol uverejnený v časopise ASB.















