SNG chce vykročiť smerom k divákovi
Premostenie Slovenskej národnej galérie (SNG) patrí k najkontroverznejším motívom modernej architektúry v Bratislave. Verejnosť s ňou stále nie je stotožnená, odborníci ju však takmer bezvýhradne prijímajú. Dokonca aj vplyvná osobnosť európskej architektúry Wolf Prix z Coop Himmelb(l)au o nej nadšene hovoril ako o „skvelom príklade brutalistickej architektúry s jednoduchými formami“. Dedečkovo premostenie nezmizne ani v novom návrhu rekonštrukcie SNG od ateliéru Architekti BKPŠ autorov Martina Kusého a Pavla Paňáka, ktorý vzišiel zo súťaže. Podľa Ing. arch. Pavla Paňáka „je premostenie navrhnuté s novým metalickým opláštením. Tým sa zestetizuje a sfunkční, bude mať zabudované nové progresívne technológie a bude ladiť s prostredím“.
Bez okázalého gesta
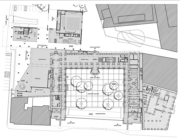
A práve premostenie, čiže moderná prístavba SNG, sa stane ústredným bodom v prioritnej prvej etape rekonštrukcie tejto národnej inštitúcie. „Inými slovami, aj prostredníctvom neho chceme vytvoriť otvorený a pozývajúci areál galérie,“ hovorí Pavol Paňák. „Stavebné povolenie na túto etapu už máme, záleží už len na okolnostiach a výberovom konaní, kedy sa s prestavbou začne.“ Architekt Paňák zároveň očakáva, že by sa tak mohlo stať už koncom tohto roku. Po prvej etape rekonštrukcie budú nasledovať ďalšie dve etapy – Vodné kasárne, Depozitár a administratívna budova – a na záver sa uskutoční výstavba novej viacúčelovej haly s výstavným krídlom, ktorá bude na mieste súčasného amfiteátra a knižnice.
„Podoba areálu SNG už nepotrebovala žiadne impozantné gesto,“ vysvetľuje architektonický prístup Pavol Paňák. „Skôr treba objaviť a sceliť nejestvujúce, skryté alebo rozvrátené funkčné a priestorové vzťahy. Vo vnútri areálu navzájom, ale aj vzťahy k susediacim priestorom centra mesta. Najviditeľnejším prvkom renovácie bude oddelenie nádvoria a vozovky na Rázusovom nábreží sklenenou stenou.“
Potenciál nových súvislostí podľa architekta obsahoval aj trochu iracionálny vzťah torza vodných kasární a torza Dedečkovho zamýšľaného súboru. Východiskom hľadania tohto potenciálu sú neodkryté možné vzťahy medzi mestskými priestranstvami (ohraničené plochy s oblohou), ktoré vznikli vkladaním či odoberaním stavebných objemov galérie a okolitých stavieb v nánosoch desaťročí. Striedanie vnútorných a otvorených priestorov galérie je akoby odtlačkom priestorovej a funkčnej podoby zahusteného centra mesta.
Parter galérie ako súčasť mesta
„Principiálnou potrebou areálu je vytvorenie nejestvujúcich vzťahov s centrom starého mesta,“ zdôrazňuje Pavol Paňák. „Parter súboru galérie má byť súčasťou prirodzených prepojení tohto miesta – je cieľom alebo len súčasťou pešej trasy.“ Invenčné riešenie nezasiahne iba výstavné plochy a vnútornú dvoranu, ale aj umiestnenie Dokumentačného centra a nových depozitárov v rámci súčasnej administratívnej budovy. Nový depozit je situovaný na miesto dobrého prepojenia s výstavnými priestormi, reštaurátorskými pracoviskami a administratívnymi priestormi.
Náročný sklad vzácneho obsahu je zároveň umiestnený na zrejme najmenej atraktívnej ploche pozemku SNG v centre mesta. Priebeh hranice pozemku zo severnej strany a logicky pravdepodobné figúry budúcich susediacich stavieb takúto pozíciu takmer predurčujú. Pôjde o jednoduchý objekt vo výške administratívnej budovy. Depozit sochy a ťažkých predmetov s vlastným osobitým výťahom je v parteri s priamym prepojením na nádvorie a s pohodlným zásobovaním z Riečnej ulice. Tento prístup slúži aj na manipuláciu s hosťujúcimi výstavami.
Dokumentačné centrum je osadené čiastočne v administratívnej budove a využíva tak jej plošné rezervy, ale nachádza sa aj v parteri a na prvom nadzemnom podlaží telesa nového depozitu. Má osobitný vstup a integrovanú novú viacúčelovú kinosálu, ktorá môže fungovať i samostatne. Dokumentačné centrum a najmä kinosála sú nezávisle prístupné z administratívnej prevádzky.

Na základe prestavby a dostavby nových objektov získa galéria oproti súčasnému úžitkovému priestoru 7343 štvorcových metrov. Po skúsenostiach spred dvoch rokov, keď havária verejného vodovodu poškodila zbierky v suteréne SNG, bude súčasťou opráv i vytvorenie protipovodňovej úpravy žľabov s odkanalizovaním pre náhle havarijné vody. Staré podlahy nahradia drevené parkety, pôvodnú dlažbu z nádvoria zase veľkoplošná dlažba. Stromy na nádvorí sa však zachovajú.
Názov: Rekonštrukcia a modernizácia areálu Slovenskej národnej galérie
Spracovateľ:  Architekti BKPŠ
Autori: Martin Kusý, Pavol Paňák
Spolupráca: Mária Kusá, Viera Kusá, Jana Paňáková, Martin Kusý ml., Richard Kereškényi
Predpokladaný začiatok: jeseň 2007
Predpokladané ukončenie: 2013
Celkové náklady: viac ako 1 miliarda Sk
Generálny dodávateľ: vo výberovom konaní
Ľudo Petránsky
Vizualizácie: Architekti BKPŠ, Ján Krížik
 
													




 
						



 
					 
					 
					 
					 
					 
					 
					 
					 
					 
					 
					 
					 
					 
					 
					 
					 
					 
					 
					 
								 
								 
								 
								 
								