Rekonštrukcia synagógy v Brezne
Ide o jedinú dochovanú stavbu svojho charakteru v regióne Horehronia a zároveň o spomienku na židovskú komunitu. Synagóga v Brezne bola postavená podľa projektu významného banskobystrického staviteľa Aloisa Payerbergera. V roku 1901 bol položený základný kameň a nasledujúci rok bol chrám vysvätený. V povojnovom období prestala synagóga slúžiť na sakrálne účely a stal sa z nej sklad osiva a nábytku.
Neskôr ju mesto odkúpilo a po čiastočnej rekonštrukcii v nej začalo organizovať kultúrne a spoločenské podujatia. „Rekonštrukcia sa však neuskutočnila v dostatočnom rozsahu, a preto začala synagóga postupne pôsobením poveternostných vplyvov chátrať,“ hovorí Ing. arch. Peter Iľanovský z investičného odboru Mestského úradu Brezno. „Zatekala strecha, nárožné vežičky boli natoľko zdegradované, že sa z nich uvoľňovalo murivo, a dokonca sa v jednej zakorenili náletové dreviny. V exteriéri, na úrovni prízemia, nám ukradli zvody zo strechy, čo spôsobilo podmáčanie základov a zavlhnutie interiéru. V poslednom období sa vykonávali už len bežné udržiavacie práce a vymenili sa okná, no stav budovy bol z technického a stavebného hľadiska ohrozujúci.“
Historická fotografia synagógy
Pohľad do interiéru, stav pred rekonštrukciou
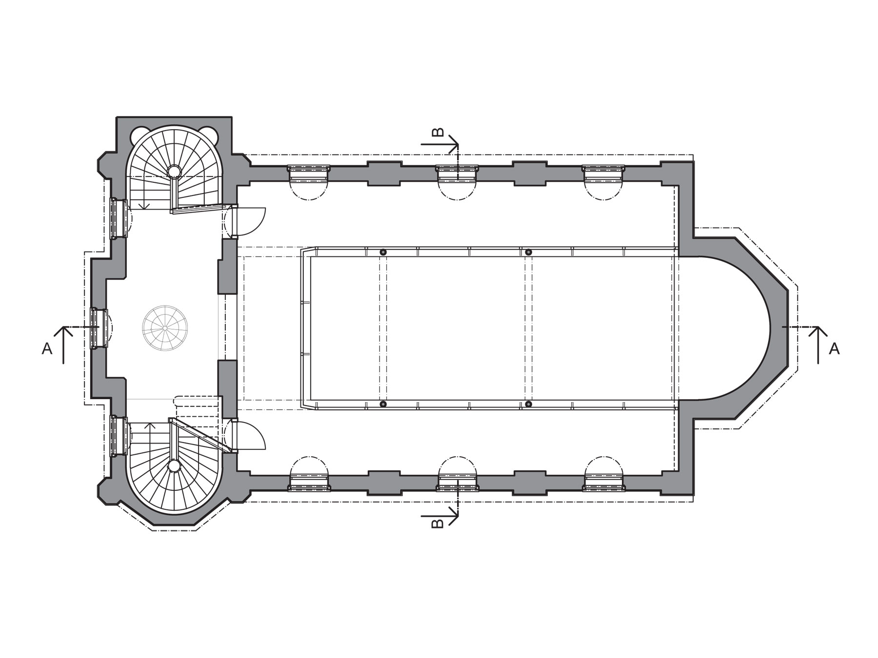
Synagóga priamo susedí s iným domom, pričom oba objekty sa jednou stranou dotýkajú. Svojím pôdorysným tvarom vytvára ležaté písmeno T. Po dvoch stranách objektu sa po celej dĺžke nachádzajú miestne komunikácie. Rozmery synagógy sú 14,3 × 24,6 m. Stavba je nepodpivničená, na rovinatom teréne, s tromi podlažiami (1. NP, 2. NP, 3. NP). Zastrešená je sedlovou strechou (dreveným krovom), kupola aj strešné nábehy majú drevenú konštrukciu. Na prvom nadzemnom podlaží sa nachádza hlavná vstupná miestnosť, ktorá je delená na výstupnú časť vedúcu do druhého podlažia so schodiskami (po oboch stranách 1. NP) a hlavnú halu. Druhé nadzemné podlažie kopíruje prvé podlažie len v prípade vstupnej časti, nad halovou časťou je totiž vytvorená pavlač, „ženská galéria“, v tvare písmena U.
Južný pohľad
Severný pohľad
Eurofondy s termínom
Vzhľadom na alarmujúci stav synagógy sa mesto rozhodlo využiť eurofondy a podať žiadosť o nenávratný finančný príspevok v rámci Regionálneho operačného programu. „Na druhý pokus sme boli úspešní a výsledkom sú prebiehajúce stavebné úpravy,“ upresňuje JUDr. Tomáš Abel, PhD., primátor mesta Brezna, ktoré organizačne zabezpečuje realizácie projektu, kontrolu harmonogramu stavebných prác a zároveň administratívu projektu a komunikáciu s riadiacim orgánom.
„Obnova synagógy je spolufinancovaná z fondov EÚ prostredníctvom Regionálneho operačného programu z dobiehajúceho programovacieho obdobia 2007 – 2013. Preto treba projekt dokončiť do konca roka 2015, stavebné práce do konca novembra 2015 a administratívne procesy do konca roka.“
Západný pohľad
Pozdĺžny rez
Synagóga na kultúru
Po zrealizovaní projektu bude synagóga slúžiť kultúre a mesto chce pokračovať v usporadúvaní podujatí s dlhoročnou tradíciou ako Bomburova šabľa či Chalupkovo Brezno. Plánuje sa organizácia koncertov, výstav, divadla, recitálov a iných kultúrnych a spoločenských podujatí komorného charakteru, ktoré nie je vhodné realizovať vo veľkých sálach.
Zároveň bude sprístupnená nová časť objektu – kupola s výhľadom na mesto. „Obnova kultúrnych pamiatok, historických budov a objektov je jedným z krokov na podporu rozvoja kultúrno-poznávacieho cestovného ruchu,“ uzatvára primátor Tomáš Abel. „Práve v tom vidíme potenciál nášho mesta a veríme, že po rekonštrukcii synagógy sa nám postupne podarí zrekonštruovať a zreštaurovať všetky pamiatky v meste.“
Pôdorys 1. nadzemného podlažia
Pôdorys 2. nadzemného podlažia
Stavebné úpravy – synagóga v Brezne
Miesto: Štúrova ulica, Brezno
Investor: Mesto Brezno
Architekti: INGART, s. r. o., Ing. Mgr. art. Peter Živner, Ing. Ľubomíra Pilišová, Jana Nýblová
Generálny zhotoviteľ: Euro-Building, a. s.
Začiatok rekonštrukcie: september 2015
Ukončenie rekonštrukcie: december 2015
Zastavaná plocha: 284 m2
Celková investícia: 1 124 967,19 eur
Brezno TEXT: Ľudovít Petránsky, FOTO, DOKUMENTÁCIA: Mesto Brezno, Ingart, s. r. o.
Článok bol uverejnený v časopise ASB.



















