Premena garáže na knižnicu
Severská architektúra vždy dokáže prekvapiť, azda netreba ani zdôrazňovať, že v príjemnom smere. Tentoraz sa z nudnej garáže podarilo vytvoriť knižnicu zaliatu svetlom.
Ostrov Tjøme leží v juhovýchodnej časti Nórska. Počet jeho obyvateľov obvykle stúpne v lete zo 4 600 na 40 000. Je to obľúbené letovisko obyvateľov hlavného mesta, prázdniny tu trávil Roald Dahl a dnes sem pravidelne do svojho letného sídla zavíta kráľovská rodina.
Malebná scenéria je dokonalým plátnom – druhým plánom – pre architektúru, ktorá sa nebojí byť nenápadná, skromná, poukazujúc skôr na nádheru svojho okolia než na vlastné superlatívy.
Skromné zadanie
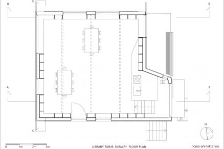
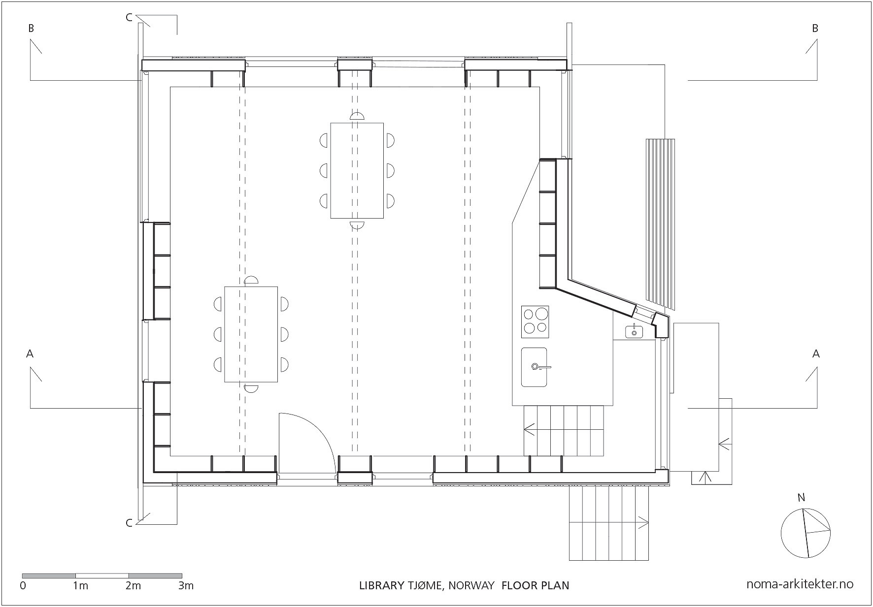
Takto vnímali architekti aj pomerne skromné zadanie investora nadstavať existujúci objekt garáže a vybudovať na poschodí knižnicu s drobným zázemím. Ak poukazujeme na udržateľnosť architektúry, toto je jedna z možných ciest: architektúra môže vzniknúť hocikde, môže povýšiť zdanlivo bezvýznamné na povšimnutiahodné. Pritom môže ísť iba o 65 m2 novej podlažnej plochy.
Galéria ako bonus
Architekti Vincenzo Marchese a Petter Nordahl sa ujali úlohy so všetkou vážnosťou a profesionálnym prístupom. Vytvorili pokojné zázemie pre zanieteného čitateľa či bádateľa. Múry nadstavby vytiahli dostatočne vysoko, aby maximalizovali priestor na police na knihy. Okná integrovali priamo do interiérového konceptu tak, aby zdynamizovali pomerne prísny geometrický koncept.
Okrem fantastických výhľadov na okolitú prírodu, ktoré poskytujú úľavu pre čítaním unavené oči, umožňujú okná prenikať dnu aj záplave denného svetla. Autori sa s okennými otvormi pohrali a ponúkli návštevníkovi knižnice ako bonus pomyselnú exteriérovú galériu. Dostatočne široké parapety navyše prevzali na seba aj úlohu sedacieho mobiliára. Pri pohľade z exteriéru sa architektom podaril husársky kúsok – objekt v prvom momente vyzerá oveľa väčší, než v skutočnosti je. Až pri podrobnejšom skúmaní pozorovateľ zistí, že sa architekti pohrali s mierkou.
Severské „eko“
Na stavbu boli použité neopracované prírodné materiály. Interiér nezaprie svoj škandinávsky pôvod, je celý drevený. Police na knihy sú vyrobené z brezovej dyhy, podlaha je dubová. Krásu surového betónu autori ukázali v kúte na občerstvenie, na povrchu kuchynskej linky ho nechali iba vyleštiť. Fasáda je sčasti obložená pozinkovaným plechom a sčasti je obložená drevom ošetreným technológiou firmy Kebony.
Mäkké severské drevo je ošetrené tekutou zmesou na prírodnej báze, ktorá dodá drevu vlastnosti umožňujúce odolávať exteriérovým poveternostným vplyvom. Drevo tak starne do krásy a prepožičiava severským stavbám typický sivastý farebný odtieň. Ekologické riešenie stavby podčiarkuje aj geotermálny spôsob vykurovania.
Premena garáže na knižnicu
Miesto: Vestfold Conty, ostrov Tjøme, Nórsko
Architekti: NOMA arkitekter AS
Vincenzo Marchese, Petter Nordahl
Investor: Jon Sandvik
Úžitková plocha: 65 m2
Dokončenie stavby: 2016
Zhotovovateľ: Byggservice AS
Tjøme, Nórsko
Text: Mária Nováková
Foto: Jean S. Lorentzen
Článok bol uverejnený v časopise ASB 10/2016.





















