Múzeum umenia v Nankingu
Architekt Steven Holl je opäť neuchopiteľný. Na prvý pohľad by sa zdalo, že jeho múzeum umenia v čínskom Nankingu je akýmsi veľkorysým dovolenkovým domom, a nie múzeom pre verejnosť. Jeho tvary a dispozícia sú opäť pôsobivé, rovnako ako zasadenie objektu do krajiny. Spomedzi stromov vyčnieva ako periskop z ponorky či oko bájneho obra Kyklopa. Steven Holl opäť priniesol spojený zážitok.
Stevena Holla (1947) vždy zaujímalo svetlo a jeho odrazy. Ako nadšený tvorca akvarelov si vždy svoje projekty namaľoval a jemným štetcom vytváral pôsobivé vizuálne zážitky. Holl však nikdy nezabudol, kde svoje stavby zasadzuje, akú históriu a ducha má miesto. Platí to aj pri novom múzeu umenia v čínskom Nankingu, ktoré je situované pri vstupe do výstavného areálu súčasnej architektúry v nádherne zelenej krajine. A hoci by sa malo sprístupniť až budúci rok, už teraz je zreteľný jeho koncept. „Múzeum by malo prezentovať rozličné hľadiská a vrstvy priestoru, do konceptu zapája hmlu a vodu, charakteristické javy tajomných kompozícií čínskej maľby,“ hovorí Steven Holl. „Rozdiel je v kompozícii. Zatiaľ čo v západnej Európe sa používala metóda miznúcich bodov, čínski maliari metódu jediného miznúceho bodu odmietali a maľovali krajiny s „paralelnými perspektívami“, ktoré tomu, kto sa na obraz díva, umožňujú pohybovať sa medzi perspektívami v rámci maľby. O tom by mala byť aj naša stavba.“| Múzeum umenia Sifang Miesto: Nanking, Čína Charakteristika: areál s výstavnými priestormi, čajovňou, predajňou literatúry a tlačovín, kurátorova rezidencia Klient: Nanjing Foshou Lake Architecture & Art Developments Ltd. Architektonická koncepcia: Steven Holl Architects Architektonický návrh: Steven Holl, Li Hu Architektonická realizácia projektu: Clark Manning, Daijiro Nakajama Projektanti: Joseph Kan, Jong Seo Lee, Pei Shiun Lee, C’ Li Lin, Richard Liu, Sarah Nichols Spolupráca: Architectural Design Institute, nankinská univerzita Výstavba: február 2005 – 2013 Zastavaná plocha: 2 787 m2 Návrh osvetlenia: L’Observatoire International |
Farby ako starobylé maľby
Múzeum pozostáva zo zemitých, paralelne usporiadaných priestorov a záhradných múrov z betónu tvarovaných čiernym bambusom, nad ktorými sa vznáša ľahká konštrukcia. Horná galéria, akoby zavesená vo výške, sa postupne otvára v smere hodinových ručičiek a jej vrcholným bodom je miesto s výhľadom na Nanking. Obmedzenie farebnosti budovy múzea na čiernu a bielu odkazuje na starobylé maľby a zároveň poskytuje pozadie textúre umeleckých diel vystavených v múzeu. V múzeu je geotermálne chladenie a vykurovanie a využíva sa v ňom recyklovaná zrážková voda.
„Sila Hollovho diela spočíva v jeho schopnosti vytvoriť budovy, ktoré sú revolučné a zároveň vytvorené čitateľným rukopisom, éterické, a pritom monumentálne,“ napísal americký novinár a kurátor Aric Chen. „Jeho vznášajúce sa rúry a interiéry zaplavené svetlom pôsobia nadpozemsky, zachovávajú si však fundamentálny zmysel pre architektonický priestor.“
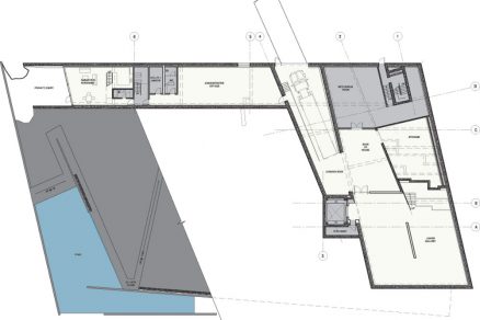
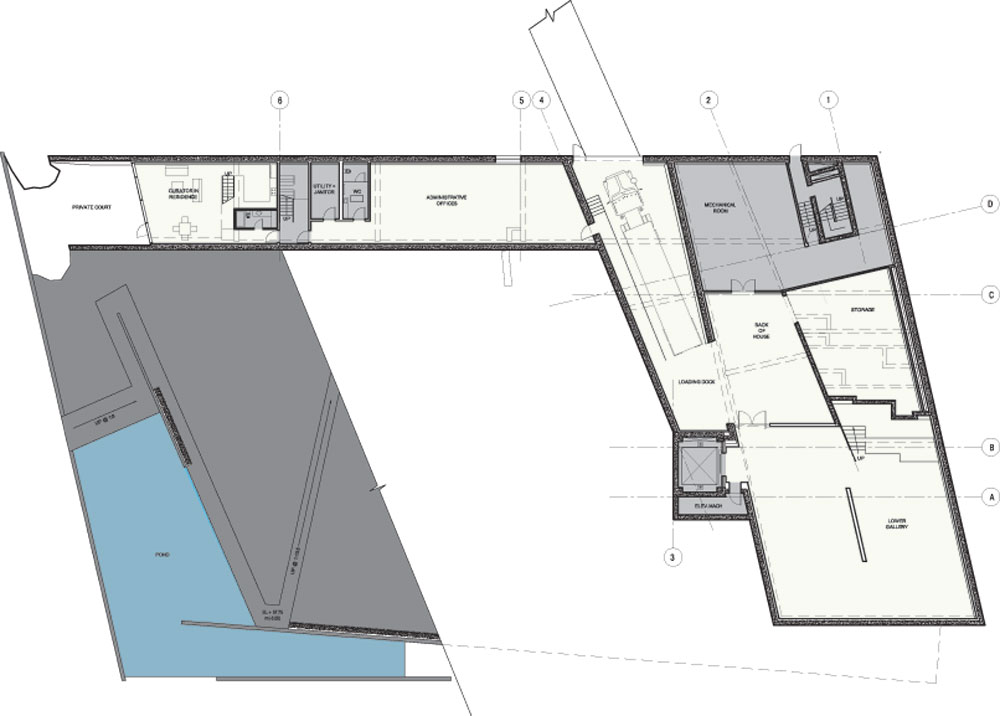
1>Pôdorys 1. NP
2>Kyklopovo oko zasadené do pôsobivej zelenej krajiny.
3>Situácia
TEXT: ĽUDOVÍT PETRÁNSKY
FOTO: Li Hu, Shu – He, Iwan Baan
Článok bol uverejnený v časopise ASB.




























