Môže byť z elektrárne kino? Tu je dôkaz!
Premena priemyselných budov, v ktorých sa nachádzali bývalé fabriky, na objekty kultúrneho charakteru nie je neznáma ani v našich končinách. Holandské štúdio JHK Architecten realizovalo viacero podobných rekonštrukcií. Zaujímavá je premena starej elektrárne na kino spojené s veľkým priestorom na posedenie, barom/reštauráciou, hygienickým zázemím. Projekt nesie názov Lumière Cinema Maastricht.
Mestský projekt
Architektov z uvedeného štúdia poverila mestská rada v Maastrichte, aby spolu s architektmi Verlaan & Bouwstra transformovali bývalú elektráreň a kotolne továrne Sphinx na kultúrne centrum. Po rozsiahlej obnove a renovácii sa z elektrárne stalo pôsobivé priestranné multikino s bohatými spoločenskými priestormi. Budovy esteticky ťažia aj z polohy vo vnútrozemskom prístave Bassin, ktorá efekt premenenej historickej stavby znásobuje aj v noci.
Štyri budovy, každá iná
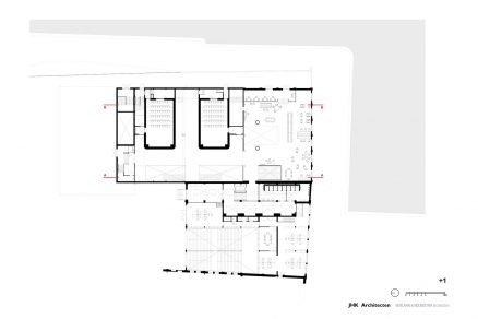
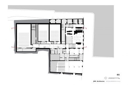
Komplex budov pochádza z roku 1910 a je súčasťou nového kultúrneho centra nazývaného Timmerfabriek. Prestavba objektov bola súčasťou projektu mestského rozvoja. Celý komplex tvoria štyri budovy: strojová hala, dve kotolne a stolárska dielňa, ktorá spája strojovňu s ostatnými budovami v kultúrnom centre.
Zo strojovne reštaurácia
Veľká hala, v ktorej sa nachádzali stroje, je dnes priestorom veľkolepej kaviarne a reštaurácie. Architekti zdôraznili priemyselnú históriu stavby a celý interiér sa nesie v industriálnom štýle.
Ponechali niektoré pozostatky z parných strojov, potrubí a iných priemyselných prvkov, ktoré tu boli.
Na prízemí sa medzi murovanými základmi pre parné stroje nachádza kuchyňa reštaurácie a tiež samostatný bar s terasou.
Kinosály v kotolniach
V priestoroch bývalých kotolní sa nachádza celkovo šesť kinosál s kapacitou 500 miest. Tri najväčšie kinosály sú v priestoroch čiastočne ponorených do terénu.
Vďaka tomuto zaujímavému ťahu sa podarilo architektom vytvoriť priestranný, jasný a neustále prekvapujúci komplex. Kinosály majú stupňovité parabolické sedenie, z každého sedadla teda vidíte na plátno bez negatívnych vplyvov.
Extrémne štíhle stĺpy
V bývalej stolárskej dielni je umiestený vstup do kina. Táto časť stavby je charakteristická jedným z najstarších spôsobov konštrukcie, ktorú domáci nazývajú Hennebique.
Znamená to, že nosníky, podlahy a stĺpy boli odliate súčasne, vďaka tomu mohli byť extrémne štíhle. Samozrejme, konštrukciu tejto budovy bolo treba posilniť. Najštíhlejšie stĺpy sú najvyššie.
Aj toalety pripomínajú minulosť
Špeciálne miesto majú toalety. Najpôsobivejšie boli vybudované pod ťažkými murovanými oblúkmi bývalej železničnej trate vedľa elektrárne. Táto železnica pôvodne prepravovala uhlie.
Ďalšie toalety sa nachádzajú hneď vedľa reštaurácie, tie sú pravým opakom: sú v jasnom priestore s vysokým stropom a svetlom zhora. Tretie hygienické zázemie sa nachádza v bývalej uličke medzi budovami. Vonkajšia fasáda objektov zostala bez zásahu, aby história komplexu bola viditeľná pre každého návštevníka.
Komplex zachovali v celom rozsahu
Keďže komplex pozostáva z rozmanitých budov a každá z nich sa nachádzala v inom stave, ku každej museli architekti pristupovať ináč. „Aby sme mohli obnoviť ťažko zničené kotolne zdravým a trvanlivým spôsobom, muselo sa odstrániť murivo, ktoré bolo vo veľmi zlom stave.
Oceľová konštrukcia sa zachovala v celku. Steny boli následne ošetrené a zaizolované. Výsledkom je oveľa pohodlnejšia a trvácnejšia entita. Tento prístup sme zvolili, pretože umožnil komplex zachovať v celom rozsahu vrátane štíhlych oceľových konštrukcií. Zároveň dovoľoval vybudovanie suterénu pod existujúcimi budovami tak, aby bol vhodný pre kinosály,“ vysvetľujú architekti zo štúdia JHK Architecten.
Lumière Cinema Maastricht v skratke
Architektonické štúdio: JHK Architecten v spolupráci s Verlaan & Bouwstra architecten
Začiatok projektu: 2012
Ukončenie projektu: 2016
Lokalita: Maastricht, Holandsko
Celková plocha: 3 750 m²
Interiér, reštaurácia a vstup: Dorine de Vos a Rosie Stapel
Sabína Zavarská
Zdroj a foto: JHK Architecten, Marcel van der Burg,
Foto pred rekonštrukciou: Cor Bouwstra
Foto počas rekonštrukcie: LetsgoLumiere


























