Centrum divadelného umenia v nórskom Kristansand
Kilden je nové centrum divadelného umenia v meste Kristiansand v južnom Nórsku. Rozhodnutie mestskej a regionálnej samosprávy o investícii padlo v roku 2002. Veľkolepý návrh z dielne fínskeho ateliéru ALA architekti získal vo vypísanej súťaži v roku 2005 prvú cenu spomedzi 95 účastníkov z Európy, Severnej Ameriky a Ázie. Zemné práce sa začali v roku 2007 a 6. januára 2012 centrum slávnostne otvorili.
Mesto Kristiansand má približne 120-tisíc obyvateľov. Už v minulosti to bol významný medzinárodný prístav a dnes jeho dôležitosť rastie v súvislosti s prílivom spoločností pracujúcich pre nórsky ropný a energetický priemysel. Pulzujúci život mesta sa prejavil aj v štedrých investíciách do výskumu, infraštruktúry a kultúry.
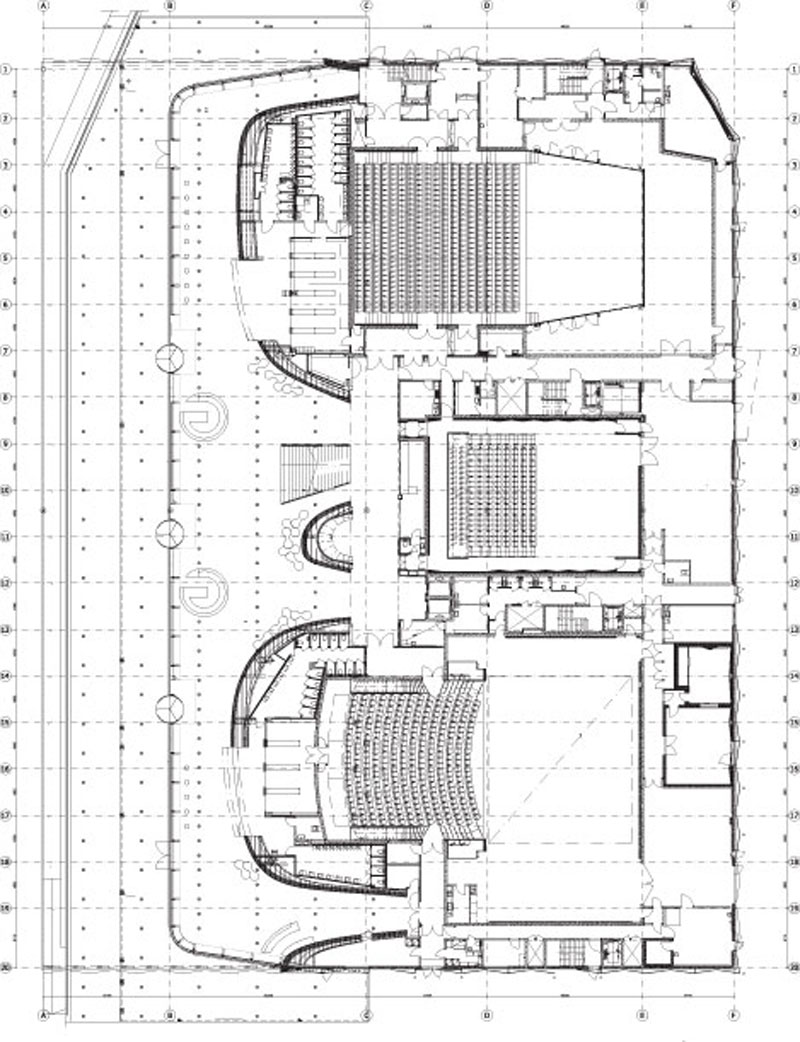
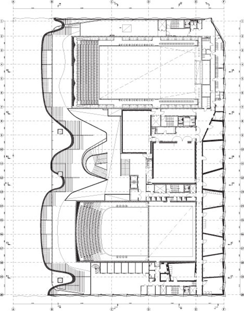
Kilden je reprezentatívny stánok pre všetky formy divadelného umenia v meste. Mestský symfonický orchester získal koncertnú sálu pre 1 200 návštevníkov, mestské divadelné teleso Adgert má k dispozícii o niečo menšie priestory s kapacitou 700 sedadiel. Táto sála je vybavená aj na operné predstavenia.
Kilden sa navyše stane aj hosťujúcou scénou pre regionálne alternatívne a experimentálne divadelné súbory. Multifunkčná sála pojme 235 divákov a malá scéna intímneho charakteru má 150 sedadiel.
Kilden je situovaný takmer v centre mesta, ale vzhľadom na charakter krajiny a osídlenia je jeho najbližším susedom more.
Neďaleko novostavby je rybí trh, parky, prístavy pre výletné člny. V štvrti sa plánuje ďalšia výstavba bytov, obchodov a promenád.
Uprostred tejto kultúrnej a spoločenskej diverzity leží rozsiahly park Odderøya, čo sú mestské zelené pľúca plné zálivov na plávanie, prechádzkových trás a rôznych pamätníkov a umeleckých diel, dokonca si tu obyvatelia chovajú aj vlastné stádo sobov.
Spätosť s prírodou je Nórom vlastná, takže napríklad na člne sa dá prísť aj priamo na operné či divadelné predstavenie.
| Kilden Performing Arts Centre Klient: Teater- og Konserthus for Sørlandet IKS Architektonický návrh: ALA Architects ltd / Helsinki, Kristiansand v spolupráci s SMS Arkitekter AS / Kristiansand (Juho Grönholm, Antti Nousjoki, Janne Teräsvirta, Samuli Woolston) Miesto: Kristiansand, Norway Začiatok výstavby: 2007 Hotové exteriéry: February 2011 Ukončenie stavebných prác: July 2011 Otvorenie: January 2012 Celková zastavaná plocha: 16 000 m2 Celkový obstavaný objem: 128 000 m3 Konštrukcie: Multiconsult AS / Oslo, Kristiansand Hlavný dodávateľ stavby: AF Gruppen Norge AS Elektroinštalácie: Otera Ergon AS Vzduchotechnika: GK Norge AS Voda a kanalizácia: Finn & Albert Egeland, Kristiansand AS Automatizácia budovy: Siemens AS Hliníková fasáda: Blikkenslager Warmbrodt AS Drevená stena: Trebyggeriet AS and it’s subcontractors |
Čia je to vlna?
Najzaujímavejším a dychberúcim elementom celej stavby je obrovská vlna, ktorá stiera rozdiel medzi markízou, fasádou či interiérovým stropným obkladom. Svojou monumentálnosťou vťahuje návštevníka dovnútra. Prechod medzi skutočnosťou, reálnym svetom a svetom plným fantázie, hudby a divadla vytvára veľmi subtílna sklenená konštrukcia. V kontraste s mohutnou zvlnenou hmotou obloženou dubom z miestnych zdrojov je to v podstate len veľmi efemérna clona, možno iba mávnutie čarovného prútika, ktoré oddeľuje realitu drsného nórskeho podnebia od snového sveta umenia. Tak ako materiálová jednoduchosť pôsobí impozantne z exteriéru, rovnako elegantne tvaruje interiér a vstupný foyer. Robustná vlna poskytuje nevšedný zážitok cez deň aj v noci, keď vnútorné osvetlenie ešte viac zdôrazňuje odvážne konštrukčné riešenie.
Priestory koncertných a divadelných sál sú rozhodne v triezvejšom dizajne, našťastie sa tu architekti z Helsínk nenechali uniesť. Interiéry sú podriadené funkčnosti technológií zabezpečujúcich dokonalý umelecký zážitok. Azda jediným osviežením je farebnosť. Autori použili paletu chladivých až pastelových tónov, čo pôsobí ako svieži vtip v kontraste s jednoduchou farebnosťou dominantnej fasády. Istý teatrálny efekt majú plastické steny, podstatná je ich primárna funkcia zlepšujúca akustiku.
Tak ako fantasticky pôsobí priečelie od nábrežia, tak utilitárne vyznievajú ostatné fasády objektu. Hliníkový obklad a jednoduché okná osviežuje len pravidelné zalamovanie plochy. Budova Kildenu je plná kontrastov, nečakaných zážitkov a efektov. Tvorivý tím architektov a konštruktérov si dal naozaj záležať na impozantnosti, ale podarilo sa im aj veľmi striedmo zviazať vnútornú formu a podriadiť ju funkcii.
![]() |
![]() |
| Situácia |
![]() |
![]() |
| Pôdorys 1. NP | Pôdorys 3. NP |
![]() |
![]() |
| Rez multifunkčnou halou | Rez divadelnou sálou |
Mária Nováková
Foto: Tuomas Uusheimo, s dovolením ALA Architects
Projektová dokumentácia: ALA Architects
Článok bol uverejnený v časopise ASB.
–>–>





















