Kostol z betónu a lávy na Tenerife
Robustné betónové múry kostola na najväčšom zo siedmich Kanárskych ostrovov sú lemované drvenými sopečnými horninami. Zakúsite v ňom silu hrubých betónových dielcov v kontraste so silou svetla.
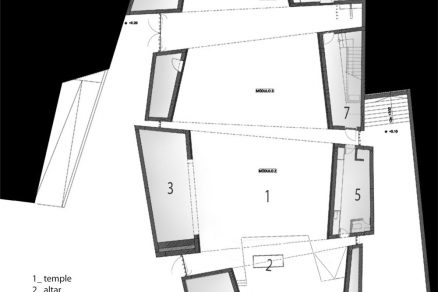
Kostol Najsvätejšieho Spasiteľa (Iglesia del Santísimo Redentor) a priľahlé kultúrne a spoločenské centrum boli dokončené pred troma rokmi podľa projektu španielskeho architekta Fernanda Menisa z kancelárie Menis Arquitectos.Celá budova vyzerá ako jeden mohutný kus betónu rozkrájaný na štyri diely. Týmito priestormi preniká svetlo do uličiek medzi jednotlivými modulmi slúžiacimi na rôzne účely. Dva z nich uzatvárajú priestor chrámu, v troch sa nachádza trojpodlažné spoločenské centrum a vo štvrtom – najmenšom – toalety.
Chrámový priestor tvoria štyri masívne betónové objemy oddelené len úzkymi otvormi, ktoré pripomínajú prielomy v skalách. V jednom z nich žiaria dve trhliny v tvare kríža, ktorým dovnútra prenikajú paprsky svetla – druhým základným stavebným prvkom chrámu. Symbolizujú skutočnosť Kristovho vzkriesenia a nádej spásy, ktoré sú vyjadrené aj v názve kostola.
„Vnútri rozoklaných hmôt vznikol meditačný priestor, strohý, bez prítomnosti nadbytočných prvkov. Je to akési vnútorné útočisko, ktoré umožňuje nájdenie Boha aj seba samého v chráme,“ hovorí architekt Fernando Menis.
Viac článkov z témy mesiaca BETÓN
V architektonickom návrhu sa brala do úvahy aj akustika priestoru: „Na dosiahnutie lepšej akustiky sme skombinovali betón s rozdrvenou miestnou vulkanickou horninou (tzv. picón). Vďaka tejto kombinácii vznikli hrubé povrchové úpravy stien s vyššou absorpciou zvuku ako v prípade konvenčného betónu,“ vysvetľuje architekt.
Dôraz sa kládol aj na pohyb slnka v rôznych hodinách dňa. Za svitania preniká cez kríž dovnútra vodopád svetla symbolizujúci svetlo dopadajúce do otvorenej jaskyne, v ktorej bol Ježiš pochovaný. Toto svetlo osvetľuje aj krstiteľnicu, kde začína život kresťana. Popoludní je pomocou vhodne umiestneného strešného svetlíka zväzkom lúčov ožiarený oltár. Krátko po poludní je ožiarená spovednica, symbol pokánia. Cesta svetla v architektonickom priestore tak vyjadruje cestu z temnoty na svetlo, zo smrti do života.
Kostol a spoločenské centrum
Miesto: Los Majuelos, San Cristóbal de la Laguna, Tenerife, Španielsko
Investor: Farnosť Najsvätejšieho Spasiteľa
Architekt: Fernando Menis – Menis Arquitectos
Zastavaná plocha: 550 m2
Celková plocha: 1 050 m2
Náklady: 600 000 €
Realizácia: 2005 – 2010
Kateřina Kotalová
Foto: Menis Arquitectos
















