Kostol ako origami
Kostol v Litomyšli je ako japonské origami. Autori priznávajú vedomú inšpiráciu papierovou skladačkou pri vytváraní formy a zdôrazňujú východné vplyvy pri tvorbe tohto kostola. Hoci je stavba malých rozmerov, „siaha po nebesia“ a ako symbolická cesta ubieha do diaľky.
Uvedený úryvok z Biblie (Žalm 57,11) nie je náhodný. Celý citát sa stal mottom tohto objektu: „Pane, tvoje milosrdenstvo siaha po nebesia a tvoja vernosť až k oblakom.“ Architekt Zdeněk Fránek opäť predviedol, s akým zaujatím tvaruje priestor. Nesnaží sa budovať dielo, tvorí architektúru ako samostatnú osobnosť. Keď na stôl dostane tému, jej motívy sa pokúša rozpracovať do hĺbky. Ide až na dno podstaty, aby na povrch vyniesol nové poznanie.
Domáce prostredie
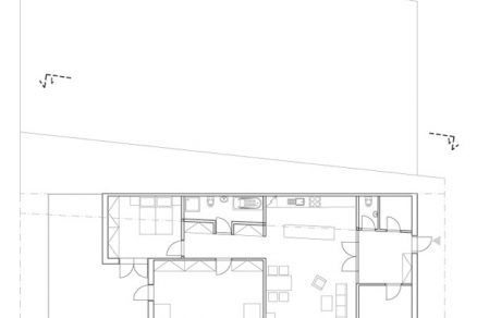
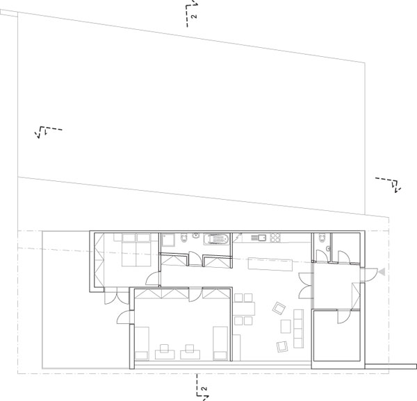
Samotný interiér je výsledkom spoločných rozhovorov s architektom, výsledkom hľadania optimálneho riešenia pre budúci život zboru a jeho aktivity. Snahou bolo predovšetkým vytvorenie dôstojného prostredia s ohľadom na variabilitu (možnosť využitia na kultúrne a vzdelávacie akcie v meste). Interiér je riešený tak, aby neveľkej komunite ponúkol príjemné domáce prostredie. Je jednoduchý, určený na dotvorenie zeleňou. Exteriér, a tým aj nosná konštrukcia je z pohľadového železobetónu, nechýba drevený či kamenný obklad.
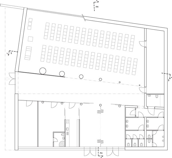
Murované konštrukcie sú realizované z tvárnic Ytong, ktoré sa v projekte zvolili z niekoľkých dôvodov. „Ich veľkou výhodou je nízka hmotnosť, vďaka ktorej nevzniká zbytočné zaťaženie a zväčšovanie dimenzií najmä monolitických železobetónových konštrukcií,“ hovorí architekt, ktorý ich s obľubou využíva aj pre ich veľmi dobrú tvarovateľnosť. S ňou pracuje až do posledného momentu na stavbe. Tvarovateľnosť je obsedantným motívom i dynamikou napredovania. Projekt má sálu pre približne 150 ľudí, dve viacúčelové klubovne a spoločenský vestibul s účelne vybaveným zázemím. V druhom nadzemnom podlaží je navrhnutý byt pre kazateľa zboru a jeho rodinu.
–>–>
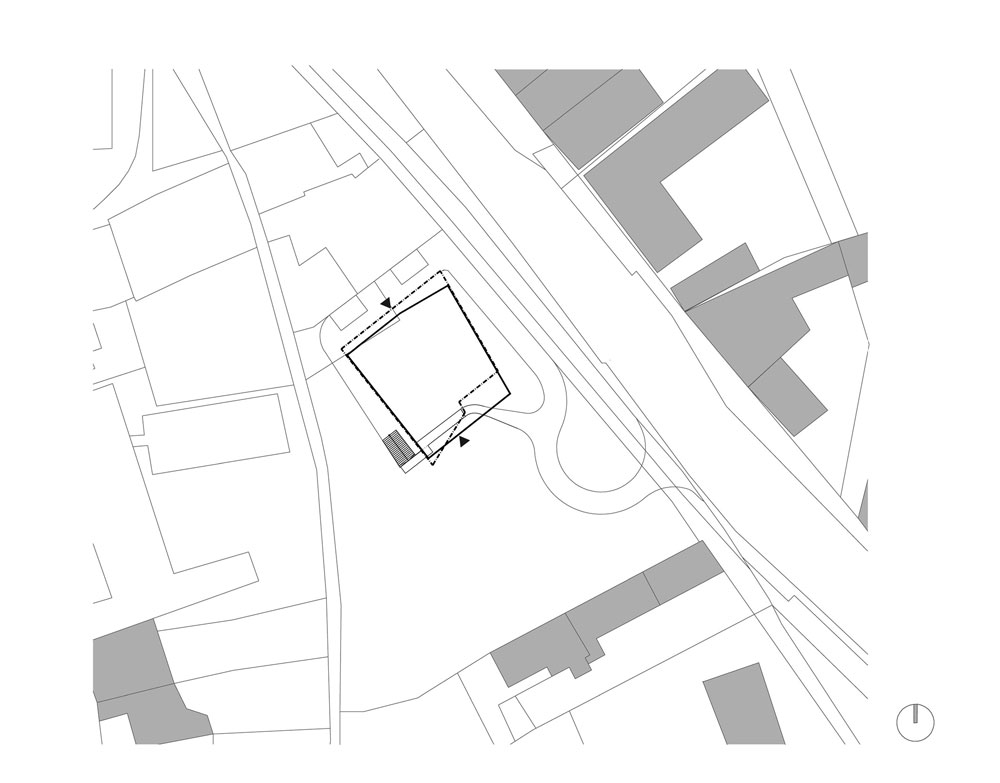
| KOSTOL ZBORU CIRKVI BRATSKEJ Miesto: Moravská ul., Litomyšl Investor: Zbor Cirkvi bratskej, Litomyšl Generálny projektant: Zdeněk Fránek Architect & Associates s. r. o. Architektúra: Ing. arch. Zdeněk Fránek, Ing. Jiří Topinka, Ing. arch. Dana Raková, Jakub Hrbata Interiéry: FAED, s. r. o. Generálny dodávateľ: První Litomyšlská stavební a. s. Začiatok výstavby: 10/2008 Ukončenie výstavby: 8/2010 Zastavaná plocha: asi 490 m2 Obstavaný priestor: asi 2 940 m3 Konštrukcia, vnútorné nosné steny, priečky: Ytong |
![]() |
![]() |
Otvorený priestor
Vzhľadom na umiestnenie stavby sa pri tvorbe exteriéru kládol dôraz na jeho odolnosť voči vandalom.
Použili sa transparentné nátery pohľadového betónu, drôtoskla a jemnej mriežkoviny. Súčasťou je aj zábrana proti vylezeniu na strechu novostavby. V Rakúsku, vo Francúzsku či v Grécku sa dajú nájsť miestne kostoly, ktoré sú otvorené počas celého dňa. Aj preto bolo ústredným zámerom tejto stavby vytvorenie moderného otvoreného priestoru pre počutie evanjelia, stíšenie a zastavenie človeka.
Kostol v Litomyšli ponúka jasné odpovede na otázky, čo je to liturgický priestor či liturgia idúca ruka v ruke s moderným poňatím súčasného popredného českého architekta ako tvorcu projektu. Aj z tohto dôvodu bola tvorba projektu dlhodobejšou spoločnou prácou tímu ľudí, hľadaním spoločného dialógu. Výsledok naznačuje, že cesta nebola márna…
„Po stáročia ľudia stavali kostoly, ktoré boli vyjadrením svojej doby, a teda aj príslušného architektonického štýlu. Žiaľ, v súčasnosti je veľmi málo kostolov navrhnutých ako architektúra súčasná, moderná. Kostol pána architekta Fránka je príkladom, ako môže moderná architektúra vytvoriť prostredie vhodné na cirkevné účely. Je to stavba spojená s prírodou, pokorná a vyrovnaná. Čo môže lepšie splniť požiadavky pre stretnutia veriacich než budova, ktorá bola vhodne koncipovaná nielen s profesionálnou kompetenciou, ale aj s láskou a pochopením?“
Eva Jiřičná, architektka, Londýn
TEXT: Ľudovít Petránsky
Foto: STUDIO PETROHRAD, KAREL PONEŠ
Dokumentácia: FRÁNEK ARCHITECTS
Článok bol uverejnený v časopise ASB.




















