Drevená knižnica v čínskych lesoch
Čína je známa svojimi megalomanskými projektmi. Nebojí sa zrovnať so zemou 700 horských vrcholov pre nové mesto alebo vybudovať obrovský hotel v skale priamo okolo vodopádu. Malým projektom však čínski architekti dokážu dať nenapodobiteľnú pečať pokoja a poetiky. Zvlášť, keď ide o knižnicu v malom meste.
Necelé 2 hodiny jazdy od pulzujúceho Pekingu sa v horách skrýva malá knižnica a čitáreň zároveň. Pôvodne mala stáť v centre mestečka, čínsky architekt Li Xiaodong sa ju však rozhodol posunúť. Z centra sa k nej dá dostať za 5 minút, no napriek tomu je obklopená krásnou prírodou. Snaží sa maximálne splynúť s okolím, preto je hlavným materiálom drevo, konkrétne chrastie, ktoré miestni obyvatelia používajú nielen na kúrenie, ale obkladajú si ním aj svoje domy. Malé vetvičky usadené v kovových rámoch tvoria jednoliatu fasádu objektu. Tá nielenže dobre začleňuje knižnicu do okolia, ale aj zaisťuje príjemnú intenzitu priameho svetla vo vnútri.
Ku knižnici sa z mestečka dostanete po spevnenej ceste.
Knižnica susedí s veľkou vodnou plochou, ktorú možno prekonať po dvoch lavičkách.
Pravidelný oceľový rám pokrýva celú budovu.
Aj miestni obyvatelia si obkladajú domy chrastím.
Budova má mnoho rôznych zákutí.
Jednoduchá hmota knižnice
Prístup k vodnej ploche
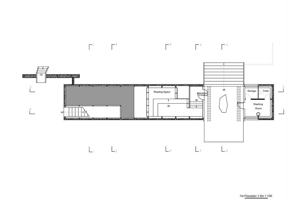
Vnútrajšok budovy tvorí jeden veľký kompaktný vzdušný priestor, ktorého charakter jasne určuje pravidelná drevená konštrukcia. Architekt priestor rozčlenil iba schodmi a parapetmi a vytvoril tak prostredie, v ktorom si môžu čítať viacerí návštevníci naraz. Objekt však nie je určený iba na čítanie. Miestni sem chodia iba tak relaxovať a užívať si okolitú krajinu.
Fasáda neprekáža vo výhľade do krásneho okolia.
Môžete si sadnúť kdekoľvek.
Pohľady
Pôdorys
Situácia
LIYUAN LIBRARY
Architekt: Li Xiadong, http://lixiaodong.net/
Klient: mesto Jiaojiehe
Dokončené: 2011, Čína
Veronika Benešová
zdroj a foto: LiXiadong ateliér























