Dom smútku v Komjaticiach
Domy smútku majú zvláštne postavenie v spoločenstve ľudí. Oddeľujú dva svety, sú miestom pietnej rozlúčky, ale pre mnohých aj nádeje. Pre mestá či obce zase môžu byť dôstojnou vizitkou, čo potvrdzuje aj dom smútku v Komjaticiach.
K domu smútku sa dá dostať dvomi prístupmi, ale ten od kostola má silnejšiu atmosféru. Nachádza sa v areáli cintorína, ktorý má pôsobivú polohu na svahovitom teréne, a po otvorení dverí hlavného vchodu sa vchádza na krížovú cestu. Jednotlivé kaplnky vedú v dvoch radoch v striedavom usporiadaní pozdĺž priameho prístupového chodníka a boli postavené koncom 19. a začiatkom 20. storočia.
Dominantou tejto kalvárie je vysoké pódium s oválnym pôdorysom a výrazným schodiskom, na vrchnej terase sa nachádza päťfigurálne súsošie ukrižovania, tento objekt bol postavený ako prvý už v polovici 18. storočia. Hneď za ním sa nachádza rímskokatolícky Kostol apoštolov sv. Petra a Pavla z roku 1615, ktorého baroková prestavba sa dokončila v roku 1752. A od neho už vidieť „anjelské krídlo“, čiže zastrešenie domu smútku, ktoré je najnovším prírastkom na tomto pietnom mieste.
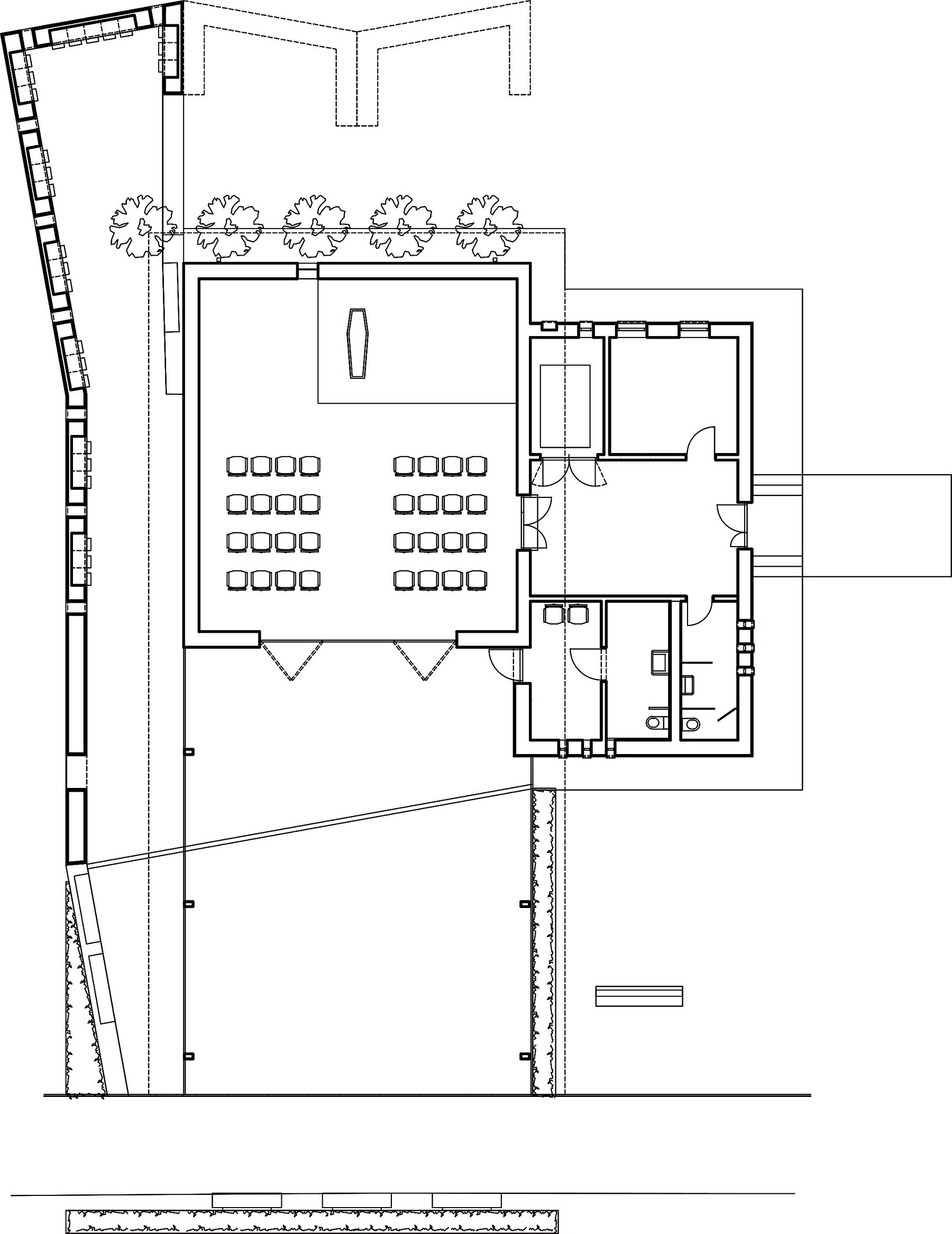
Pri kolumbáriu architekti využili jednu stenu objektu, ktorá tvorí pokojné neutrálne pozadie, a vedľa situovali mierne zalomený múr. Kolumbárium je uzavreté múrom s vertikálnymi priehľadmi.
Symbolika tajomna
„Pôvodný dom smútku pochádzal z roku 1976, ale ten už bol po 40 rokoch existencie na hrane nefunkčnosti a chýbalo mu technické zázemie,“ približuje dôvody rekonštrukcie jej spoluautor Ing. arch. Milan Csanda. „Pre obec sme pripravili tri varianty a s jej vedením sme sa zhodli, že pôjde o väčšiu rekonštrukciu, než ako sa pôvodne zamýšľalo. K výhodám realizácie patril aj fakt, že generálnym dodávateľom sa stala miestna firma, ktorá si to zobrala za svoje a bola ochotná ísť aj do nadštandardných riešení.“
Najvážnejším zásahom do architektúry domu smútku bola prestavba strechy a prístrešku, ktoré sú zároveň jeho najvýraznejšími exteriérovými prvkami. Konštrukcia strechy vyznieva ako krídlo, ktoré symbolicky znamená ochranu živých i mŕtvych pod „anjelskými“ krídlami.
Pri kolumbáriu architekti využili jednu stenu objektu, ktorá tvorí pokojné neutrálne pozadie, a vedľa situovali mierne zalomený múr. Kolumbárium je uzavreté múrom s vertikálnymi priehľadmi.
V štítovom oblúku strechy je symbol kríža z nehrdzavejúcej ocele. Vonkajší prístrešok je na stĺpových podperách, pod ním je rovnorodá dlažba, imitujúca štiepanú bridlicu. Je prerušená iba textovým pásom, z ktorého mystiky idú „zimomriavky“: „Cez skriňu plnú nepotrebných vecí vchádzaš do ticha svojej duše. Nejakí ľudia tu sladko driemajú. Nenechajte sa rušiť dámy, páni… To ja len… Smutno je mi.“
Po jeho prekročení sa už otvárajú dvere oddeľujúce dva svety. Obradná sieň má minimalistické vybavenie, sú tam len veci, ktoré s týmto miestom nevyhnutne súvisia. Stropné a strešné konštrukcie nad obradnou sálou majú oblúkové väzníky s dreveným lamelovým podhľadom, ktorý „prevísa“ nad priestorom. Horizontálne okná po stranách domu smútku sú zdrojom svetla prichádzajúceho spod oblúka podhľadu, ktoré je zdramatizované farebnými vitrážami.
Obradná sieň má minimalistické vybavenie s dreveným lamelovým podhľadom. Horizontálne okná po stranách domu smútku sú zdrojom svetla, ktoré je zdramatizované farebnými vitrážami.
Kolumbárium a ďalšia prestavba
„Náš cintorín je miestom, na ktoré popri miestnych obyvateľoch chodia aj návštevníci Komjatíc,“ hovorí starosta 4,5-tisícovej obce Peter Hlavatý. „Preto nám veľmi záležalo, aby prichádzali do kvalitného domu smútku. Tento objekt patrí k dôležitým kontaktom s obcou, a preto sme radi, že sa toho úspešne zhostila miestna stavebná firma. Navyše, od občanov sme evidovali aj dopyt po kolumbáriu na urnové miesta, čiže rekonštrukcia domu smútku riešila aj túto výzvu. Je navrhnuté na 72 miest, teraz je obsadených takmer tridsať.“
Pri kolumbáriu architekti využili jednu stenu objektu, ktorá tvorí pokojné neutrálne pozadie a vedľa situovali mierne zalomený múr. Dynamika zalomenia vychádza z filozofie životných zlomov, asi najvážnejším je smrť blízkeho človeka alebo vlastná, čo sa odzrkadľuje aj v koncepcii riešenia múru, ktorý je zalomený v dvoch rovinách.
Pôdorys
Kolumbárium je uzavreté múrom s vertikálnymi priehľadmi, ktoré symbolizujú nádej. V priehľadoch vidieť zeleň. V múre sú osadené uzatvárateľné „boxy“ s možnosťou umiestnenia urien. V prípade potreby rozšírenia kolumbária je ponechaná časť za domom smútku, kde je možné aditívne doplniť ďalšie sekcie kolumbária.
Ešte v tomto roku sa uvažuje nad rekonštrukciou hlavného vchodu, ako aj o podsvietení jednotlivých kaplniek – miest tichého zastavenia. Ostatne, o zastavení je aj symbolika celého areálu – je to miesto na spomienky a vnútornú meditáciu…
Rez
DOM SMÚTKU
Miesto: Komjatice, okr. Nové Zámky
Autori rekonštrukcie: Ing arch. Milan Csanda, Ing. arch. Norbert Dúbravský, AK CSANDA PITERKA
Investor: obec Komjatice
Generálny dodávateľ: Stavmex – Komjatice s. r. o.
Realizácia: 2013 – 2015
Celková investícia: 230-tisíc €
KOMJATICE
TEXT: ĽUDOVÍT PETRÁNSKY,
FOTO: MIRO POCHYBA,
DOKUMENTÁCIA: AK CSANDA PITERKA
Článok bol uverejnený v časopise ASB 5/2017.














