Budova vizuálnych umení Iowskej univerzity
Záplavu, ktorá vám spôsobí škodu za 800 miliónov dolárov, môžete brať ako katastrofu. Iowská univerzita ju ale pochopila ako výzvu. Jedným z výsledkov je aj nová Budova vizuálnych umení (Visual Arts Building).
Iowská univerzita (University of Iowa) je medzi architektmi notoricky známa ako patrón kvalitnej architektúry. V jej areáli postavili ikonické budovy viacerí architekti svetového mena (Frank Gehry, napríklad). Areálom univerzity sa však vinie rieka Iowa, ktorá sa v júni roku 2008 pri rozsiahlej povodni vyliala z brehov a ťažko poškodila 20 budov. Jednou z tých, ktoré živlu podľahli úplne, bola pôvodná Budova vizuálnych umení, postavená v roku 1936. Vysoká škola zmobilizovala sily a objekty začala rekonštruovať a nahrádzať. Na projekt novej Budovy vizuálnych umení vypísala súťaž, ktorú vyhrala architektonická kancelária Stevena Holla.
Bola to zaujímavá situácia. Steven Holl už totiž jednu budovu v Iowe postavenú má, a to iba na skok – krížom cez trávnik. Západná budova umenia, tzv. Art Building West s knižnicou a horizontálnym krídlom nad malým jazierkom, je už od otvorenia v roku 2006 lákadlom pre študentov z celej univerzity (a výhercom nejednej ceny). Steven Holl chcel novú budovu opticky, fyzicky aj vzťahovo prepojiť s tou pôvodnou. Preto je pohyb z jednej budovy do druhej plynulý a tam, kde je pri pôvodnom projekte konceptom „horizontálna porozita“, v novom sa uplatňuje koncept vertikálnych výrezov.
Pointa je v komunikácii
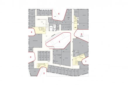
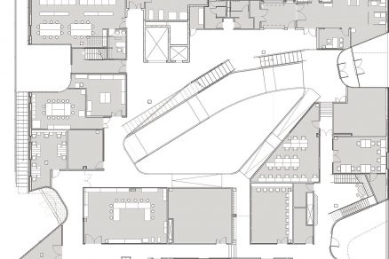
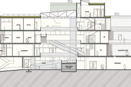
Nové sídlo vizuálnych umení slúži tlačiarom, sochárom, grafickému dizajnu, fotografom, maliarom, šperkárom či tvorcom keramiky – hýbe sa v ňom teda nesmierne množstvo talentu. Architekti rozpoznali potenciál mladých kreatívcov v jednej budove a navrhli ju do posledného detailu tak, aby podnecovala chuť študentov vzájomne komunikovať. Nenájdete tu žiadne dlhé, úzke koridory. Centrom diania je veľké átrium, kam ústia učebne a ateliéry zo všetkých podlaží. Schodiská tiež nie sú iba pohybovou tepnou. Neraz sú ukončené veľkou podestou so sedacím nábytkom, aby podporovali neformálne stretnutia.
Krása svetla
Pre objekt plný ateliérov je, samozrejme, svetlo dosť podstatné. Architekti teda neváhali a tam, kde interiéry potrebovali prísun väčšieho množstva slnečných lúčov, vybrali z objemu mäkké lichobežníkové objemy. Štyri poschodia budovy potom vzájomne „poposúvali” a vytvorili tak plejádu zákutí, balkónov a terás, kam sa môže sústrediť študentský život.
Premyslený je aj prísun svetla cez fasády budov – na severovýchodnej nájdete okná priamo roztrúsené, na juhu a západe ich architekti ukryli pod jemným perforovaným fasádnym obkladom. Takto majú obe časti vždy dostatok svetla, ale juhozápadná sa neprehrieva. Ak si mladí umelci chcú vyskúšať tvorbu pod holým nebom, stačí, aby vyšli na zelenú strechu, kde majú pripravený otvorený ateliér.
Interiér má veľmi prostú farebnú koncepciu: biela plus sivá. Podlahy z liateho betónu a biele steny však občas doplní svetlé drevo mobiliára. Tieniace prvky fasády sa vo vnútri objavujú ako zábradlia niektorých schodísk. Vonkajšia farebnosť je takisto svieža a jasná – sivé platne sa striedajú s rastrom priesvitných fasádnych lamiel. Celý projekt pôsobí zvonka i zvnútra príjemne étericky. Tam sa dobre študuje i po prebdetej noci.
VISUAL ARTS BUILDING
Miesto: Iowa City, USA
Klient: University of Iowa
Architekt: Steven Holl Architects
Partneri: BNIM Architects
Konštrukčné riešenie: Buro Happold, Structural Engineering Associates
Celková podlahová plocha: 11 700 m2
Text: KORINA KRCHNIAKOVÁ
FOTO: IWAN BAAN, CHRIS MCVOY, ERIC DEAN, DOKUMENTÁCIA: STEVEN HOLL ARCHITECTS
Článok bol uverejnený v časopise ASB 6-7/2017
















