Arktické kultúrne centrum v meste Hammerfest
Hammerfest, najsevernejšie položené mesto na svete, sa nachádza na ostrove Kvaløya, kde sa priemerná ročná teplota pohybuje v rozmedzí od –5 do +11 stupňov Celzia. Obyvatelia tohto desaťtisícového mesta sa okrem nízkych teplôt musia vyrovnávať s dvojmesačným polárnym dňom v lete a dvojmesačnou polárnou nocou v zime. Severská strohá architektúra, zima a nedostatok kultúrneho vyžitia vyvolali potrebu nového impulzu. Hammerfesťania sa ho dočkali – s novým Arktickým kultúrnym centrom z dielne ateliéru Arkitekturlaboratoriet AS do mesta zavial svieži vietor.
Začiatok ambiciózneho plánuV poslednom roku druhej svetovej vojny bolo mesto úplne zničené. Ustupujúca nemecká armáda zrovnala so zemou všetko okrem malej pohrebnej kaplnky. Mesto museli obyvatelia vystavať nanovo. Ponurá a strohá povojnová architektúra ešte aj dnes odráža vtedajšiu neveselú situáciu a ulice sa len pomaly rozžarujú. Výrazným ozvláštnením a zároveň nádejou sa preto stala nová budova kultúrneho centra, ktorá síce nadväzuje na severskú čistotu a jednoduchosť kompozície, zároveň však prináša optické oteplenie nábrežia obkoleseného kopcami. Medzinárodnú súťaž na jeho vybudovanie mesto vypísalo v roku 2004, nakoniec ju však vyhral nórsky architektonický ateliér Arkitekturlaboratoriet AS. Kmeňová spoločnosť síce sídli v Osle, spolupracuje však s architektmi z celého sveta. Na pozemku niekdajšej továrne na spracovanie rýb v centre Hammerfestu tak vyrástlo Arktické kultúrne centrum, ktoré je súčasťou ambiciózneho programu rozvoja mesta. Na území ležiacom priamo pri mori majú v budúcnosti vyrásť nové obchody, kancelárie a byty. Mesto by touto výstavbou malo získať úplne novú identitu.

Vyhlasovateľ verejnej súťaže, mesto Hammerfest, malo jasný cieľ: získať budovu, ktorá bude „signálom pre nové obdobie“. Architektúra centra, ktoré bolo otvorené v januári 2009, splnila očakávania. Určujúcim kritériom pri výbere ateliéru A-lab z Osla bolo motto projektu „Connecting people“ (spájanie ľudí).
„Arktické kultúrne centrum bude niečo ako „obývačka“ Hammerfestu, verejné priestranstvo, miesto stretávania domácich aj cudzích návštevníkov – bude plniť významnú spoločenskú aj sociálnu úlohu,“ vysvetľuje Charlie Marsden, zodpovedný architekt tohto projektu pochádzajúci z Veľkej Británie. Odkazuje pritom na priestory medzi jednotlivými úsekmi stavby, ktoré slúžia najmä v chladnom a temnom zimnom období ako voľne prístupné komunikačné plochy – napríklad priestranná otvorená hala s barom, predajným stánkom a informačným okienkom, ktorá je otvorená každý deň až do 23.00 hod. Budovu však, samozrejme, najviac oživí funkcia. Mesto v centre rozbehlo široké spektrum kultúrnych a odborných podujatí, či už ide o výstavy, tanečné a hudobné vystúpenia, alebo konferencie. Práve tieto akcie by mali do ACC (Arctic Culture Centre) pritiahnuť návštevníkov.
| Arktické kultúrne centrum (Arktisk Kultursenter) Miesto: Strandgate 32, Hammerfest, Nórsko Využitie: kultúrne stredisko Architekt/Architekti: Arkitekturlaboratoriet AS Vedenie projektu: Charlie Marsden Investor: estská samospráva Hammerfestu Začiatok výstavby: 05/2005 Ukončenie výstavby: 12/2006 |

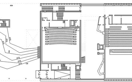
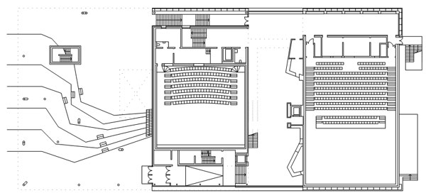
Objekt má rozlohu 5 000 m2, pričom na dvoch spodných podlažiach sa nachádzajú dve sály prepojené cez foyer v strede. Ponúkajú 150 až 350 miest na sedenie pri filmových predstaveniach, koncertoch, ale aj konferenciách či rokovaniach. Nad nimi sú umiestnené menšie multifunkčné priestory, tanečné sály, šatne, výstavné plochy a profesionálne zvukové štúdio. Architekti chceli objekt čo najviac prepojiť s bezprostredným okolím, vytvorili preto aj otvorený priestor prekrytý prečnievajúcim horným podlažím, ktorý evokuje voľnosť a vpúšťa pomedzi nepravidelné podperné stĺpy aj prírodnú scenériu. Môže slúžiť na podujatia, ale aj ako kryté námestie. Výhody miesta stretnutí, ktoré je chránené pred poveternostnými vplyvmi, asi netreba opisovať, nieto ešte ak ide o mesto s takými extrémnymi súradnicami, aké má Hammerfest.
Pozdĺžny rez
Priečny rez
Metamorfózy fasády
Budova je zvláštnym chameleónom – kým za svetla vynikne kombináciou červeného podkladu fasády a strieborným leskom oceľovej konštrukcie, za tmy sa mení na nepoznanie. Plášť budovy, respektíve vrchnú vrstvu fasády, tvoria dve konštrukčné časti – vertikálne sklenené polia s jednovrstvovým bezpečnostným sklom sú zasadené do veľkoplošnej sĺpikovo-priečnikovej konštrukcie od spoločnosti Schüco. Úzky priestor medzi fasádou a betónovým plášťom chráni vnútorné priestory pred chladom, vetrom a hlukom a prispieva aj k výrazným úsporám energie.
Zároveň je však sklenený plášť budovy pridanou hodnotou, ktorá umožňuje nočnú premenu ACC na dámu v žiarivej večernej róbe. Architekti naň umiestnili vzor ľadového kryštálu a žiariace svetelné LED diódy, ovládané počítačom. Usporiadanie svetiel sa dá ľubovoľne meniť a kreácie, ktoré vznikajú svetelnou hrou, pripomínajú polárnu žiaru. Tou sa architekti inšpirovali; svetelná fasáda však zároveň svojou kreativitou metaforicky znázorňuje aj účel budovy, v ktorej sa má prezentovať práve kreativita v kultúre, umení, ale aj v ostatných sférach ľudskej činnosti.
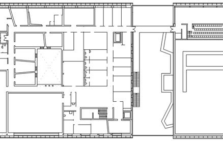
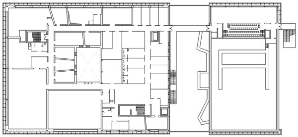
Pôdorys prízemia
Pôdorys 1. nadzemného podlažia
Kultúrny interiér
Interiér budovy komunikuje so štýlom fasády. Jednoduchá kompozícia, čisté tvary a priestranné plochy sú doplnené detailmi, ktoré ich zútulňujú. Interiér je napríklad obložený lamelami, ktoré zodpovedajú pravouhlým prvkom na fasáde budovy a miesta, kde sú vynechané, zasa vytvárajú zaujímavé vzory.
Interiér je plný hrán, napriek tomu však nepôsobí stroho. Priestory sú veľkorysé, koniec koncov slúžia kultúre, ktorá si priestor určite zaslúži. Keďže je Hammerfest najsevernejšie položeným mestom na svete, je aj jedným z najnavštevovanejších miest severného Nórska. Ročne sem zavíta asi štvrť milióna turistov. Nové Arktické kultúrne centrum uvítali nielen domáci, ale aj návštevníci. Netreba tiež zabúdať, že je len prvou lastovičkou celej novej štvrte – krásna scenéria prístavu sa možno už čoskoro naozaj zmení na nepoznanie.
Detail fasády
(tl, Schüco)
Foto: Schüco International KG/ Bielefeld/GER
Článok bol uverejnený v časopise ASB.
















