Nadstavba nemusí byť len čapica na starom dome
Centrá miest stále patria medzi najžiadanejšie lokality na bývanie. Kam však umiestniť novostavby, keď voľných plôch v centre je máloω Nadstavby! To môže byť jedno z riešení s profitom pre investora aj užívateľa. Nie je však nadstavba ako nadstavba. Niektoré si na strechy nasadzujú len romantizujúce vikiere, iné volia nadstavbu s kompletnou rekonštrukciou. K tým druhým patrí aj nadstavba na Páričkovej ulici v Bratislave. Podľa autora návrhu Ing. arch. Gabriela Brogyányiho „hlavným kritériom pri riešení tejto nadstavby bol cieľ, aby nadstavbou vznikol nový celok – moderný dom. Tak, aby nadstavba nepôsobila len ako nová čapica na starom dome, ale aby nadstavbou vznikol moderný objekt zodpovedajúci dnešným materiálovým možnostiam a technickým poznatkom“.
Na pozadí zákona
Realizácia nadstavby však nemusí riešiť len dopyt po nových bytoch. Aj majitelia bytov v existujúcich objektoch v centrách miest sú tlačení ekonomickou náročnosťou údržby starých objektov, ktorá bola dlhé roky zanedbávaná, ako aj potrebou znižovania prevádzkových nákladov na vykurovanie a celkovú prevádzku domov. Komplexná rekonštrukcia a obnova domu súčasne znižuje náklady na opravy a riešenie havarijných stavov. K jej prínosom patrí aj úspora finančných prostriedkov vo fonde údržby a opráv a možnosť využiť tieto prostriedky na zvyšovanie štandardu spoločných priestorov.
Pri nadstavbe vždy nastáva konfrontácia dvoch strán: investora a existujúcich obyvateľov v dome. Ako inak – ich zhoda predurčuje úspech. „Postupuje sa podľa zákona o vlastníctve bytov a nebytových priestorov, pričom jedna z noviel tohto zákona výrazne prispela k realizácii nadstavieb,“ vysvetľuje architekt Brogyányi. „Umožnila totiž realizovať právo väčšiny. Na realizáciu nadstavby postačuje súhlas dvojtretinovej väčšiny majiteľov. Tak, aby napríklad z 50 majiteľov v dome nemohol jeden alebo dvaja zablokovať zhodnocovanie vlastníctva ostatných susedov.“
Predĺžená životnosť

Vzhľadom na rozsah nadstavby sa podarilo v dome realizovať úplne nový výťah, zateplenie domu, výmenu okien, výmenu spoločnej elektroinštalácie a mnoho ďalších rekonštrukčných prác. Ako udáva investor, dom získal nadstavbou rekonštrukčné práce a dodávky za viac ako 6 miliónov korún. Ešte dôležitejším kritériom však bola technológia výstavby, ktorá priamo ovplyvnila dĺžku trvania stavby. Rýchlosť realizácie minimalizovala vlhké procesy, obmedzila hlučnosť, a teda aj komfort bývania pôvodných majiteľov. Na Páričkovej sa zvolila kombinovaná konštrukcia oceľového skeletu a murovaných obvodových stien z ľahkých murovacích tvaroviek a oceľových stropov so zálievkou. Táto technológia umožnila do jedného roka stavbu dokončiť a pripraviť ju na kolaudáciu.
Architektúra nadstavby
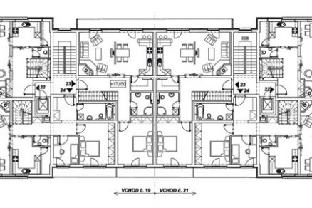
Čo teda kolaudácia priniesla? Dom z 50. rokov minulého storočia s piatimi poschodiami a jedným suterénom sa nadstavil o dve celé a jedno ustúpené poschodie. „Možnú zaťažiteľnosť existujúceho domu preveril a posúdil statický posudok,“ prízvukuje architekt Brogyányi. „Vykonala sa pasportizácia každého bytu, aby sa predišlo prípadným škodám na existujúcom dome. Pre nadstavbu realizovaného rozsahu sa vykonal podrobný geologický prieskum podložia a základov prostredníctvom kopaných sond v suteréne objektu.“
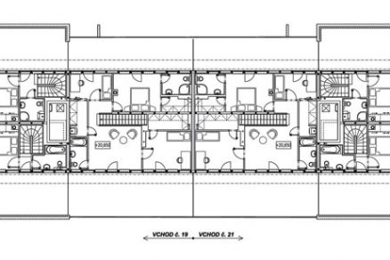
Podľa realizačného projektu na nadstavených podlažiach malo vzniknúť 10 nových bytov. Niektoré z nich sú mezonetové s priestrannými terasami, ktoré dokonca ponúkajú rozmer strešných záhrad. Konečný počet bytov sa ešte zvýšil o dva, pretože noví majitelia si ich rozdelili. Z vrchného poschodia budovy sú byty prístupné predĺžením existujúceho schodiska a osobného výťahu o dve podlažia. Tri byty sú prístupné v každom vchode zo 6. nadzemného podlažia, ostatné zo 7. nadzemného podlažia. Mezonetové byty majú vlastné interiérové schodisko.

Stavbárska múdrosť hovorí, že až prevádzka preukáže kvality diela, ale už dnes možno konštatovať, že nadstavovaný objekt tieto predpoklady napĺňa. Navyše, nadstavovaný objekt svojou hmotou tvorivo komunikuje s nadstavovaným objektom v susedstve na križovatke Svätoplukovej a Páričkovej ulice, čím vytvára aj priestor na pôsobenie v urbanistickom kontexte.
![]() |
![]() |
Názov: Nadstavba obytného domu Páričkova
Miesto: Páričkova č. 19 a 21, Bratislava
Investor: BM Global, s. r. o., Royova 29/a, Bratislava
Generálny projektant: Aplan, s. r. o.
Autori: Ing. arch. Gabriel Brogyányi, Ing. Ivan Grman
Začatie výstavby: september 2006
Ukončenie výstavby: september 2007
Dodávatelia: Generálny dodávateľ: M-Stav, s. r. o., Bratislava
Výťahy: SLOV lift, s. r. o., Bratislava
Voda, kúrenie, plyn: Ladislav Peller, Šamorín
Oceľové brány vstupné: Procom – JK, s. r. o., Čachtice
Exteriérové zábradlia: Korveta, Bratislava
Schody, drevené obklady a terasy: Treppenmont AS, s. r. o., Brehy
Hliníkové žalúzie a obklad alucobond: A-Z Consulting, s. r. o., Ivanka pri Dunaji
Vstupné dvere do bytov: Sherlock, s. r. o., Bratislava
Elektroinštalácie: Vladimír Helísek, Bratislava
Drevené okná: DREVITAL, s. r. o., Bošany
Sanita: Armaturex, s. r. o.
Vnútorné dvere a parkety: Koratex, s. r. o.
Ľudo Petránsky
Foto: Dano Veselský
Projektová dokumentácia: Aplan, s. r. o.













