image 68706 25 v1
Galéria(14)

Modulárna architektúra: showroom za menej než 3 mesiace

Keď sa spojí príjemné s užitočným a keď spolupracuje konštrukčná spoločnosť so šikovnými architektmi, s výsledkom sa to nemôže skončiť inak, než že sa k nemu zlietnu architektonické časopisy ako osy na med.

MG 2413
REZ AA A3 1 200
SITUACE A3 1 500
POH JV A3 1 200
obr
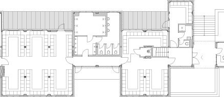
2NP A4 1 200
1NP A4 1 200
MG 2502

Už keď som videla prvé pracovné fotografie z interiéru, začala som sa tešiť na obhliadku realizovanej stavby. Modulárny systém sa najčastejšie používa pri výrobe rôznych typov kontajnerov, ale už aj v našich končinách sa objavuje zaujímavá architektúra založená na tomto princípe a vyberá si z neho to najlepšie – jednoduchú a rýchlu montáž, prevažne suchú výstavbu, flexibilitu vzniknutého priestoru a funkčného využitia, za istých podmienok aj flexibilitu v premiestňovaní stavby tam, kde je práve potrebná.

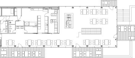
Jedáleň na poschodí poskytuje výhľad na celý výrobný areál a široké okolie. Schodisko dovedie stravníkov do iného sveta.

Nejde len o boxy

Príprava stavby na realizáciu trvala približne pol roka (projektová príprava približne rok), pričom čistý čas výstavby bol menej než tri mesiace. Samotné druhé nadzemné podlažie bolo v hrubej stavbe poskladané za jeden deň. „Modulárna architektúra nie je len o obyčajných kontajneroch. V tomto prípade sme sa snažili navrhnúť plnohodnotnú budovu. Výsledok je showroom s konštrukčným a priestorovým potenciálom modulárnej architektúry,“ hovorí Michal Krištof z architektonického ateliéru Chybik + Kristof Associated Architects, ktorý so spoločnosťou Koma Modular spolupracuje už niekoľko rokov. Novopostavená jedáleň v priemyselnom areáli spoločnosti Koma Modular je prvým objektom, na ktorý by v rámci plánovanej reorganizácie vstupnej časti mali postupne nadväzovať ďalšie. „Konštrukcia je z pozinkovaného ohýbaného a zváraného plechu. Sú použité moduly s rozmermi 9 × 3,3 m alebo 7,5 × 3,3 m. Svetlá výška spodného podlažia je 2 600 mm, vrchné podlažie má svetlú výšku 2 950 mm. Prízemie sa skladá z klasických priestorových modulov, ktoré vzájomným posúvaním vytvorili členitý pôdorys a na poschodí terasy s výhľadom na výrobný areál a okolie. Horné podlažie využíva tzv. flat pack systém. Ten umožňuje voliteľnú výšku podlažia a montuje sa priamo na stavbe. Jedáleň má pevné základy v podobe betónových pilót, ktoré vzhľadom na podložie išli až do hĺbky 6 m. Základy sú odvetrané. Dilatácia stavby rešpektuje členenie na jednotlivé moduly a je priznaná aj v podlahách.

Atypické stavebné dverné puzdrá s výškou 2 500 mm dodávala firma J.A.P. Jednoliate plochy podlahy a stropu vytvárajú skvelú kulisu masívnemu nábytku.

Na obed s výhľadom

Prízemie je v exteriéri obložené na mieru navrhnutým a vyrobeným obkladom z ťahokovu. Poschodie má z väčšej časti sklenenú fasádu. V prípade potreby ju tienia elektricky ovládané a naprogramované exteriérové textilné rolety. Pri nepriaznivých poveternostných podmienkach sa vytiahnu, pri nadmernom preslnení interiéru sa stiahnu dole. Na prízemí sú šatne a hygienické zázemie pre zamestnancov. Keďže funkcia aj normové a ergonomické požiadavky boli dané, architekti sa pohrali s farebnosťou týchto priestorov. Šatne sú kompletne oranžové a umyvárne zelené. „Hoci každý dodávateľ dostal presný odtieň RAL, ktorý mal použiť, nakoniec sa nám tu stretlo viac odtieňov zelenej. Uznali sme však, že výsledok je príjemný,“ s úsmevom konštatuje pri obhliadke architekt Michal Krištof. Na poschodie vedie jednoduché oceľové schodisko, ktoré je obložené pozinkovaným lakovaným plechom. „Investora sme nemuseli veľmi presviedčať, aby sme jedáleň umiestnili na poschodie. Teraz, keď je stavba hotová a v prevádzke, ukázalo sa, že žiadna iná možnosť by ani neprichádzala do úvahy,“ popisuje nápaditý interiérový prvok architekt. „Napokon, na obklad sme použili materiál, s ktorým sa zamestnanci denne stretávajú, ale v inej podobe. Vločková kresba navyše zjemňuje priemyselný charakter plechu. Overili sme si, že ten sa dá úspešne použiť aj v interiéri.“

Precízne nalepený veľkoplošný obklad z lakovaného kaleného skla nevidieť v závodnej jedálni každý deň.

Červený ostrov na mieru

Priestor samotnej jedálne je veľmi vzdušný a zariadenie stravovacej časti je jednoduché. Čo však zaujme na prvý pohľad je výdajňa stravy. O tom, že červená podporuje chuť do jedla, niet pochýb, ale veľkoplošný obklad z lakovaného kaleného skla s hrúbkou 5 mm nevidieť v závodnej jedálni každý deň, a tak je hlavné jedlo dňa nielen potešením pre žalúdok, ale aj pastvou pre oči. V striedmo ladenom interiéri vytvára obklad nezvyčajný červený ostrov, ktorý zaujme na prvý pohľad. „Toto riešenie nepatrí medzi najdrahšie možnosti, aj keď jeho realizácia bola náročná na presnú výrobu. Zároveň sme riešili aj obklad stropu. Bola to pre nás veľká výzva, pretože bežne lepíme sklo iba na zvislé plochy. Ale celá príprava aj priebeh prác bol bez problémov,“ opisuje dizajnovú lahôdku Jiří Fryšták zo spoločnosti J.A.P. „Keď bola výdajňa jedál postavená, prišli sme ju zamerať a všetky diely museli byť vyrobené s milimetrovou presnosťou vrátane otvorov na elektroinštalácie, vodu či vzduchotechniku a samozrejme podľa výkresu s daným plánom kladenia.“ Sklo je lepené na fermacellové dosky lepidlom, ktoré má nosnosť až 5 ton na 1 m2. Ostročervený obklad vo firemných farbách pokračuje aj v hygienickom zázemí pre zamestnancov. Architekti sa v spolupráci s firmou J.A.P. pohrali aj s takými detailmi, ako je rovnaké sklo na posuvných dverách či prepracované napojenie na ostatné materiály. „Okrem skla na obklady sme dodali aj atypické stavebné puzdrá s výškou 2 500 mm, ktoré už bežne vyrábame,“ dodáva Jiří Fryšták z J.A.P. Priestor jedálne je klimatizovaný, výustky sú po obvode, takže nenarúšajú jednoliatosť stropného podhľadu. Vykurovanie zabezpečujú do podlahy zabudované fancoily.

Zaujímavých protipólov je na objekte viac: ťahokov kontra sklenené plochy, členité prízemie kontra obdĺžnik na poschodí alebo strieborná farba kovových konštrukcií kontra pestrá paleta farieb na ostatných materiáloch.

S radosťou na obed

Samozrejme, nie je obvyklé, aby stravovací režim zamestancov ležal na srdci majiteľovi tak, ako je to vo vizovickom prípade. Na druhej strane treba priznať, že s novou jedálňou sa počet stravníkov výrazne zvýšil a ukázalo sa, že o výdaj stravy majú záujem aj ľudia z okolia. Ukazuje nové možnosti využitia kontajnerov a jej perfektne zvládnutý interiér so skutočne červeným srdcom je dôkazom, že aj z modulov 9 × 3,3 m môže vzniknúť inovatívna a kvalitná architektúra. 

Červený veľkoplošný obklad sa opakuje aj na hygienickom zázemí. Vytvára kontrast k inak striedmemu zariadeniu jedálne.

Modulárna jedáleň, Vizovice
Investor: KOMA Modular, s. r. o.
Miesto: Vizovice, Česká republika
Architekti: Ondřej Chybík,
Michal Krištof, Vojtěch Kouřil
Ukončenie výstavby: 2014
Obstavaný priestor: 1 870 m3
Hrubá podlažná plocha: 580 m2
Zastavaná plocha: 360 m2
Investičné náklady: 25 000 000 Kč
Sklenený obklad a atypické
dverné puzdrá: J.A.P.

text: Mária Nováková Chybik
dokumentácia: Kristof Associated Architects

foto:Dano Veselsky

Článok bol zverejnený v časopise ASB.