Príbeh Aupark napísal v Piešťanoch druhú kapitolu
Donedávna toľko kritizovaný koncept Auparku, ktorý stojí na razantnom vnesení obchodu a zábavy do stredu mesta, sa postupom času stal jeho devízou. To, čo je vo vyspelom zahraničí bežnou záležitosťou, si na Slovensku vytrvalo razí cestu k uznaniu. Čísla obchodných obratov nepustia, navyše, prvý mimobratislavský príklad – Aupark v Piešťanoch – znesie aj prísnejšie architektonické či urbanistické kritériá. Aj pri vzniku tejto kapitoly príbehu Aupark bola architektonická kancelária Jančina architekti, no dopĺňal ju širší okruh spolupracovníkov.
Začiatok je v urbanizmeNajprv čísla biznisu. „Centrum na viac ako 10-tisíc štvorcových metroch a vo viac ako 60 prevádzkach ponúka potravinový supermarket, veľké kníhkupectvo, viacero športových prevádzok, zariadenia rýchleho stravovania, obuv, hračky, drogériu, lekáreň, elektro, kaviarne, obchody s módou a rôzne doplnkové služby,“ prezrádza Mária Juritková, hovorkyňa Auparku. „Investícia presiahla hodnotu 25 miliónov eur, pričom v tejto lokalite pribudlo 380 parkovacích miest a prácu tu našlo približne 200 zamestnancov.“
Investorský zámer je stelesnený obchodným centrom, ktoré je nositeľom ústredných ideí. Koncept Auparku v Piešťanoch sa však nezačína dispozíciou, materiálmi či konštrukciami samotného objektu, ale kvalitne zvládnutým urbanizmom. Objekt veľmi dôsledne sleduje princípy neďalekej pešej zóny, za ktorú piešťanský architektonický ateliér BP získal v roku 2006 cenu CEZAAR. Bolo len logickým rozhodnutím, že tento ateliér sa aj teraz stal autorom návrhu koncepcie vonkajších priestorov Auparku.
„Snažili sme sa kontinuálne pokračovať v princípoch pešej zóny, a to nielen jednotným výtvarným riešením, ale aj štruktúrou hlavných peších ťahov,“ približuje logiku riešenia vedúci ateliéru BP Ing. arch. Bohuslav Pernecký. „Rovnako sme riešili zakladanie kompletných inžinierskych sietí, pre ktoré sme hľadali optimálny priemet do pôdorysu exteriérov.“
Súčasťou urbanistickej premeny bolo aj nová štruktúra dopravy, v ktorej dostali prioritu nielen chodci, ale najmä cyklisti ako symbol dopravy v kúpeľnom meste.

Druhým výrazným urbanistickým pozitívom Auparku je jeho rozmer. Nesnaží sa byť násilnou dominantou, citlivo sleduje okolitú zástavbu domov, z ktorých viaceré sú cenné príklady historickej architektúry. „Aupark veľmi presne trafil mierku mesta,“ dodáva aj vedúca kancelárie primátora mesta Drahomíra Moretová. Mesta, ktoré je veľmi obozretné pri prijímaní nových prvkov do svojho organizmu.
Prijateľný rozmer objektu je podporený aj jeho vonkajšou fasádou, ktorej členenie, farebnosť, ale i zvolené materiály proporčne harmonizujú s kontextom prostredia.
{video_start}
UserFiles/File/architektura/stavba-roka/stavba-roka-2011/aupark-piestany-5251/ASB-aupark%20piestany_1.flv
{video_end}
| Aupark – Piešťany Miesto: Nitrianska ulica, Piešťany Architekti: Jančina architekti; Ing. arch. Juraj Jančina Spolupráca: Ing. arch. Igor Mazúch Developer: HB Reavis Celkové náklady: 25 miliónov eur Zastavaná plocha: 8 700 m2 Prenajímateľná plocha: 10 130 m2 Autori dizajn manuálu Aupark a koncept interiéru: Jančina architekti, Ing. arch. Juraj Jančina, Ing. arch. Igor Mazúch, Ing. arch. Marián Trcka Autori interiéru, foodcourtu a mobiliáru: Central European Project Management, s. r. o., Ing. arch. Ladislav Nagy, Ing. arch. Milan Škorupa, Ing. arch. Martin Tribus Generálny projektant stupňa Realizačný projekt: Central European Project Management, s. r. o. Projekčný tím: Ing. Roman Bojnanský, Ing. Branislav Bošák, Ing. Janka Bojnáková, Ing. Janka Luňáčková, Ing. Roman Luňáček, Ing. Petra Truchla, Ing. Peter Új Autori priestorovej koncepcie a výtvarného riešenia spevnených plôch, zelene, vonkajších priestorov: Architektonický ateliér BP, Piešťany, Ing. arch. Bohuslav Pernecký, Ing. arch. Anna Pernecká, Ing. arch. Marianna Bogyová Technické riešenie – zodpovední projektanti za jednotlivé profesie /Koordinátor profesií vonkajškov: Ing. arch. Bohuslav Pernecký Komunikácie, spevnené plochy, dopravné riešenie: Ing. Stanislav Chmelo Sadové a vegetačné úpravy: Ing. Eva Wernerová Vodohospodárske objekty: Ing. Štefan Lipka Plynofikácia: Ing. Oľga Horňáková Elektro, vonkajšie osvetlenie: Ing. Jozef Alchus Slaboprúd: Ing. Miloš Kvinta Generálny dodávateľ: HB Reavis Management Dodávatelia – výber: Klimatizácia, vykurovanie: Domotherm Vzduchotechnika: Apiagra Slaboprúdové rozvody: Nectel Silnoprúdové rozvody: ER & P Spevnené plochy, komunikácie a chodníky: Trnavská stavebná spoločnosť Práce na fasádach: Prowin Metalické podhľady a obklady v interiéri: Lindner |

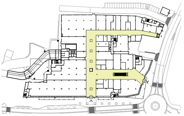
Základná filozofia Auparku je zachovaná aj v Piešťanoch. Do svojho vnútra vťahuje okolitú ulicu, z ktorej vytvára ústredný kompozičný prvok. Vstupy sú len symbolickými hranicami medzi exteriérom a interiérom. Hlavné kompozičné osi dispozície sledujú pohyb vonkajších peších ťahov a pokračujú v obchodných galériách. Ich kríženie je logickým miestom stretávania, na poschodí sú kaviarne a foodcourty.
Mohutný svetlík prechádzajúci celou dĺžkou osí je obľúbeným motívom autora projektu Juraja Jančinu, ktorý v Piešťanoch úlohu svetla ešte zvýraznil. Urobil z neho médium zrozumiteľnosti prevádzky, ľahkosti a farebnosti použitých materiálov, ako aj výtvarnej modelácie tvarov. Na rozdiel od Bratislavy sa v Piešťanoch svetlo koncentruje do menšieho priestoru, v ktorom má oveľa väčšie možnosti svojho pôsobenia.
Treba pripomenúť, že aj koncept Auparku v Piešťanoch bol zasiahnutý krízou. Developer pozastavil jeho výstavbu, pričom došlo aj k zásadnému prehodnoteniu jeho vnútornej štruktúry, funkčnosti a obsahovej skladby. „S odstupom času môžem konštatovať, že táto prestávka bola prínosom,“ hovorí Ing. arch. Juraj Jančina. „Výsledok je dokonca lepší ako pôvodné architektonické riešenie. A to aj vďaka konštruktívnemu dialógu s investorom i ďalšími spolupracujúcimi architektmi.“
![]() |
![]() |
Na ceste k interiéru
Ani úprava pracovných vzťahov medzi autorom projektu a investorom pred realizačným projektom nezmenila nič zásadné v architektonickom vyznení objektu. Samotný Juraj Jančina zdôrazňuje, že mnohé ich návrhy sa podarilo presadiť aj vo výsledku. „Nenastali dodatočné korekcie, ktoré by poškodili samotný objekt. Naša spolupráca bola koncepčná a konštruktívna,“ dodáva.
Realizácia interiérov Auparku však už pripadla projekčnej kancelárii investora s názvom Central European Project Management, ktorá sa stala aj generálnym projektantom pre realizačný projekt Auparku. Ten vypracovala na základe stavebného povolenia, ku ktorému pripravila dokumentáciu kancelária Jančina architekti.
„Naša architektonická kancelária nastúpila do projektu Auparku Piešťany, keď sa už začala výstavba, boli vybetónované základy a začalo sa betónovať prvé nadzemné podlažie,“ hovorí Ing. arch. Ladislav Nagy z Central European Project Management. „Hlavnou úlohou okrem samotného realizačného projektu bolo vypracovanie konceptu interiéru, ktorý musel rešpektovať dizajn manuál platný pre všetky Auparky, pričom pri mobiliároch a vo foodcourte sme dostali voľnejší autorský prístup.“
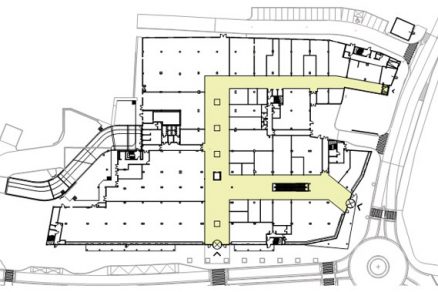
Pôdorys 1. NP

Dizajn manuál Auparku je dosť striktný a vychádza z využitia prírodných materiálov: kamennej dlažby, dreva a zelene. Investor chcel zachovať aj rez pasážou s dôležitými konzolami so zaobleniami na druhom nadzemnom podlaží. Tento rez sa v profile menil iba vtedy, keď si to vyžadovalo šírkové usporiadanie.
Z pohľadu dizajnu základnej pasáže bola zásadná zmena v tom, že sa v Piešťanoch išlo na rozdielnu konštrukčnú výšku. V bratislavskom Auparku je výška prvého nadzemného podlažia 6,5 metra, v Piešťanoch iba 5,5 metra. Aj v tomto prípade sa zachovala kontinuita so stavebným konceptom kancelárie Jančina architekti, pretože menšiu konštrukčnú výšku vyriešili už spomenuté, mohutnejšie svetlíky.
Optické zväčšenie interiéru priniesla aj vhodná kombinácia prírodných a kovových obkladov. Autori sa pokúsili obmedziť aj masívne panelové nápisy na priečelí jednotlivých prevádzok a maximalizovať sklenenú plochu, čím sa v pasáži eliminoval pocit zadebneného priestoru. Podľa slov architekta Nagya bola komunikácia s jednotlivými nájomcami často náročná, ale vo výsledku sa podarilo dosiahnuť rozumný kompromis. „Snažili sme sa, aby celý interiér Auparku pôsobil na návštevníkov priateľským dojmom,“ hovorí Ladislav Nagy. „V materiáloch i koncepcii má odrážať atmosféru Piešťan ako sviežeho mesta. Pri foodcourte sme zase chceli, aby sa mierne odlišoval od zvyšku Auparku a jeho jednotlivé časti prinášali špecifickú náladu.“
Prvé dva mesiace prevádzky potvrdili investorský zámer i architektonický koncept. A hoci ide o najmenší Aupark v dlhodobej schéme, mierka bola nastavená správne. Našťastie, nielen tá obchodná…
Situácia
Ľudo Petránsky
Foto: Dano Veselský
Článok bol uverejnený v časopise ASB.















