Nákupné centrum Eperia Shopping Mall
Prešov bol posledným krajským mestom, ktoré nemalo moderné nákupné centrum. Od konca uplynulého roka to už nie je pravda. Aj metropola Šariša má centrum od J&T REAL ESTATE, kde sa nechodí len nakupovať. Ako sa EPERII Shopping Mall darilo počas prvých mesiacov?
Stručná odpoveď znie: dobre… zatiaľ veľmi dobre. Možno by niekto argumentoval, že sa pri tomto centre jednoducho nedalo zmýliť, ale chyba sa dá urobiť kedykoľvek. Majiteľ Eperie však aj pre ASB vyslovil spokojnosť s úvodom nábehovej krivky centra. „Návštevnosť centra od začiatku prekonala naše očakávania, budeme však vyhodnocovať i ďalšie ukazovatele, ktoré sú kľúčové pri riadení obchodných centier,“ hovorí Vladimír Salkovič, predseda predstavenstva VSV Consulting, a. s., ktorého 100-percentným akcionárom je realitný fond NÁŠ PRVÝ REALITNÝ o.p.f. – PRVÁ PENZIJNÁ SPRÁVCOVSKÁ SPOLOČNOSŤ POŠTOVEJ BANKY, správ. spol., a. s. „Len počas prvých troch dní prišlo do Eperie viac ako 70 000 návštevníkov a do konca januára to bolo vyše 650 000 návštevníkov.“
Osvedčená lokalita
Najnovší projekt v retailovom segmente pochádza od developera J&T REAL ESTATE, ktorý s istotou zvolil lokalitu v osvedčenej maloobchodnej zóne. Ide o Ul. armádneho generála L. Svobodu, ktorá sa nachádza v bezprostrednej blízkosti najväčšieho prešovského sídliska Sekčov. Poloha centra zabezpečuje obslužnosť širokej spádovej oblasti pokrývajúcej severovýchod Slovenska, ktorá predstavuje dovedna až 330 000 ľudí. Z hľadiska celkového množstva nákupných plôch a kvality zloženia nájomcov má projekt všetky predpoklady na to, aby v spádovej oblasti dominoval.
Večerná Eperia s vonkajším parkoviskom – severovýchodný pohľad
Dominuje móda, ale miesto má aj kultúra
Podľa štúdie CBRE Shopping Centre Index, ktorá každoročne porovnáva parametre nákupných centier na Slovensku, poskytuje Eperia Shopping Mall moderné a vyvážené zloženie značiek. Dominuje im móda s vyše 58-percentným podielom z celkovej plochy (bez supermarketu), z čoho viac ako polovicu (55 %) tvoria veľkí módni nájomcovia, 28 % módnej plochy predstavujú menšie butiky, 15 % tvorí obuv a zvyšok doplnky. Z hľadiska celkového podielu na ploche majú druhý najvyšší podiel na prenájme (11,8 %) špecializované obchody, ako sú hračky, šport alebo predajne kníh a vyše 10-percentný podiel majú gastronomické prevádzky a kaviarne.
Nákupná pasáž
Dominantu Eperie tvorí centrálne námestie otvorené cez dve podlažia, ktoré poskytuje priestor na príležitostné kultúrne a verejné podujatia, aktivity pre deti a veľa iných atrakcií na načerpanie inšpirácie a strávenie príjemných chvíľ s rodinou. My sme boli v Eperii počas tretej adventnej nedele a centrum celkom prirodzene žilo predvianočnou náladou. Kultúrne podujatia pre najmenších i tých väčších poobede vystriedal vianočný koncert Súkromného konzervatória Dezidera Kardoša v Prešove, ktorý priniesol magický zážitok.
Výťahy pre verejnosť v nákupnej pasáži
Certifikácia BREEAM
Ale naspäť k stavbe, ktorá prišla s moderným konceptom, ale aj kvalitnou technológiou. Podľa projektového manažéra Juraja Marka z JTRE dodržal projekt Eperia normové požiadavky na technológie aj na zvyšok stavby. „S čím sa mnohí nájomcovia nestretli, je Centrálny baterkový systém, ktorý však vyžaduje legislatíva,“ hovorí Juraj Marko. „Dodržujeme energetický certifikát A1 a v rámci Prešova bude mať Eperia ako jediná v meste medzinárodné hodnotenie ekologických stavieb – britský certifikát BREEAM s výsledným hodnotením very good. V rámci vzduchotechniky dodržujeme EKOdizajn 2016, čo je tiež normová záležitosť.“
Exteriérové únikové schodisko
Vetranie spoločných priestorov obchodného centra a obchodných nájomných priestorov zabezpečuje 15 vzduchotechnických jednotiek umiestnených na streche objektu. Vzduchotechnické jednotky pre átriá zabezpečujú vetranie, vykurovanie aj chladenie týchto priestorov. „Na elimináciu tepelnej záťaže z nájomných jednotiek, ostatných priestorov obchodného centra a chladenie vetracieho vzduchu sú použité 2 ks vysokoúčinných chladiacich strojov s celkovým chladiacim výkonom viac ako 2,9 MW,“ hovorí Ing. Tomáš Lahučký, obchodný manažér zo spoločnosti KLIMAK, s. r. o. „Použitý je systém nepriameho chladenia. Vykurovanie je zabezpečené kombinovaným spôsobom, a to konvekčným teplovodným vykurovaním pomocou vykurovacích telies a teplovzdušným pomocou vzduchotechnických zariadení. Zdrojom tepla sú štyri kondenzačné stacionárne plynové kotly s celkovým výkonom 2,2 MW.“
Ľudská mierka
Architektúra nákupného centra pochádza z dielne architektonického tímu DKLN. „Samotná budova obchodného centra je vizuálne rozdelená na dve hmoty, čím je bližšie k ľudskej mierke,“ približuje Ing. arch. Ladislav Nagy zo štúdia DKLN. „Umiestnenie a tvarovanie hlavných vstupov nadväzuje na predpokladaný tok ľudí z parkovacích plôch aj z okolitých peších a cyklistických trás. Hmota objektu je horizontálne tvarovaná a výškovo rozdelená na dva segmenty.
Pohľad na vedľajší vchod do nákupného centra, kde sa nachádza aj detské ihrisko.
Vyššia dvojpodlažná časť akcentuje vstupy a dobrú identifikáciu objektu aj pri pohľade z okolitých ulíc. Nižšia hmota sa nachádza na severnej strane medzi hlavným a vedľajším vstupom do objektu. Jej forma sleduje vo výške jedného podlažia líniu zelene a voľnočasových relaxačných zón a na streche poskytuje nájomcom možnosti na vytvorenie vonkajších terás so sedením.“
Zasklená fasáda na 2.NP – pohľad z terasy
BIM uľahčoval projekciu i koordináciu
Generálnym projektantom bola spoločnosť OBERMEYER HELIKA, ktorá od tímu DKLN dostala architektonickú štúdiu a ako podklad ju najprv dopracovali do projektu zmeny stavby pred dokončením. Objekt už totiž mal vydané stavebné povolenie v roku 2008, a preto robil generálny projektant najprv dokumentáciu zmeny stavby pred dokončením a následne vypracoval aj realizačnú dokumentáciu. Spolupráca s architektmi DKLN pokračovala, architekti kontrolovali dodržanie konceptu a vyhotovili projekt interiéru.
![]() |
![]() |
Rezy objektom
„Ide o štandardný železobetónový skelet s modulom 8,1 × 8,1 m a s hlavicovým monolitickým stropom,“ približuje konštrukciu Ing. Marek Ištokovič, vedúci ateliéru OBERMEYER HELIKA v Poprade, ktorý na stavbe pôsobil ako hlavný inžinier projektu. „Zaujímavé bolo zakladanie stavby, ktoré sa pre ílovité podložie a vysokú hladinu spodnej vody realizovalo na pilótach.
Napriek komplikovaným pomerom sa to nakoniec zvládlo.“ OBERMEYER HELIKA štandardne používa pri projekcii BIM software REVIT a projektuje v 3D, prípadne metódou BIM – informačný model budov, ktorý v prípade Eperie veľmi pomohol pri špecifikácii detailov, či už v spodnej stavbe, alebo v obvodovom plášti. „Ešte podstatnejšie to bolo pri koordinácii profesií,“ zdôrazňuje Marek Ištokovič.
![]() |
![]() |
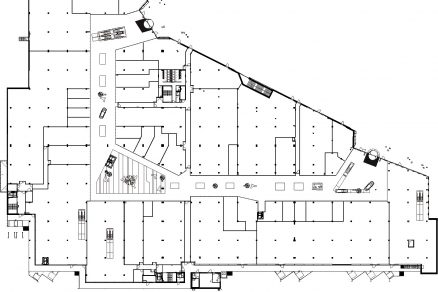
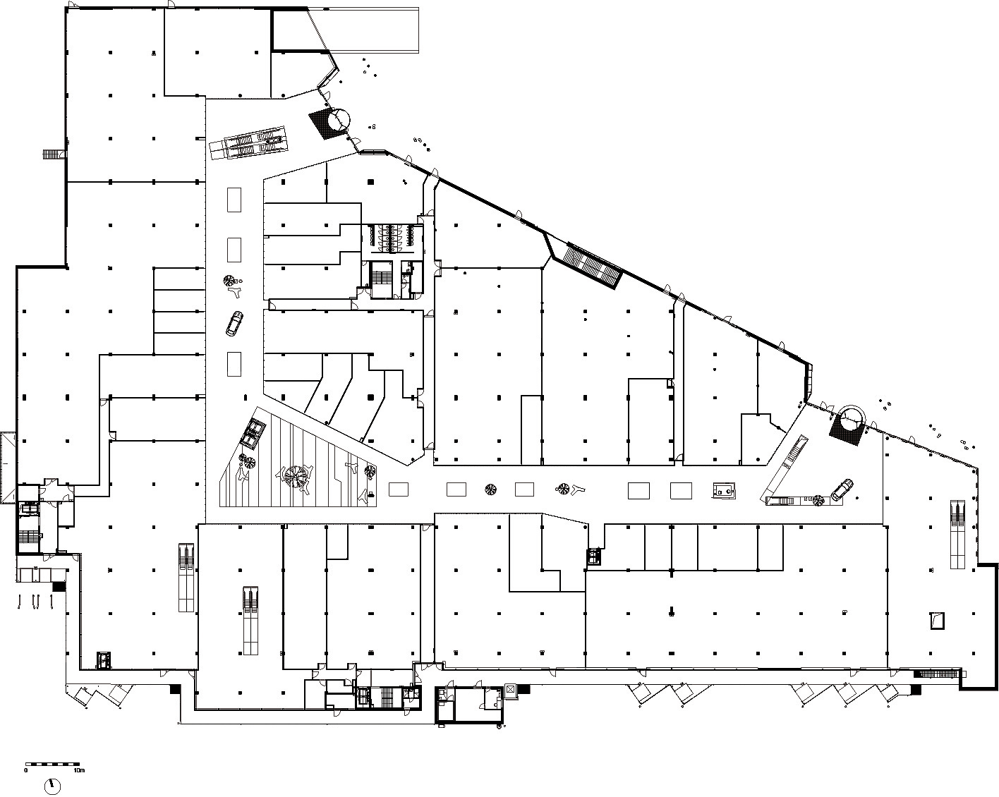
| Pôdorys 1. NP | Pôdorys 2. NP |
„Bolo skvelé, keď sme si projekt vedeli natáčať v 3D, pričom sme videli a zároveň riešili všetky kolízie a úpravy. Napríklad priečelia obchodných výkladov majú navrchu oceľovú konštrukciu a v niektorých prípadoch sme pre vzduchotechniku museli upravovať ukotvenie – bez 3D by to bolo veľmi komplikované. Tento systém je možno trochu náročný pri zadávaní projektu, ale prácnosť sa vrátila pri zjednodušenej koordinácii a konštrukcii detailov.“
Majitelia Eperie vedia, že v obchodných centrách je podstatná najmä skúsenosť zákazníka. Ak je pozitívna, jeho schopnosť vracať sa do centra bude prirodzená. Prvé mesiace naznačili, že predsavzatie majiteľov, aby už Prešovčania nechodili nakupovať do Košíc, má reálne základy.
EPERIA SHOPPING MALL
Miesto: Arm. gen. L. Svobodu 25, Prešov-Sekčov
Investor: VSV consulting, s. r. o.
Developer: J&T REAL ESTATE
Autori architektonického riešenia:
DKLN s.r.o., Hlavná 234, 900 23 Viničné
Ing.arch. Ladislav Nagy, autorizovaný architekt
Ing.arch. Martin Tribus, autorizovaný architekt
Peter Žiak, March
Generálny projektant: OBERMEYER HELIKA
Hlavný inžinier projektu: Ing. Marek Ištokovič, spolupráca Ing. Andrej Rybár – OBERMEYER HELIKA
Začiatok a ukončenie realizácie: 2. Q/2016 – 4. Q/2O17
Otvorenie: 24. 11. 2017
Úžitková plocha: 22 000 m2
Celkové investície: 50 mil. eur
Generálny dodávateľ: Keraming, a. s.
Vzduchotechnika, ústredné kúrenie, chladenie: KLIMAK, s. r. o.
TEXT: ĽUDOVÍT PETRÁNSKY
DOKUMENTÁCIA: DKLN
FOTO: MIRO POCHYBA
Článok bol uverejnený v časopise ASB 1-2/2018.





















