Na Kuchajde nie je nuda
Aj po dovolenke strávenej kdesi pri mori sa nič netušiacemu návštevníkovi jedného z bratislavských prírodných kúpalísk ešte môže prihodiť niečo nečakané. Ak sa rozhodne pre oddych pri tomto jazere, určite ho zláka jej vkusný výzor. Je náročná, dobre varí, ale najmä - je dobre stavaná. Reštaurácia Mólo je príjemným vyrušením zo všednej reality mestskej časti Nové Mesto. Oslovuje i náročnejších zákazníkov, a tak vnáša to tohto prostredia príjemný a nečakaný luxus. Na dvoch prepojených prevádzkach poskytuje kulinárske služby, počnúc letným grilovaním čerstvých rýb až po náročnejšie jedlá pripravované pre reštauráciu s letnou terasou.
Výber konkrétnej lokality na Kuchajde objasňujú Tomáš Novosad a Peter Borsig zo spoločnosti Kamel, s. r. o., ktorí sú investormi zámeru: „V rámci areálu sme sa chceli dostať čo najbližšie k svojim zákazníkom, preto sme prevádzku situovali v nadväznosti na nákupné a administratívne centrum tejto mestskej časti a celého okolia. “ Zákazníci majú k dispozícii parkovisko v blízkosti vstupu do areálu jazera. Od vstupu do areálu už ide všetko samé od seba: cieľom sú príjemné, a to nielen kulinárske zážitky v šarmantnej prítomnosti reštaurácie. Zákazníkov víta priečelie s kamenným obkladom a prvkom vody, ktoré tak naznačuje všadeprítomnú vodu. Podľa chuti a sezóny je na výber posedenie pri grilovacom bare alebo príjemné prostredie reštaurácie. Interiér uvíta vizuálne zaujímavým barom, kde sa možno pristaviť pri poháriku a rozhliadnuť sa. Dominantou priestoru je zadná plná stena s krbom, ktorú dizajnérsky prepracoval Daniel Piršč. Výtvarným stvárnením kvapky vody dotvoril celkový výraz v interiéri i exteriéri.


Pre zákazníkov je určený aj salónik na 2. nadzemnom podlaží, kde možno usporadúvať akcie pre uzavretú spoločnosť. Na salónik nadväzuje terasa, ktorá počas letnej sezóny dodáva priestoru ďalší rozmer. Na tomto podlaží sú administratívne priestory reštaurácie.
Investori kládli vysoké nároky na osvetlenie priestoru, preto autori návrhu venovali veľkú pozornosť aj jeho technickému riešeniu. Výsledkom je pôsobivá hra svetiel v interiéri, ktoré sa večer odrážajú na vodnej hladine a vyžarujú do celého okolia.
Technické zariadenia objektu od vykurovania až po klimatizáciu riadi centrálny riadiaci systém. Reštaurácia je pomocou vonkajšej prístupovej rampy prístupná i zákazníkom so zníženou schopnosťou pohybu, ktorá sa inak využíva ako prístup ku grilovaciemu baru.

Pozdĺžny rez
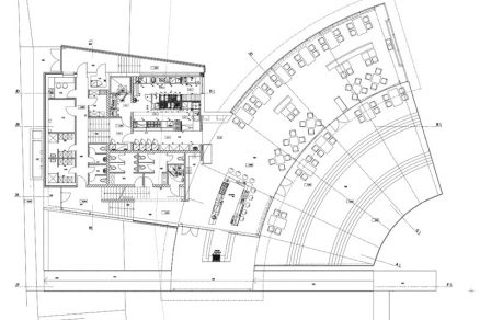
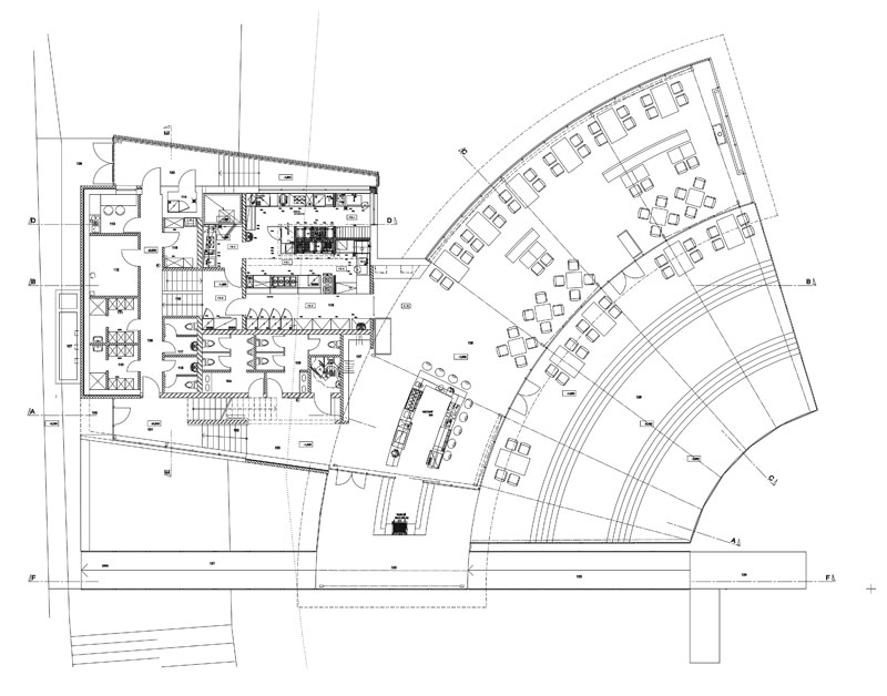
Pôdorys 1. NP

Miesto stavby: jazero Kuchajda, Bratislava
Investor: Kamel, s. r. o., Bratislava III.
Architekti: Ing. arch. Jana Domitreková, Ing. arch. Peter Lehocký, Ing. arch. Otto Häusler
Spolupráca: Daniel Piršč (výtvarný dizajn)
Generálny dodávateľ: B&C Slovakia, s. r. o.
Hrubá stavba: Chladiace veže Bohunice, spol. s. r. o.
Okná, dvere: Alkon Košice, a. s.
Exteriérové obklady a dlažby: Chladiace veže Bohunice, spol. s. r. o.
Vzduchotechnika: Kennec Comerce, s. r. o.
Vykurovanie: Bytservis-Sk, spol. s. r. o.
Elektroinštalácie: Ing. Štefan Falb
Interiér, stolárske výrobky: RAP Interier, s. r. o., Mikulov
Kamenárske výrobky: Kalašutra, Mikulov
Krb: Jidé
Centrálny riadiaci systém: Ing. František Vysloužil (návrh), Ing. Štefan Falb (realizácia)
Lucia Hakelová
Foto: Petra Bošanská, Lucia Hakelová












