Mlyny oživí expresívna veža
Súčasťou obchodnej galérie Mlyny v Nitre by sa mala onedlho stať polyfunkčná veža, ktorá rozšíri kapacity obchodných priestorov. Jej primárnou funkciou však budú hotelové a administratívne priestory. Veža sa bude nachádzať na križovatke ulíc Štúrova a Ulica Česko-slovenskej armády a svojou expresívnou formou by mala oživiť panorámu mesta.
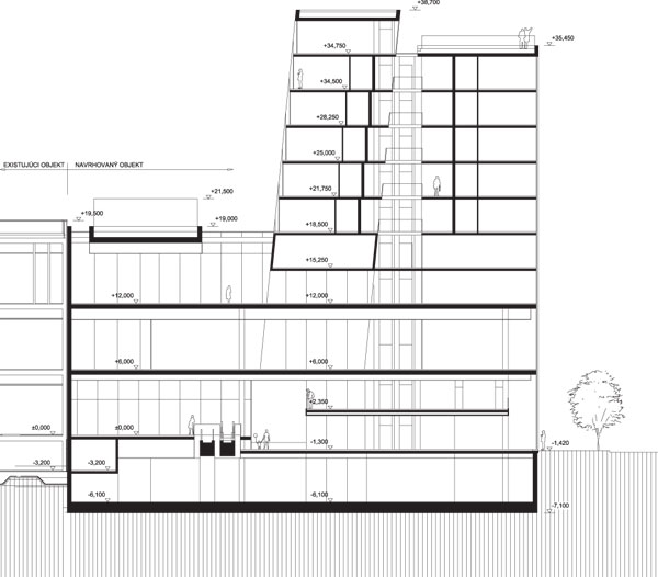
ArchitektúraPolyfunkčná veža je navrhnutá vo dvoch výškových úrovniach a pozostáva z dvoch navzájom o seba „opretých“ hmôt s celkovou výškou 10 nadzemných podlaží, pričom podnož plynulo nadväzuje na obchodnú galériu a obsahuje tri nadzemné podlažia.
„Skladba hmoty pracuje s jednoduchými tvarmi lineárnych vertikálnych objektov, pričom priestorové riešenie veže vychádza z dvoch vertikálnych objektov, ktoré sa nakláňajú k sebe,“ hovorí Ing. arch. Andrej Alexy. „Týmto sa vytvára vnútorný priestor – átrium, ktoré prechádza cez celú výšku objektov. Severnú a južnú fasádu tvoria plochy plných, jemne pootočených stien, ktoré chránia objekt pred hlukom z ulice ako aj vplyvmi severnej orientácie. Zároveň majú výtvarný účinok podporený dynamickým naklonením ako aj ilumináciou v nočných hodinách.“
Presvetlenie vnútorných komunikačných priestorov umožňuje „štrbina” medzi dvomi vertikálnymi objektmi. Orientácia i transparentnosť východnej a západnej fasády umožňuje výhľady na dominanty historického jadra mesta. Takisto návrh parteru umožní priehľady do vnútorného átria s väzbou na spoločensko-obchodné a vstupné priestory.
Dispozícia
Pri prevádzkovej jasnosti dispozície sa logicky skĺbila obchodná, hotelová a administratívna funkcia. Všetky na seba prirodzene nadväzujú a zároveň každá má dostatočný priestor na naplnenie vlastnej identity a autonómnosti.
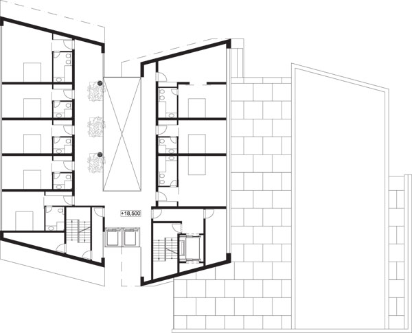
„Dôležité bolo aj nenásilné napojenie na priestory jestvujúcej nákupnej galérie, ktoré zhodnotili a skompletizovali súčasný stav pridanou hodnotou nových atraktívnych obchodných priestorov,“ dodáva architekt Alexy. Vertikálne komunikácie zabezpečujú dve schodiská a dva osobné a jeden nákladný výťah, pričom komunikačný priestor má lineárno-chodbový pôdorys. V suteréne sa okrem technického zázemia nachádza obchodný priestor, ktorý je s prevádzkou na 1.NP prepojený výťahmi. Na 1. nadzemnom podlaží sú situované vstupné a obchodné priestory.
Tu sa nachádza aj recepcia hotela ako aj informácie v priamej väzbe na vertikálne komunikácie. Vstupná hotelová a administratívna hala prirodzene ústi do obchodnej pasáže, ktorá prepája vnútorné priestory s obchodnou galériou. Na 2. nadzemnom podlaží je situovaný obchodný priestor prístupný z pasáže Galérie Mlyny. Kongresové centrum na 3. nadzemnom podlaží je situované vo väzbe na hotel s napojením na obchodnú pasáž galérie a jej gastronomické prevádzky. Od 4. NP vyššie sa nachádza hotel, resp. administratívne priestory. Na ustúpenom strešnom podlaží sú navrhnuté terasy, ktoré budú sprístupnené z administratívnych priestorov na 10. podlaží.
–>–>
| Polyfunkčná veža Mlyny Miesto: Štúrova ulica, Česko-slovenskej armády, Nitra Využitie: obchody, hotel, administratíva Autori: Ing. arch. Andrej Alexy, Ing. arch. Ing. Štefan Rafanides Generálny projektant: ALEXY & ALEXY, s. r. o. Spolupráca: Bc. Lukáš Orihel Investor: MLYNY, a. s. Začiatok výstavby: apríl 2011 Ukončenie výstavby: jún 2012 Úžitková plocha: 7 300 m2 Obstavany priestor: 37 909 m3 Zastavaná plocha: 1 063 m2 Stavebné náklady: 9 098 160 € Generálny dodávateľ: Invest IN, a. s. |
Pôdorys 5. NP
Situácia
Rez
(pet)
Vizualizácie: Alexy&Alexy
Článok bol uverejnený v časopise ASB.











