Light Park – obchod nielen so svetlom
Na perspektívnom území Gaštanový hájik obklopenom železničnými stanicami Bratislava-Predmestie a Bratislava-Vinohrady pribudne nový obchodný dom s názvom Light Park. Architektúra jednoduchých čistých tvarov sleduje ústredný obsah objektu, ktorým bude dizajnový nábytok a interiérové doplnky. „Azda najvýraznejšie sa to odrazí na fasáde, ktorá bude pripomínať moderný nábytok,“ hovorí spoluautor projektu Ing. arch. Roman Oravec. Nákupné stredisko s 5 000 štvorcovými metrami obchodných priestorov by malo byť dokončené na jeseň tohto roku.
Light Park bude slúžiť ako obchodno-výstavný priestor s dizajnovým nábytkom, bytovými doplnkami, ale aj s kúpeľňovými štúdiami a službami architektov. Zasklená fasáda evokujúca výklad by mala opticky prepojiť vnútro objektu s vonkajškom a zároveň by mala pripomínať interiérový doplnok, ktorý odráža funkciu samotného nákupného domu.

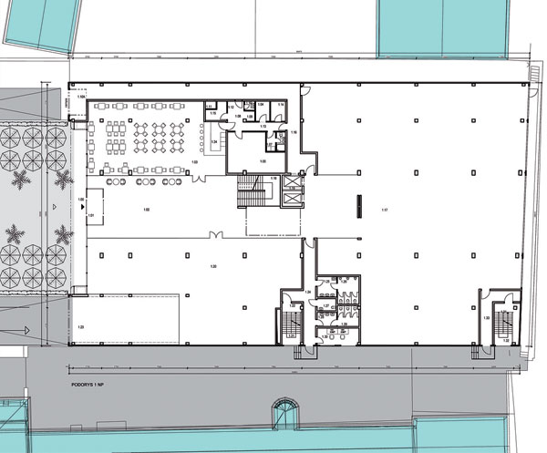
Hlavným orientačným a komunikačným priestorom Light Parku je centrálne schodisko s výťahmi a otvoreným átriom, z ktorého sa vstupuje do jednotlivých obchodov. Tie sú navrhnuté ako veľkopriestorové predajne, ktoré však možno prispôsobiť požiadavkám nájomcov.
Zásobovanie objektu sa rieši z prednej časti fasády, kde sa nachádza manipulačný priestor a zásobovacia chodba pre ďalšie prevádzky. Zásobovacia chodba ústi do nákladného výťahu, ktorý obhospodaruje aj vyššie podlažia. Parkovanie pre zákazníkov bude v podzemnej garáži pod obchodným domom s kapacitou okolo 70 áut.

Miesto: Bratislava III, Nové Mesto – Gaštanový hájik
Autori: Ing. arch. Pavel Slovák, Ing. arch. Roman Oravec
Generálny projektant: SOLLTECH, s. r. o.
Investor: LIGHTPARK, s. r. o.
Generálny dodávateľ: Sollaris developers, a. s.
Predpokladané ukončenie stavby: jeseň 2007
Celková úžitková plocha: 7 930 m2
Úžitková plocha predajných priestorov: 5 018 m2
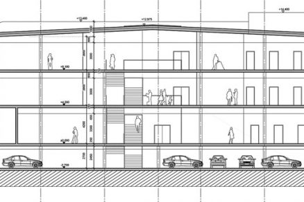
Celková výška objektu: 15 m
(pet)
Vizualizácie: Lightpark, s. r. o.







