Kúpeľné vilky pri nohách Slavkovského štítu
Galéria(15)

Kúpeľné vilky pri nohách Slavkovského štítu

Definovať súčasnú tatranskú architektúru, a to v silnej prevahe ponášok na tirolské penzióny či ľudové stavby, sa pokúsili architekti z nitrianskeho ateliéru In Antis Patrícia Kvasnicová a Tibor Zelenický. Zhmotnením ich snahy sú kúpeľné vilky v Novom Smokovci, ktoré môžu dovoliť pokojne spočívať pri nohách Slavkovského štítu. V tejto realizácii, podobne ako pri rekonštrukcii a prestavbe areálu Starého mlyna, prejavili autori svoju schopnosť vnímania kontextu. Kým pri adaptácii industriálneho objektu úspešne zhodnotili historické dedičstvo, kúpeľným vilkám vtlačili ráz, ktorý nachádza spoločnú reč s lokalitou zasadenou do tatranskej prírody.

Rodinná atmosféra
„Z významového hľadiska nejde o žiadnu prelomovú architektúru. Naším cieľom bolo vytvoriť niečo tatranské, ale vypovedané súčasným slovníkom. Sme z juhu, z roviny, preto je pre nás veľkou výzvou vniesť niečo nové do vysokohorského prostredia. Máme k nemu veľmi blízko, keďže každý rok absolvujeme túry v Tatrách.

Pseudoklasické horské hotely a napodobeniny pôvodných hrazdených stavieb boli pre nás absolútne neprijateľnou predstavou. K primárnym zdrojom inšpirácie patrili skôr Zbojnícka či Téryho chata s ich jednoduchou pultovou strechou,“ približuje myšlienku projektu Tibor Zelenický. Voľba prostého riešenia s čo najmenšou členitosťou súvisela s požiadavkami, ktoré vyplývajú zo zákonitostí stavebnej fyziky v tejto lokalite.

Na prvom mieste preto bola kompaktnosť a uzavretosť hmoty. Podmienka nízkej a štruktúrovanej zástavby namiesto jedného veľkého objektu vyplynula jednak z pocitu autorov, ktorému dominoval kontrast majestátneho štítu a malého človeka, jednak z urbanistického charakteru lokality, reprezentovanej solitérnou zástavbou. V konečnom dôsledku výsledok ovplyvnilo aj zadanie investora, ktorý chcel turistické zariadenie s domácou atmosférou. Tento zámer potvrdzuje aj malá kapacita areálu – približne 40 osôb. Pred predajom apartmánov alebo tradičným hotelom investor uprednostnil ubytovanie v duchu klasického cestovného ruchu. Rodinné teplo si návštevníci môžu užiť aj vďaka kozubu, ktorý sa nachádza v každej ubytovacej jednotke.

Terénny zlom
Terén, na ktorom sa malo stavať, bol po osudnej kalamite spred piatich rokov úplne zdevastovaný. Navyše ho narúšal terénny zlom, ktorý v spodnej časti pozemku vytváral jamu zvažujúcu sa k bývalým tenisovým kurtom. Základnou otázkou teda zostávalo, akým spôsobom sa architekti vyrovnajú so stavebno-technickými ťažkosťami parcely a súčasne nájdu riešenie investorovho zámeru. Našťastie, aj túto nevýhodu dokázali architekti zúročiť v prospech ubytovacieho strediska. Celý zlom sa podoprel oporným múrom, ktorý sa stal súčasťou objektov. Pre jeho výšku zodpovedajúcu jednému podlažiu architekti navrhli objekty, ktoré sa z jednej strany javia ako jednopodlažné, zatiaľ čo z opačného pohľadu sú dvojpodlažné. „Pôvodne sme chceli orientovať vstupy do objektov zo severnej strany, teda zhora, čo bolo nakoniec najprirodzenejšie riešenie.

Podmienky pozemku nám v tom však zabránili, a preto sme museli celú dispozíciu otočiť,“ ozrejmuje projektové zmeny architekt. Vstupná časť sa umiestnila na prvé podlažie a spolu so spálňami na druhom podlaží získala južnú orientáciu. Spoločenská časť apartmánov s obývačkou a kuchyňou sa tak ocitla na severnej strane s výhľadom na Slavkovský štít. V jeho podnoží sa však ukrýva množstvo podpovrchových vôd, preto sa objekty osadili na zatĺkané mikropilóty a oporný múr areálu sa vybavil drenážnym systémom na prepúšťanie vody. Podzemný tok dokonca viedol priamo pod jedným z objektov, preto ho museli odkloniť pomocou potrubia.


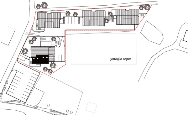
Situácia

Duplex
Ubytovací areál vytvárajú štyri objekty vilového typu, pričom v jednom z nich sa okrem ubytovacej jednotky nachádza aj recepcia a trvalé bývanie majiteľa. Na prvý pohľad vyzerajú tri objekty slúžiace výlučne návštevníkom rovnako, z dispozičného hľadiska však ponúkajú široké možnosti ubytovania podľa konkrétnych potrieb klienta. Každá jednotka má svoj vstup, terasu aj parkovanie. Poskytujú alternatívu si prenajať jeden apartmán alebo dokonca obývať celý objekt, napríklad viacerými rodinami, ktoré sa rozhodli ísť na dovolenku spoločne. Umožňuje to základná dispozičná schéma, ktorú predstavuje takzvaný duplex – obývateľná jednotka zložená z dvoch apartmánov s možnosťou ich vzájomného prepojenia.

Každý z dvanástich apartmánov má popri spoločenskej časti aj kúpeľňu a jednu až tri izby. Ďalším pozitívom riešenia areálu je suchý prístup k všetkým objektom či elektronické prepojenie apartmánov s centrálnou recepciou. Výber materiálov podnecuje súzvuk s lokalitou. Dominuje im drevo, ktoré sa uplatnilo v exteriéri aj interiéri, kameň či plech. Odvetrané fasády dotvára predsadený plášť z tepelne upraveného dreva v hornej časti a z cetrisových dosiek v spodnej časti domov. Interiér dýcha osobitnou atmosférou vďaka inštalovaným kozubom, ako aj smrekovej dlážke.

Podľa architekta však celkový výraz areálu narúšajú stavby apartmánového domu a tenisovej haly, ktoré sa v susedstve vybudovali dodatočne. „Kúpeľné vilky stratili na svojej pôvodnej hodnote, pretože tieto objekty sú do územia zasadené veľmi necitlivo, a to z hľadiska mierky aj tvaroslovia. Ako autori s tým však, žiaľ, neurobíme nič, pretože je to vec lokálneho urbanizmu,“ dodáva Tibor Zelenický. Na záver vyslovuje nádej, že naša architektúra vrátane tej tatranskej sa azda konečne začne racionalizovať.

Kúpeľné vilky vo Vysokých Tatrách
Miesto: Nový Smokovec
Využitie: zariadenie cestovného ruchu
Architekti a autori urbanistickej štúdie: Ing. arch. Tibor Zelenický,
Ing. arch. Patrícia Kvasnicová
Investor a prevádzkovateľ: Kúpeľné vilky, s. r. o.
Generálny projektant: In Antis, s. r. o.
Generálny dodávateľ: Tatraspol J+J, s. r. o.
Statika: Ing. Alojz Bojda
Stavebná časť: Ing. Jaroslav Wittner
Nábytok: Santal, s. r. o.
Stavebné povolenie: 2006
Začiatok výstavby: 2006
Ukončenie výstavby: 2008
Čas výstavby: 20 mesiacov
Celkové náklady stavby: 1,560 mil. € (47 mil. Sk)
Plocha parcely: 2 325 m2
Zastavaná plocha: 750 m2
Zeleň  a ostatné plochy: 1 575 m2
Počet apartmánov: 12
Počet nadzemných podlaží: 2
Počet parkovacích miest: 16
Počet parkovacích miest v garáži: 8

Atypická vilka

Severný pohľad/Východný pohľad

1.NP/ 2.NP

Vilka – typ 1


Západný pohľad/Južný pohľad

1.NP/ 2.NP

Anna Salvová
Foto: Dano Veselský

Článok bol uverejnený v časopise ASB.