Keď sa architektúra prihovára
Stavať v prieluke v mestskej zástavbe je pre architekta jednou z tých ťažších výzev. Architektúra takej budovy musí ladiť s okolím a vo všeobecnosti má málo priestoru na výraz. Polyfunkčný objekt, ktorý vám predstavíme v tomto článku, je však navyše v prostredí z jednej strany určenom siluetou nitrianskeho hradného kopca s pôvodnou zástavbou, z druhej strany sa ho dotýka akcentovaný priestor námestia pred Divadlom Andreja Bagara, ktorý je vyvrcholením pešej zóny.
Napriek tomu, že architektúra tohto domu úplne rešpektuje zložité okolie, nemlčí. A ani nekričí. Jemne sa prihovára okoloidúcim.
Slovami architekta

„V posledných dvoch rokoch sú Nitrania svedkami intenzívnej stavebnej činnosti v centre mesta, hlavne na Svätoplukovom námestí a na Mostnej ulici. Počas minulého roku sa tu veľkoplošne asanovala pôvodná urbanistická štruktúra. Na vzniknutú „dieru“ v strede mesta si ľudia zvykli – začala sa využívať ako voľná parkovacia plocha.
Bolo však len otázkou času, kedy sa objaví spôsob nového využitia týchto pozemkov. Vypracovali sa urbanistické štúdie (ateliér San Huma 90, Nitra) na riešenie komplexnej rekonštrukcie tohto územia ako pokračovania pešej zóny v nadväznosti na Župné námestie.
Pretože sa územie nachádza priamo pod hradným kopcom, určili sme dôležité pohľadové kužele. Mesto rozparcelovalo pozemky spôsobom veľmi podobným pôvodnej parcelácii a predalo ich súkromným majiteľom.

Snažili sme sa zachovať atraktívne pohľady na Mostnú ulicu a do Župného námestia, aj keď pozemok presahuje pred pozemok susedného objektu.
Keďže sme chceli maximálne využiť dané zastavovacie podmienky, zvolili sme trojkrídlový dispozičný variant. Jedno krídlo sme orientovali k Župnému námestiu, druhé smerom k Mostnej ulici a tretia časť prilieha k štítovej stene s technickým a komunikačným príslušenstvom, sprístupňujúca obe spomenuté časti, presvetlená vnútorným átriom v úrovni prvého nadzemného podlažia.“
Architektonické riešenie stavby
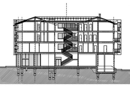
Severná aj južná fasáda prezrádzajú vertikálne členenie budovy na dve hmotové časti – technickú časť s komunikačným jadrom a časť obchodných a administratívnych priestorov. Obidve časti sú rozdielne funkčne, architektonicky aj farebne riešené. Prejavuje sa to nielen v riešení typických podlaží na poschodiach, ale aj v riešení parteru. Tmavšie omietnutá technická a komunikačná časť je v parteri plná, na vyšších podlažiach je typická zo severnej strany horizontálnymi výplňami okenných otvorov, z južnej atypicky mozaikovo umiestnenými okennými otvormi rôznej veľkosti.
Fasády komerčnej časti sú zámerne riešené v kontraste k technickej a komunikačnej časti – na južnej aj severnej strane je v parteri fasáda odľahčená, zasklená, čím sa opticky prepája Mostná ulica so Župným námestím. Na poschodiach je zo severnej aj z južnej strany táto svetlo omietnutá časť predsadená, je jemne zvlnená a má zaujímavo riešené lodžie.
Výrazným kompozičným prvkom riešenia nárožia severnej fasády sú atypické vertikálne, po podlahu siahajúce rohové okenné otvory. V kontraste s nimi podčiarkujú horizontálne členenie objektu zábradlia z hliníkových vodorovne uložených profilov.
Predsadený rám na južnej fasáde opticky spája všetky podlažia a tvorí výrazný kompozičný prvok. Aj na tejto strane umocňujú zábradlia lodžií na poschodiach horizontalitu riešenia a zároveň dávajú vyniknúť jemným zaobleniam fasády. Slnečné lúče prenikajúce cez lamely zábradlia vytvárajú v určitých hodinách na fasáde zaujímavé kresby.
Dispozičné riešenie
Konštrukciu stavby tvorí monolitický železobetónový skelet, ktorý umožnil vytvoriť na prízemí veľkopriestor obchodných prevádzok a služieb. Je prístupný samostatnými vstupmi z Mostnej aj Podzámskej ulice.
Pri severnej obvodovej stene je ako samostatný stavebný objekt začlenená transformačná stanica. Od Mostnej ulice sú prekrytým podlubím dostupné vnútorné komunikačné priestory (samostatný vstup, schodisko, osobný výťah), ktoré sprístupňujú poschodia nezávisle od prevádzok na prízemí.
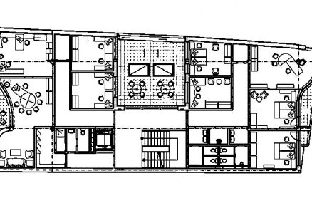
Na poschodiach sú prevažne kancelárie rôzneho plošného štandardu. V strede dispozície sa nachádza otvorené átrium, ktoré sa na prvom poschodí využíva ako pochôdzna terasa a slúži na presvetlenie a vetranie vnútorných kancelárskych priestorov a schodiskového priestoru vo vyšších podlažiach.
Krídla od Podzámskej aj Mostnej ulice sú dispozičným trojtraktom (po bokoch s kancelárskymi priestormi a v strede s chodbou). Východné krídlo je dvojtrakt – schodisko, technické a hygienické príslušenstvo a chodba. Konštrukcia strechy je kombinovaná – prevažnú časť tvorí šikmá strecha, menšiu časť plochá strecha.
Názov stavby: polyfunkčný objekt
Miesto stavby: Mostná ul., Nitra
Objednávateľ projektu: B. V. REAL, spol. s r. o., Nitra
Generálny dodávateľ: Vachút
Spracovateľ projektu: Ateliér Feník – Turányi – Rehák, Nitra
Architekti: Ing. arch. Branislav Števko, Ing. arch. Juraj Turányi
Začiatok realizácie: máj 2003
Koniec realizácie: jún 2004
Z podkladov Ateliéru Feník – Turányi – Rehák pripravila M. Jakušová.
Foto a grafické prílohy: Ing. arch. Branislav Števko











