EPERIA Shopping Mall
Začiatkom leta sa v Prešove začala výstavba nového nákupného centra EPERIA Shopping Mall, ktoré bude mať certifikáciu BREEAM 2009 s výsledným hodnotením Very Good.
Dvojpodlažné regionálne nákupné centrum s viac ako stovkou obchodov vyrastá v obchodnej zóne na sídlisku Sekčov. Podľa projektového manažéra projektu Ing. Juraja Marka sledoval investor vhodné načasovanie projektu v treťom najväčšom meste Slovenska. „Čakali sme, kým bude Prešov pripravený zvládnuť koncept regionálneho nákupného centra z pohľadu širokej a početnej spádovej oblasti, ako aj štruktúry okolitého obyvateľstva a jeho príjmov,“ upresňuje projektový manažér. „EPERIA Shopping Mall už počas samotnej realizácie stavby prihliada na environmentálne kritériá. Naším cieľom je zdravá a efektívna stavba, ktorá bude vyvážená z hľadiska spotreby, použitých materiálov a bezpečnosti.“
Ľudská mierka
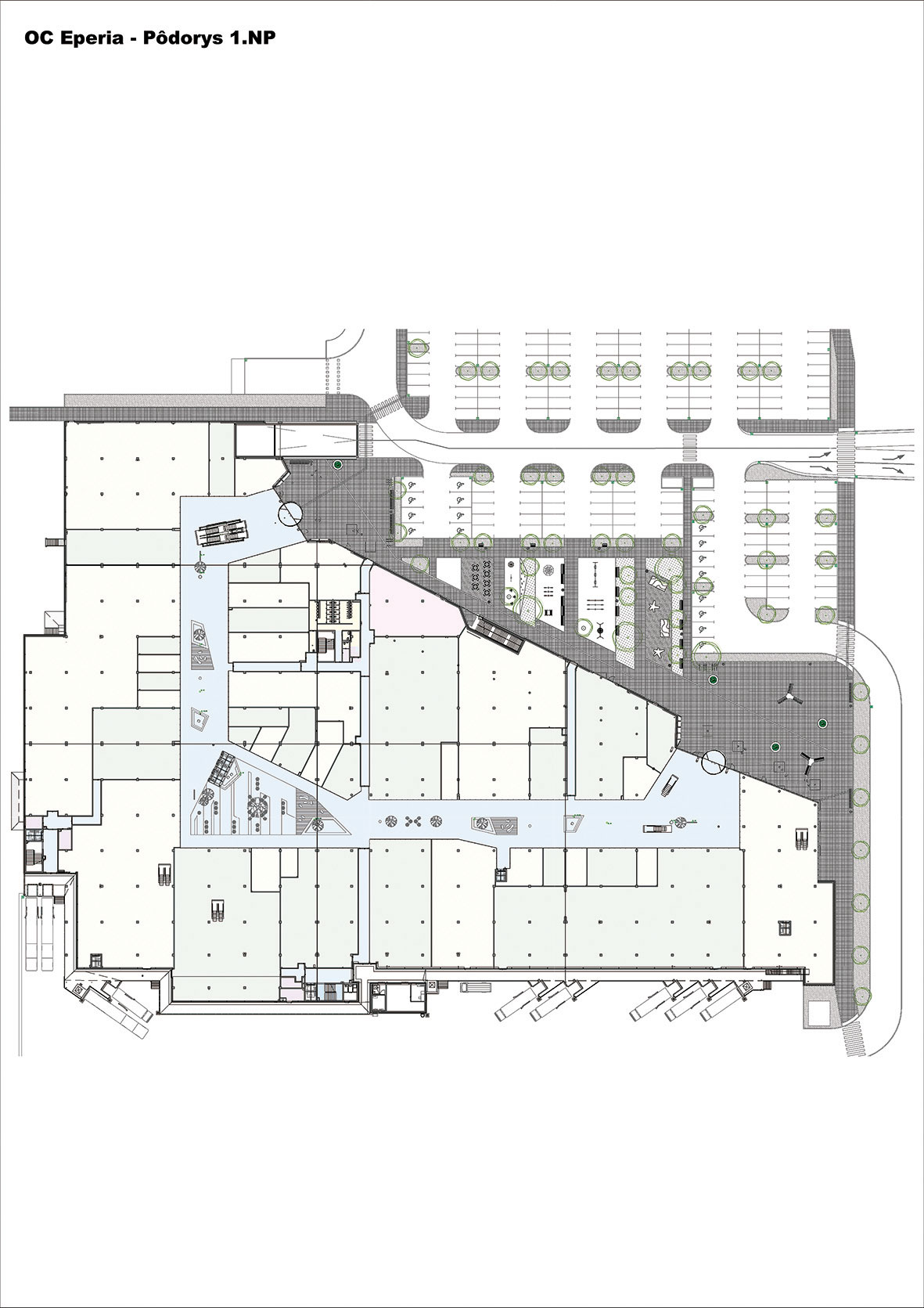
Architektonický návrh sa snaží o využitie existujúcej charakteristiky terénu. Z toho vychádza aj umiestnenie podzemného parkovania pod časťou navrhovaného objektu. Prevádzkovo návrh vychádza z koncepcie dvojpodlažnej obchodnej galérie s maximálnym využitím 1. NP na komerčné účely. Zabezpečenie dobrej distribúcie návštevníkov do 2. NP je zabezpečené cez uzlové body v blízkosti hlavných vstupov do objektu v spojení s riešením vstupných portálov a interných verejných priestorov. Veľkosť, proporcie a charakter pasáže sú kľúčovým interiérovým vnemom, podľa ktorého budú interiérové priestory návrhu posudzované návštevníkmi. Podľa architektov bolo cieľom návrhu dosiahnuť veľkorysé, presvetlené a architektonicky atraktívne priestory, ktoré poskytnú návštevníkom vizuálny zážitok a nájomcom dobrú komerčnú pozíciu a viditeľnosť v pasáži.
„Samotná budova obchodného centra je vizuálne rozdelená na dve hmoty, čím je bližšie k ľudskej mierke,“ približuje Ing. arch. Ladislav Nagy zo štúdia DKLN. „Umiestnenie a tvarovanie hlavných vstupov nadväzuje na predpokladaný tok ľudí z parkovacích plôch aj z okolitých peších a cyklistických trás. Hmota objektu je horizontálne tvarovaná a výškovo rozdelená na dva segmenty. Vyššia dvojpodlažná časť akcentuje vstupy a dobrú identifikáciu objektu pri pohľade aj z okolitých ulíc. Nižšia hmota sa nachádza na severnej strane medzi hlavným a vedľajším vstupom do objektu. Jej forma sleduje vo výške jedného podlažia líniu zelene a voľnočasových relaxačných zón a na streche poskytuje nájomcom možnosti na vytvorenie vonkajších terás so sedením.“
Materiál fasád je rozdelený z architektonického aj z ekonomického hľadiska na drahšie exponované fasády nachádzajúce sa na východnej a severnej strane a na menej exponované fasády na južnej a západnej strane. Exponovanejšie, viac viditeľné fasády sú riešené zasklenými plochami a metalickým obkladom.
Zelené plochy
Vonkajšie verejné priestory nákupného centra Eperia sú navrhované koncepčne ako rozptylové plochy aktívneho verejného života návštevníkov a ako doplnkové plochy a funkcie pre okolité sídlisko Sekčov a širšie okolie. Hlavnou myšlienkou bolo vytvorenie funkčných verejných priestorov so zeleňou, s funkciami oddychu, aktivít pre deti, s priestorom na príležitostné kultúrne a verejné podujatia a aj s možnosťou vonkajšieho sedenia s občerstvením. Zelené plochy v areáli sa dajú rozdeliť na zeleň parkovísk a na zeleň v blízkosti hlavných vstupov a detských ihrísk. Ukončenie výstavby projektu so „zeleným“ rozmerom je naplánované na koniec roka 2017.
EPERIA Shopping Mall
Miesto: Prešov, sídlisko Sekčov
Developer: J&T REAL ESTATE, a. s.
Investor: VSV consulting, s. r. o.
Architekti: DKLN
Začiatok výstavby: jún 2016
Ukončenie výstavby: koniec roka 2017
Zastavaná plocha: 37 000 m2
Úžitková plocha (plocha na prenájom): 20 500 m2
Celkové investície: 50 mil. €
TEXT: ĽUDOVÍT PETRÁNSKY
VIZUALIZÁCIE, PROJEKTOVÁ DOKUMENTÁCIA: J&T REAL ESTATE, a. s.
Článok bol uverejnený v časopise ASB.














