Zelené átrium chce získať LEED PLATINUM
Projekt Zelené átrium v Trnave vstupuje na slovenský realitný trh s ambicióznou perspektívou. Má ísť o prvý bytový dom v pasívnom štandarde na Slovensku. Polyfunkčný bytový dom Zelené átrium sa skladá z dvoch objektov – prvým je rekonštrukcia tzv. brownfieldu, čiže bývalých polygrafických závodov, druhým je novostavba. Architektonický výraz vychádza z jednoduchej hmotovej skladby zachovávajúcej pôvodný tvar výrobnej budovy.
Citeľná bola snaha autorov o jednoduchý konzervatívny architektonický detail a farebnosť, pričom inšpirácie sa hľadali v moderne z 30. rokov 20. storočia. Dôvod? „Snažili sme sa o minimalizáciu nákladov na architektonické výrazové prvky,“ odpovedá architekt Ing. arch. Miroslav Marko, M. Arch. „Radšej sme tieto peniaze investovali do technológií a zvýšených nákladov na zateplenie, tienenie a okná. Nadmernou výzdobou sme nechceli potlačiť koncept a samotnú podstatu domu.“
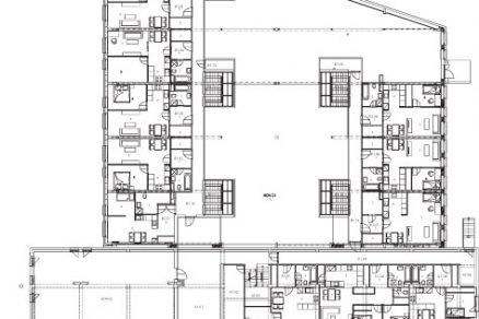
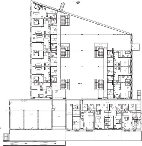
Dispozičné riešenie
Zelené átrium pozostáva z niekoľkých funkčných celkov. Sú to byty, obchodný priestor, administratívny priestor, parkovanie v suteréne objektu a priestory spoločné pre obyvateľov domu, slúžiace na spoločné a súkromné aktivity ako stretnutia a oslavy. V suteréne na nachádzajú podzemná garáž so 63 parkovacími miestami, skladové priestory patriace k bytom (pivnice) a energetické jadro objektu. Z garáže sa „suchou nohou” k bytom dá dostať výťahom. Na prízemí objektu (1. NP) sa nachádzajú byty v troch krídlach, kancelársky priestor a obchodný priestor. Na prvom poschodí (2. NP) sú byty v troch krídlach, spoločenská miestnosť s kuchynkou a priestorom na hranie detí v galérii nad obchodným priestorom. Na posledných dvoch podlažiach sú už len byty v časti A. Byty sú najmä malometrážne, 1-, 2- a 3-izbové. Na obytnej streche objektu sa nachádza „párty” priestor. Pri schodisku na streche je malá kuchynka a pergola chrániaca sedenie počas grilovačiek.
Technológie a úspora
Najväčšou pridanou hodnotu projektu bude úspora energie, ktorá sa zabezpečuje prostredníctvom viacerých technológií. Ide o tepelné čerpadlo s energetickými pilótami, ktoré z rozdielu teplôt a elektrickej energie vyrába teplo alebo chlad, o fotovoltické panely vyrábajúce elektrickú energiu zo slnka, kogeneračnú jednotku, ktorá spaľovaním plynu vyrába elektrickú energiu a odpadové teplo používa na ohrev teplej vody a kúrenie, o stenové a stropné kapilárne kúrenie a chladenie, exteriérové žalúzie a o meranie všetkých energií v reálnom čase, ktoré bude vlastníkom prístupné online. To všetko prispeje k tomu, že výpočtová potreba na kúrenie v bytoch bude do 14 kWh/m2 . a), pričom požiadavka podľa normy a bežný štandard je približne 150 kWh/(m2 . a). Ako upozorňuje Miroslav Marko, ekologický rozmer projektu sa prejavuje aj v tom, že minimálne 95 % materiálu z búracích prác sa zrecyklovalo – či už znovu použilo, alebo predrvilo na frakciu a následne použilo. Zvyšok išiel do zberných surovín. Garanciu pre systémy zateplenia vrátane PHPP výpočtov (Passive House Planning Package) zabezpečuje spoločnosť Isover v spolupráci s Inštitútom pre energetický pasívne domy. Prvý bytový dom v pasívnom štandarde na Slovensku má aj ďalšiu ambíciu. Chce získať LEED PLATINUM, čím by dosiahol ďalšie slovenské prvenstvo.
POLYFUNKČNÝ BYTOVÝ DOM ZELENÉ ÁTRIUM
Miesto: Ulica Štefana Moyzesa, Trnava
Architekt: Ing. arch. Miroslav Marko, M. Arch.
Investor: Ing. Ľubomír Marko – SMF Marko
Začiatok výstavby: 05/2013
Ukončenie výstavby: 03/2015
Úžitková plocha: 5 600 m2
Výmery bytov: od 37 do 87 m2, prevažne 55 až 60 m2
Generálny zhotovovateľ: Ing. Ľubomír Marko – SMF Marko
TEXT: ĽUDOVÍT PETRÁNSKY
Dokumentácia a vizualizácie: Ing. arch. Miroslav Marko, M.Arch
Článok bol zverejnený v časopise ASB.











