West park hlavného mesta
Záhorskú Bystricu, ktorú možno v súčasnosti zaradiť k najdynamickejšie sa rozvíjajúcim bratislavským mestským častiam, čaká nový prírastok. Prvá etapa výstavby projektu West Park I predstavuje moderný polyfunkčný komplex s prevahou funkcie bývania. Komplex by mal disponovať kapacitou 113 bytov. Investičná spoločnosť West park, s. r. o., plánuje na parcelách v blízkom sídla TV Markíza ešte výstavbu dvoch ďalších polyfunkčných súborov.
Vstupná brána Záhorskej Bystrice
„Záhorská Bystrica má dobré podmienky na vyvážený rozvoj bývania, občianskej vybavenosti, pracovných príležitostí, relaxu a športu. Hodnotou, ktorá predurčuje lokalitu na výstavbu kvalitného kultúrneho prostredia s dlhodobým limitom urbanizácie, je existencia rozsiahleho potenciálu prírodných plôch,“ zdôvodňuje neutíchajúci záujem investorov o výstavbu v Záhorskej Bystrici hlavný autor projektu Ing. arch. Jozef Ondriaš a zároveň podotýka, že realizácia komplexu West Park je rozdelená do troch etáp.
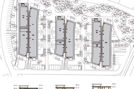
V prvej sa uskutoční výstavba troch budov. Tie budú situované približne na desaťárovom pozemku v tvare trojuholníka medzi Bratislavskou ulicou a štátnou cestou č. 2 v smere Bratislava – Stupava – Holíč. Zo severnej časti areálu tvorí prirodzenú hranicu Vápenecký potok. Objekty zrealizované v prvej a druhej etape výstavby by mali vytvoriť akúsi vstupnú bránu do mestskej časti.
Dynamika v priestore

„Pri hľadaní tvaru a proporcií domov sme sa snažili nájsť vyvážený vzťah medzi jedinečným prírodným prostredím a architektúrou. Za dôležité považujem použitie jasných identifikačných znakov. Jednotiacim výtvarným motívom návrhu je nepravouhlé, mäkké tvarovanie základnej hmoty každého objektu. To je vygradované na kratších hranách objektu. Rozdelením koncovej časti domu na dve sa tak dosiahlo tvarovanie, ktoré vytvára z exponovaných pohľadov dynamickú štruktúru.“
Vonkajší dizajn plášťa budovy je dotvorený reflexným, metalickým materiálom na báze ľahkého hliníka. Do charakteristického lemu, ktorý sa ťahá okolo celého objektu, sú vložené pozdĺžne fasády, orientované na východ a západ. Parter objekov mierne ustupuje a svoje uplatnenie ako obkladový materiál si tu našiel lomový kameň, zapracovaný do oceľových košov. Kamenný múr pozvoľna prechádza do predzáhradiek, kde plní úlohu oplotenia. Doplňujúcim výtvarným prvkom sú plné prefabrikované hmoty lodžií a terás.

Jednotlivé byty majú východnú, juhovýchodnú a západnú orientáciu. Dispozičné riešenie vyčleňuje ich priestor na spoločenskú a súkromnú časť. Spoločenská časť je priestorovo otvorená, segregovaná len funkčnou náplňou. Interiér prízemných bytov je prepojený so záhradou s výmerom od 80 do 120 štvorcových metrov. Zámerom architektov bola snaha napojiť zeleň v súkromných záhradách na prirodzený biokoridor, ktorý lemuje Vápenecký potok.
V priestoroch pod stavebnými objektmi sa nachádza 104 podzemných parkovacích miest, domová a technická vybavenosť. Okrem podzemnej statickej dopravy sa postaví aj 47 nadzemný parkovacích miest pre hostí a krátkodobé parkovanie. Komplex sa bude dopravne napájať z Bratislavskej ulice.
Investor plánuje začať s výstavbou prvej etapy polyfunkčného súboru v apríli 2009. Prví obyvatelia by sa mali nasťahovať v lete v roku 2010.
West Park I
Charakteristika: polyfunkčný súborMiesto: Bratislava-Záhorská Bystrica
Developer: West Park, s. r. o.
Projektant: ateliér: Ing. arch. Jozef Ondriaš – A3A Architekti
Autori: Ing. arch. Jozef Ondriaš, Ing. arch. Ľubomír Novák, Ing. arch. Ondrej Ondriaš
Celková výmera pozemku: 10 360,00 m2
Zastavaná plocha: 2 775,00 m2
Obytná plocha: 7 232,85 m2
Obchody, hotely a priestory na voľný čas a zábavu: 3 120,64 m2
Plochy zelene: 5 670,62 m2
Parkovacie priestory: 942,90 m2
Projektová dokumentácia: dokumentácia pre územné konanie
Začiatok výstavby: 1. – 2. Q 2009
Ukončenie výstavby: 3. Q 2010
Predpokladané celkové náklady: približne 320 mil. Sk
Miriam Turancová
Vizualizácie: A3A Architekti







