Tesnosť mestskej prieluky ako výzva
V súčasnosti je trendom polyfunkčnosť, a to platí aj pre administratívne budovy. V Nitre na Palárikovej ulici nedávno vznikla polyfunkčná budova Gap-Centrum, ktorá popri kancelárskych priestoroch ponúka i stravovacie služby. Nevyužitá plocha územia intenzívne zastavanej časti mesta sa tak stala súčasťou centra. Členitá dispozícia objektu sa prispôsobuje okolitej zástavbe a rozvíja sa okolo priestranného átria v štyroch traktoch. Zasklený svetlík zastrešuje átrium a do stredu objektu prepúšťa denné svetlo.
Základný koncept
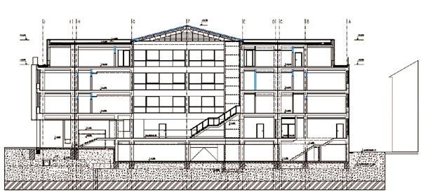
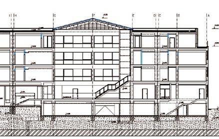
Pozemok s nepravidelným tvarom je vzhľadom na polohu medzi susednými objektmi pomerne stiesnený. Investor navyše žiadal jeho maximálne využitie. „Pre veľkú hĺbku traktov navrhovanej budovy sme ako základný kompozičný a funkčný prvok zvolili centrálne átrium so svetlíkom,“ objasňuje návrh jeden z architektov Rado Kachlík. Hlavným vchodom sa vstupuje do haly so štvorcovým pôdorysom – átria, ktoré odkrýva železobetónový skelet budovy. Skelet vyniká aj vďaka vizuálnemu potlačeniu zábradlí na pavlačiach. Výťah sa nachádza na protiľahlej strane haly. Architekti ho navrhli do priehľadného kubusu výťahovej šachty zo skla pre optické prepojenie s átriom. Schodiskové rameno vedľa výťahu spája prvé dve nadzemné podlažia.
![]() |
![]() |
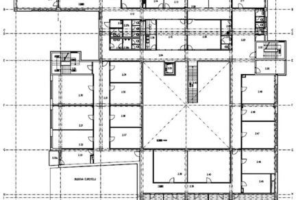
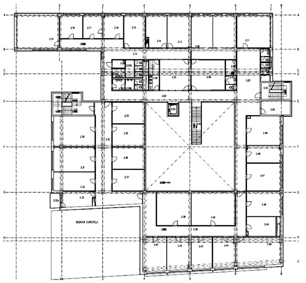
Dispozičné riešenie
Nový klient

Názov stavby: Gap-Centrum
Miesto stavby: Palárikova, Nitra
Architekti:
Ing. arch. Rado Kachlík
Ing. arch. Marián Kuruc

Projekt:
Global Group, a. s.
SH Final, s. r. o.
Investor: Gap real, spol. s r. o., Nitra
Generálny dodávateľ: IN VEST, s. r. o.
Okná: SCHÜCO
Presklené steny: SCHÜCO
Omietky: BAUMIT
Dodávateľ vykurovania: IN VEST, s. r. o.
Elektroinštalácie: IN VEST, s. r. o.
Exteriérové úpravy: IN VEST, s. r. o.
Zastavaný priestor: 29 296 m3
Zastavaná plocha: 1 639,95 m2
Administratívna plocha: 2 789,25 m2
Chodby, WC, schodiská, pomocné priestory: 1 912,95 m2
Plocha kuchyne so zázemím a jedáleň:
355,85 m2
Celková úžitková plocha: 5 058,05 m2
Plocha garáže – suterén: 748,50 m2
Plocha terás – štvrté NP: 226,90 m2
Počet parkovacích miest:
v suteréne 23 (1 pre imobilných občanov),
v exteriéri 16
Začiatok realizácie: 04/2005
Dokončenie realizácie: 06/2006
Celkové náklady: 150 miliónov Sk
(lh)
Foto: R. Kachlík, M. Kuruc














