Technologické centrum Binarium v Bratislave
Administratívna budova Binarium na bratislavských Starých gruntoch si dáva za cieľ rozvíjať inovácie, spoluprácu a kreativitu. Priestor od základov koncipovaný pre digitálne firmy a start-upy dosiaľ v meste chýbal. Ambiciózny plán vytvoriť v susedstve najväčšieho študentského kampusu na Slovensku centrum technologických inovácií podporuje aj neobyčajný dizajn interiérov a progresívne technické riešenia.
Nie je to tak dávno, čo bola dokončená zdanlivo nenápadná budova Binarium v úzkom páse medzi ulicou Staré grunty a areálom Slovenskej televízie. Zdanie však klame. Štvorpodlažná budova totiž ukrýva množstvo inovatívnych smart riešení a odvážny dizajn interiérov. Hlavnú náplň tvorí technologické start-up centrum, doplnené na prízemí nápaditou reštauráciou a nadväzujúcim kongresovým priestorom.
Poloha objektu na hranici univerzitného mestečka v Mlynskej doline nie je náhodná. Binarium má ambíciu prilákať talenty a novú generáciu inovátorov a lídrov, ako aj profesionálov z technologického odvetvia. Investor stavby, patriaci do realitného konzorcia rodiny Trnkovcov, si taktiež zakladal na nízkoenergetickom hľadisku použitých technológií.

Reštaurácia v štýle sci-fi
Väčšinu prízemia budovy zaberá reštaurácia White Dragon, prostredníctvom ktorej aj budova komunikuje so širokou verejnosťou. Určite aj to je dôvod, prečo sa práve v tomto priestore kládol veľký dôraz na estetické vyjadrenie. Ako sa priznáva architekt Marek Rudohradský, jeden so spolutvorcov priestoru, inšpiráciou bol pre neho postapokalyptický film Blade Runner. Priestor reštaurácie pozostáva z dvoch celkov predelených otvorenou chodbou, ozvláštnenou pestrofarebnými vlajočkami navodzujúcimi pocit ďalekej Ázie.
Interiér reštaurácie White Dragon.
Zaujmú najmä prípravne jedla, kávy a výčap, ktoré sú umiestnené v lodných kontajneroch s výraznou farebnosťou a čiernymi šambránami vo výdajniach. Dubové a čierne stoly s farebnými stoličkami sú rozmiestnené v priestore medzi oceľovým stĺporadím a obvodovými oknami. Odvážnym prvkom sú najmä neónové svietidlá umiestnené s koordinovaným chaosom, pričom k najzaujímavejším patria svetelné trubice dizajnované v tvare dáždnikov. Samotná reštaurácia poteší hlavne milovníkov ázijskej kuchyne, čo navodzuje aj ústredné logo.
Detail svietidiel v tvare dáždnika.
Variabilný priestor na kongresy i malé eventy
Priestor reštaurácie White Dragon voľne prechádza do kongresovej časti objektu. Konferenčný priestor s kapacitou viac ako 100 ľudí je ideálnym priestorom na organizovanie prezentácií, workshopov, diskusií, komunitných stretnutí, hackathonov, premietaní filmov či dokonca divadelných predstavení. Vo vybavení nemôže chýbať ani vysokokvalitný laserový kinoprojektor a priestorový zvuk. Vďaka mobilným stenám poskytuje priestor veľkú flexibilitu a je možné ho rozdeliť aj na niekoľko menších priestorov. Priestor sa dá doplniť aj modulárnym pódiom a na väčšie podujatia sú v budove k dispozícii aj priestory na dodatočný „meeting room“.
Kongresová sála v zmenšenom module.
Kancelárie aj coworking
Administratívna časť zaujme hneď recepciou v futuristicko-industriálnom štýle, ktorá je dostupná 24 hodín denne. Druhé podlažie je na určené na prenájom malým firmám a živnostníkom so zameraním na technológie, webové aplikácie a hry, kým tretie podlažie slúži ako tzv. coworking, teda „zdieľané“ kancelárie pre živnostníkov, kreatívcov a start-up firmy. Štvrté podlažie si ponechal samotný investor, ktorý tu má kancelárie viacerých firiem z vlastného portfólia. Binarium má k dispozícii aj samostatnú garáž pre nájomníkov a samostatnú pre návštevníkov. Samozrejmosťou administratívnej časti je aj vysokorýchlostný internet pre najnáročnejších a „zdieľané“ technické vymoženosti stavby. Hodnotu kancelárií zvyšuje aj dobré napojenie na dopravný systém a MHD.
Zaujímavé svietidlá vo futuristicko-industriálnom štýle.
Smart riešenia všade navôkol
Binarium má ako budova so smart riešeniami malý vplyv na životné prostredie, najmä vďaka dvojitej fasáde, ktorá zefektívňuje kúrenie a chladenie budovy. Žalúzie pomáhajú regulovať vnútornú teplotu, pričom poskytujú dostatok prirodzeného svetla v kanceláriách. Nízkoenergetické riešenia boli využité aj v reštauračnej časti. Odvod a prívod vzduchu do kuchyne je riešený samostatnou vzduchotechnickou jednotkou s rekuperáciou.
Technologické centrum Binarium
Miesto: Staré grunty 18, Bratislava
Investor a developer: Trnka Investments, s. r. o.
Autor návrhu: Ing. arch. Marek Rudohradský, Martina Rudohradská
Hlavný projektant: Ing. arch. Juraj Kerti
Výstavba: 10/2014 – 11/2016
Úžitková plocha: 4 416 m2
Zastavaná plocha: 1 713 m2
Generálny dodávateľ: Vexcolt Central Europe, s. r. o.
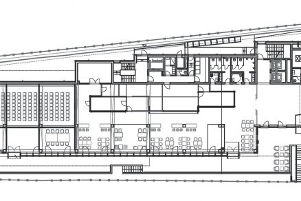
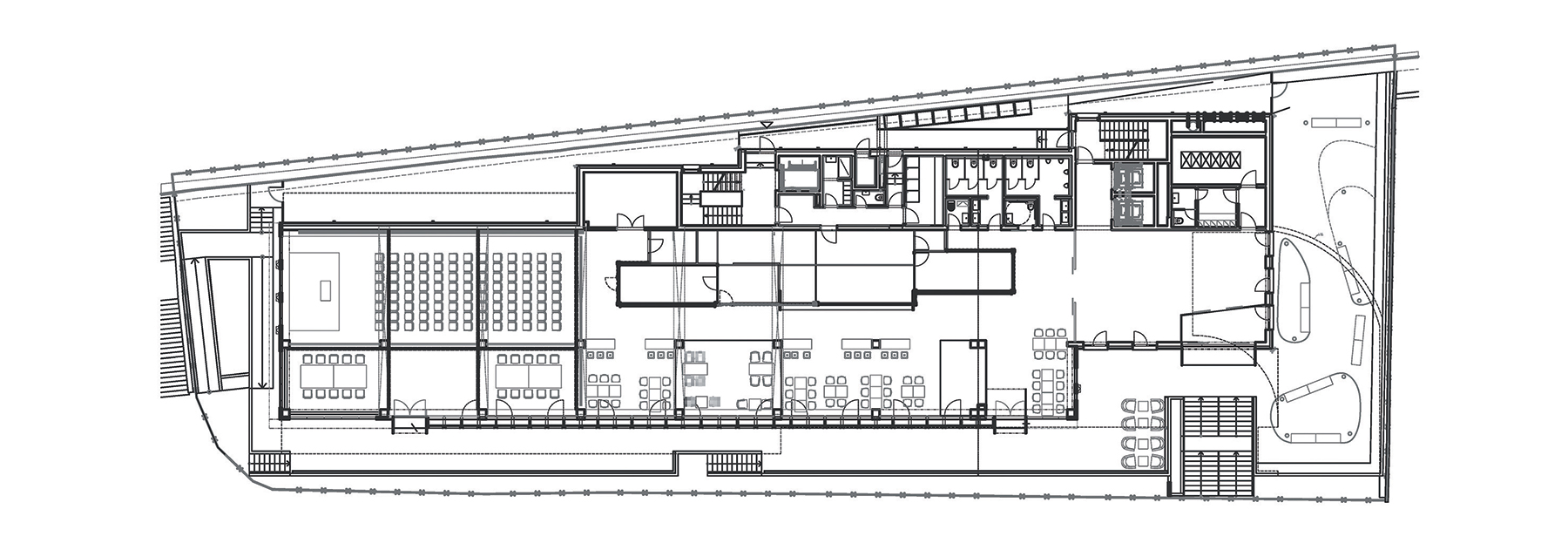
Pôdorys prvého nadzemného podlažia.
TEXT: Ivor Švihran
DOKUMENTÁCIA a FOTO: Trnka, s. r. o.
Článok bol uverejnený v časopise ASB 4/2018.
















