Sídlo spoločnosti ANASOFT
Tak, ako nenápadní ľudia môžu v sebe nosiť zaujímavé príbehy, aj stavby, ktorým venujete len letmý pohľad, môžu ukrývať zvláštny osud. A ako človek dokáže zmeniť svoj život, aj chátrajúcemu objektu dokáže dať architekt novú šancu zaradiť sa do skupiny dôstojných reprezentantov architektúry. Hovoriť o dôstojnosti je v prípade nasledujúcej stavby viac než opodstatnené. Rekonštrukcia či obnova totiž nezriedka býva cestou od jedného extrému k druhému. Často sa stáva, že zanedbanosť nahrádza násilná estetizácia. Architekt rekonštrukcie a dostavby sídla spoločnosti Anasoft sa však nedal zviesť romantickými predstavami svojich predchodcov a zvolil výrazovú striedmosť, ktorá zodpovedá novej administratívnej funkcii budovy.
JazvaObjekt má výhodnú polohu pri výjazde z Mlynskej doliny na Patrónku, ale rozhodne sa nemôže pýšiť svojou minulosťou. Obyvatelia mesta možno nedokončenú budovu registrovali iba ako jazvu miestnej zástavby. Niekoľko výmen majiteľov však neprinieslo žiaden výsledok. Problémy vyplývali aj z konfliktného umiestnenia pozemku na rozhraní katastra Starého Mesta a Karlovej Vsi. Pôvodne mal na parcele vyrásť neveľký penzión, nakoniec pozemok s hrubou stavbou odkúpila softvérová spoločnosť, ktorá nehnuteľnosť rekonštruovala a sústredila v nej svoje sídlo. Premena to však ani zďaleka nebola jednoduchá.

Aby sa predišlo nekomfortnému situovaniu vchodu do zadnej časti stavby a aby sa narušila masívna hmota betónovej steny, vsadil architekt do múru nástupné schodisko s markízou, ktorá je spojená s prekrytím hlavného vstupu. Markíza vytvára orientačný bod, navádzajúci človeka z parkoviska ku vchodu do budovy.
Premena
Hlavný problém však predstavovali existujúce dispozície, ktoré vyplývali z pôvodného zámeru zriadiť v objekte ubytovacie zariadenie. Stavbu pri rekonštrukcii a dostavbe formovali aj požiadavky požiarnej ochrany, ktoré sa odlišujú v prípade penziónu a kancelárskej budovy. Vnútorné priestory sa museli nadimenzovať na parametre zodpovedajúce administratívnym objektom. Pôvodné konštrukčné riešenie ponúkalo kombináciu stenového tehlového a železobetónového skeletu, ktorý bol paradoxne veľmi úzky, a preto neposkytoval možnosť na vytvorenie členitých dispozícií. V objemnejšej murovanej časti zasa stenový obvodový raster funguje ako statická opora stavby, preto rovnako nedovoľoval vytvoriť kancelársky dvojtrakt či trojtrakt. V užšej časti sa napokon utvorili open-space jednotky, zatiaľ čo v druhej vzniklo niekoľko neveľkých kancelárií s novým informačnotechnologickým jadrom, ktoré prechádza všetkými podlažiami.

Posunutím okien a vytvorením podhľadu autor odstránil ďalší problém – konzoly, ktoré v dôsledku pôvodnej realizácie vystupovali z fasády. Okenné pásy užšej časti vytvárajú spolu s tienením horizontálne línie kontrastujúce s tmavosivou hmotou vystupujúceho murovaného skeletu. Zatiaľ čo vlastná časť budovy má od hranice múru čistý výraz, samotný múr ponechal architekt v existujúcej podobe, povrch sa upravil iba cementovou stierkou. Má to tiež praktický význam pre ľahšiu údržbu pri zvýšenom pohybe áut.
![]() |
![]() |
![]() |
Architekt ako plastický chirurg
Najvyššie poschodie šesťpodlažného administratívneho objektu sa realizovalo ako nadstavba z oceľovej konštrukcie. Podľa slov architekta Pavla Pokorného sa tu mal vzhľadom na pomerne priestrannú terasu vybudovať penthouse, ale investori sa nakoniec rozhodli všetky priestory využiť pre potreby firmy. Na najvyššom podlaží sa preto sústredilo obchodné oddelenie. Interiérový koncept sa prispôsobuje korporátnemu imidžu spoločnosti. Kým v exteriéri stavil architekt na uhladenosť a jednoduchosť, interiér sa naproti tomu koncipoval na jednotlivých podlažiach v rozličných firemných farbách. Ich prelínanie možno najlepšie vidieť na medzipodestách schodiskovej šachty. Predstavujú orientačný bod pre zamestnancov, ktorí sa často pohybujú medzi jednotlivými poschodiami firmy.

Považujem však za dôležité, že sme mohli sprostredkovať klientovi radosť z toho, že dobre investoval a že sa jeho zamestnanci v novom prostredí dobre cítia,“ hovorí Pavol Pokorný. O kvalite práce architekta, nakoniec, svedčí fakt, že objekt nominovala odborná porota na ocenenie CE.ZA.AR 2009 v kategórii Rekonštrukcia a obnova stavieb.
![]() |
![]() |
![]() |
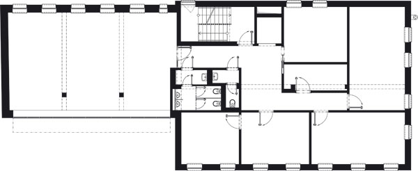
Pôdorys typického podlažia
Sídlo spoločnosti ANASOFT
Miesto: Mlynská dolina, Bratislava
Využitie: administratíva
Autor: Ing. arch. Pavol Pokorný
Spolupráca: Ing. arch. Mária Šmilňáková, Ing. arch. Jozef Bátor
Stavebná časť – HIP: Ing. Ivan Bučko
Investor: ANASOFT APR, s. r. o.
Prevádzkovateľ: ANASOFT APR, s. r. o.
Začiatok výstavby: 3/2008
Ukončenie výstavby: 12/2008
Čas výstavby: 9 mesiacov
Plocha parcely: 808 m2
Zastavaná plocha: 259 m2
Obstavaný priestor: 4 590 m3
Podlažná plocha: 1 448 m2
Počet nadzemných podlaží: 6
Počet podzemných podlaží: 1
Počet parkovacích miest: 50
Počet zamestnancov: 90
Generálny dodávateľ: Bau3Mex, a. s.
Generálny projektant: Pokorny architekti, s. r. o.
Statika: ST-PROJEKT, s. r. o.
Vonkajšie omietky: Baumit, s. r. o.
Spevnené plochy: Semmelrock, s. r. o.
Fasády: Ruukki Slovakia, s. r. o.
Okná: A&Z Consulting, s. r. o.
Vykurovanie: Heating, s. r. o.
Protipožiarna ochrana: Forbe, s. r. o.
Elektroinštalácie: ELSD, s. r. o.
Vzduchotechnika: Trade service, s. r. o.
Sanita: Ideal Standard, s. r. o.
Anna Salvová
Foto: Dano Veselský
Článok bol uverejnený v časopise ASB.


















