S-BOX ako príklad kontajnerovej výstavby
Úspornosť výstavby sa nemusí vždy hodnotiť len cez vyspelé špičkové technológie s inteligentným ovládaním zabudované do objektu. O úspornej výstavbe môžeme hovoriť aj vtedy, keď sú stavby flexibilné, ľahko sa prispôsobujú novej funkcii, alebo ich dokonca možno rozobrať, preniesť za primerané náklady na úplne iné miesto a tam opätovne zmontovať.
Kontajnerový spôsob výstavby je celosvetovo veľmi populárny, u nás sa skôr spája s pomerne nevzhľadnými bunkami, ktoré si stavebné spoločnosti premiestňujú z jedného staveniska na ďalšie. Ide primárne najmä o funkčnosť a estetika vôbec nie je dôležitá. S-Box z dielne pezinského Karpatského ateliéru pod vedením architekta Vladimíra Halamíčka je však príkladom, že dočasná stavba sa dá zvládnuť aj s elegantným výsledkom.
Vrátane všetkých povolení výstavba objektu na potreby architektonického ateliéru a realitnej kancelárie trvala len päť mesiacov. Okrem ceny (130 000 eur bez DPH) je na S-Boxe najpríťažlivejšia práve jeho tvarová jednoduchosť a nadčasovosť, striedma farebnosť, a pritom nápadité použitie materiálov a vybavenia. To, čo na veľkých stavbách administratívnych budov pôsobí fádne až opozerane, to na takomto malom objekte vyznieva sviežo a odvážne. Navyše, jeho prvé osadenie v brezovom hájiku v centre Pezinka veľa prezrádza o cite architekta pre kompozíciu a zvolenie vhodnej mierky. Áno, S-Box trochu pripomína klasické unimobunky, ale vo veľmi sviežom a súčasnom vyhotovení. Nedá sa to povedať inak: S-Box pôsobí dojmom, akoby sa jeho autor chcel len trochu pohrať, vyskúšať si použitie materiálov, na ktoré bežní klienti pri rodinných domoch vôbec nemajú (na škodu veci) odvahu. A popri tom, akoby mimochodom, sa mu podarilo vyriešiť aj priestorové potreby svojho ateliéru. Univerzálnosť S-Boxu je aj v tom, že z pôvodných kancelárskych priestorov hocikedy môže vzniknúť rodinný dom alebo môžu dostať aj inú funkčnú náplň.
Bez pivnice
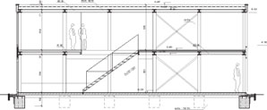
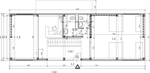
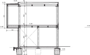
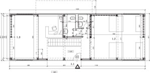
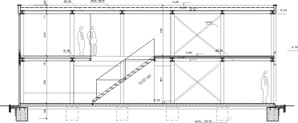
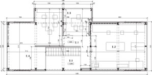
Dvojpodlažný objekt má jednoduchý obdĺžnikový tvar v pôdoryse aj v pohľadoch. Jeho maximálne plošné rozmery sú 15,42 × 6,69 m. Je riešený ako jeden dilatačný celok bez podpivničenia. Opláštený skelet rámového typu tvoria oceľové nosníky typu HEA spájané skrutkovaním. Skelet je priečne zavetrený oceľovými tiahlami a obvodovým plášťom z PUR panelov hrubých 100 mm. Stropnú a strešnú konštrukciu tvoria oceľové profily typu IPE, na ktoré sa ukladala ľahká podlahová strešná skladba. Základy sú z prefabrikovaných železobetónových pätiek v kombinácii so základovými pásmi.
Interiér bez okrás
Strecha je plochá, spádovaná, jednoplášťová so štrkovým násypom. Priestory v interiéri oddeľujú plné sadrokartónové alebo sklenené priečky. Podlahy sú plávajúce s pochôdznou vrstvou z PVC krytiny a koberca. Na prvom nadzemnom podlaží sa aplikovala protiradónová hydroizolačná vrstva. O čo bola rýchla montovaná výstavba lacnejšia, o to viac sa mohlo investovať do kvalitného vybavenia. Napríklad okná a francúzske okná sú na S-Boxe hliníkové s izolačným dvojsklom. Interiér chránia proti preslneniu exteriérové alebo interiérové žalúzie. Jeho industriálnemu charakteru s priznanými konštrukciami sekunduje jednoramenné priame schodisko pozvárané z oceľovej pásoviny, rúrok a jaklových profilov.
–>–>
| S-Box, Pezinok Investor: Vista Real, s. r. o. Architekt: Karpatský ateliér, s. r. o., Ing. arch. Vladimír Halamíček Štúdia a projekt: 2006 Realizácia: 2008 Realizácia: 10/2006 – 02/2009 Oceľová konštrukcia a obvodový plášť: TERMSTAV a. s. Podlahová plocha: 160 m2 (2 podlažia) Investičné náklady: 130 000 € |
![]() |
![]() |
![]() |
![]() |
TEXT: Mária Nováková
FOTO A DOKUMENTÁCIA: Ing. arch. Vladimír Halamíček
Článok bol uverejnený v časopise ASB.




















