Ruiny prebraté k životu – Silo v Kodani
Ako využiť potenciál industriálnych či historických schránok architektúry, pracovať s ich identitou a nájsť im uplatnenie v 21. storočí? V tomto článku odhalíme novú identitu niekdajšej sýpky.
V dánskej metropole Kodaň kolaudovali v máji tohto roku nové Silo. Budova si zachovala názov pôvodného účelu, no získala novú obytnú náplň. Reč je o konverzii najväčšej stavby prístavného komplexu Nordhavn. Areál pôvodne slúžiaci kontajnerovej doprave a vyhliadkovým lodiam sa rozprestiera na polostrove vzdialenom len 4 km od historického centra mesta. Developer vytušil dobrú adresu s potenciálom pre vznik novej urbánnej štvrte na mieste pôvodnej industriálnej štruktúry.
Podľa vzoru prístavu v Christianii s množstvom architektonických chuťoviek je Nordhavn ďalší ambiciózny projekt výhľadovo na 40 – 50 rokov. V poradí druhý najväčší po Ørestade na juhu mesta má rozlohu až 3,6 milióna m2. Ponúknuť chce domov pre 40 000 ľudí a vytvoriť 40 000 pracovných miest. S víziou „udržateľného mesta budúcnosti“ bola vyhlásená medzinárodná súťaž, do ktorej sa zapojilo 179 návrhov. Pod taktovkou víťazného zoskupenia Cobe, Sleth, Polyform a Rambøll bol vytvorený projekt, ktorý dosahuje na najvyššiu zlatú certifikáciu DGNB – nemeckého najkomplexnejšieho hodnotiaceho systému udržateľnosti. Zákazky na prestavbu 50-ročnej sýpky sa ujala silná lokálna formácia Cobe, ktorá už počas svojej krátkej kariéry získala skúsenosti z veľkých realizácií.
Polouzavreté balkóny ochránené z viacerých strán pôsobia vďaka skoseniam pomerne plytko. Tak bola podstatná vlastnosť sýpky, jej štíhla proporcia, zachovaná.
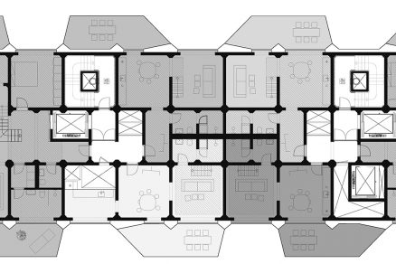
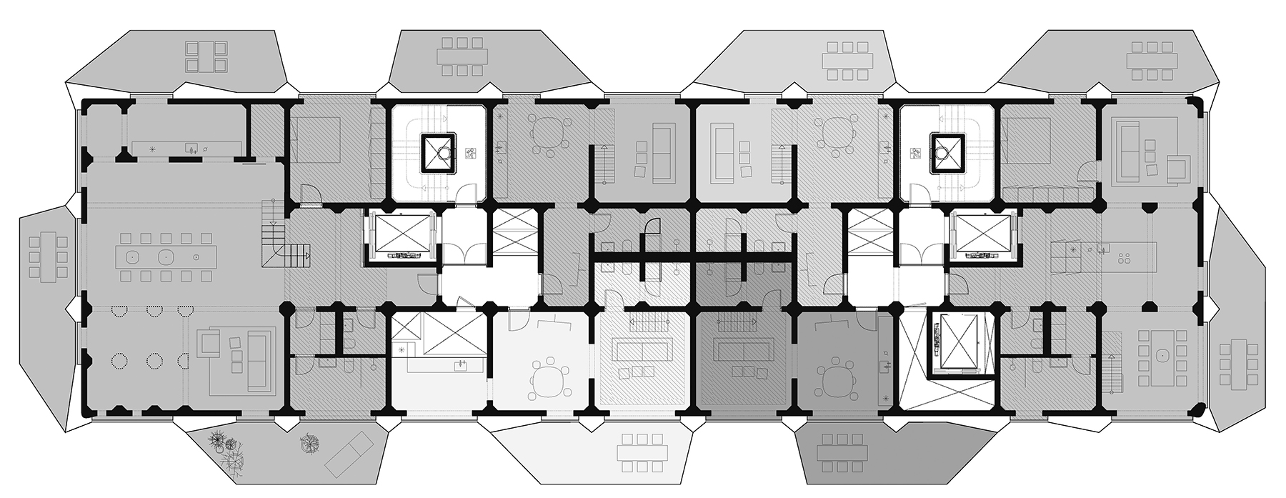
Na začiatku si architekti museli zodpovedať zopár dôležitých otázok. Priestorové dimenzie a podmienky pre bývanie sa oproti skladovacej nádrži na obilie značne odlišujú. Jednotný monolitický plášť sila bolo potrebné výrazne poprerušovať okennými otvormi. Na druhej strane špecifický konštrukčný skelet predurčil pôdorysu štvorcový raster s veľkosťou 4 x 4 metre. V jasných mantineloch vytvorili architekti viacero variantov bytov a tiež mezonetov na 17 poschodiach. Spolu 38 jedinečných bytových jednotiek sa pohybuje v slušnej výmere od 106 do 401 m2. Vysoké obilné nádrže ponúkli značnú voľnosť vo vytváraní nových výšok podlaží v rozpätí od 3,5 m až po 7 m v najluxusnejších apartmánoch. Ich nezvyčajne pestré striedanie po podlažiach je inšpirované výškovým členením originálneho schodiskového bloku.
Pôdorys 10. nadzemného podlažia. Dánska výškovka je rozdelená na dve sekcie obsluhované dvoma vertikálnymi jadrami, na ktoré sú napojené 1 až 3 byty a mezonety. Skoro všetky majú v rámci dispozície balkón, najväčšie apartmány dokonca tri a často sú prístupné z dvoch miestností.
Ďalšou veľkou výzvou bola otázka identity. Správne odhadnutie miery nových zásahov v kombinácii s rešpektom k niekdajšiemu s víziou kontinuity. Cobe architekti sa rozhodli, že Silo bude priemyselný pôvod deklarovať vo svojich útrobách. V interiéri naň odkazuje všadeprítomná vertikalita a najmä surová krása betónových povrchov na prízemí a v niektorých bytoch.
Veľkou témou projektu bola fasáda, ktorá dostala úplne nový obal a tým aj nový charakter. Toto rozhodovanie okrem iného výrazne ovplyvnili podmienky udržateľnosti so súčasnými kritériami energetickej efektívnosti. Radikálna betónová plocha sýpky sa tak skryla pod zostavu montovaných sendvičových panelov z pozinkovanej ocele. Súčasne s integrovaným vonkajším zateplením a vodonepriepustnou vrstvou vznikla fasáda vzdorujúca nepriazni počasia splňujúca najvyššie energetické nároky.
Z betónového solitéru je majestátna oceľová socha, ktorá svojím fasádnym reliéfom vhodne zapadá do susedstva stavieb s typicky kodansky štruktúrovanými povrchmi. Jeho priamym susedom je známy parkovací dom so zelenou fasádou a strešným ihriskom Park + play od ateliéru Jaja Architects.
Fasádna skladačka tvorená striedaním balkónových a okenných prefabrikátov obsahuje veľké množstvo faziet. Okrem charakteristickej formy pomáhajú tieniť a hlavne chránia proti vetru. Rozsiahle presklenia by však boli zbytočné, keby balkónové platne neboli perforované a neumožnili panoramatický výhľad na prieliv Øresund so známym mostom – spojkou so švédskym Malmö. Kráľovský výhľad je vďaka zvonka osadeným rámom zasklenia delikátne ohraničený. Dnešný žiarivý lesk pozinkovanej ocele želateľne zrkadlí vodu i svoje okolie a robí z novej fasády živý premenlivý obal. Vplyvom morského vzduchu sa neskôr počíta s patinovaním materiálu, ktorý aj z diaľky pripomenie industriálne korene stavby.
Skúškou schopností architekta, zručnosti stavebníka a bystrosti investora bolo aj vyriešenie nadväznosti novej fasády na nerovnosti originálu. Počas prestavby sa totiž prišlo na odchýlku prízemia oproti streche spôsobenú krútením stavby o 14 centimetrov. Namiesto jednoduchšieho komplexného prepláštenia bola zvolená náročnejšia cesta. S ohľadom na kontinuitu a myšlienkovú koncepciu projektu sa nový montovaný kabát Sila zložito vrstvil.
Ešte pred osádzaním zmontované fasádne panely pokryli Silo novým obalom zo všetkých jeho strán. Pri bližšom pohľade je však cez zasklenie penetrovaný monolit bývalej sýpky čitateľný.
Jediným výrazným zásahom do siluety Sila je nadstavba, ktorou elegantná výškovka získala novú korunu. Celé vrchné podlažie zaujala reštaurácia s jedinečným 360-stupňovým výhľadom a možnosťou východu na strešnú terasu. Jej celozasklený obvod reflektuje za svetla oblohu a za tmy sa mení na žiariaci maják. Okrem najvyššieho podlažia je verejnosti prístupný aj parter prichystaný flexibilne slúžiť pre spoločenské podujatia. Momentálne je v jeho priestoroch prezentovaný ďalší rozvoj Nordhavnu, kde je nasledujúcou úlohou Cobe architektov vyprojektovať stanicu metra s prevádzkou od roku 2020.
Vedúci ateliéru Dan Stubbergaard vyzdvihuje dôležitosť premiešania rezidenčnej a verejnej funkcie Sila pre vznik aktívneho miesta dýchajúceho životom po celý deň.
Odvážna a nákladná konverzia ponúka luxusnú obytnú plochu v rozsahu 10 000 m2. Štyri roky trvajúca realizácia zmenila monolitický výraz originálu skoro na nepoznanie. Zavážili dnešné podmienky úspory energií, exkluzivita či dopyt trhu. Pôvod a podoba stavby sa stali nielen estetickým potenciálom konverzie, ale umožnili invenčne pracovať aj s jestvujúcou priestorovou a konštrukčnou osnovou. Štúdio Cobe predviedlo, ako je možné narábať s industriálnym dedičstvom, oživiť ho, experimentovať s ním. Odhaľuje jeho limity a ukazuje výhody prinášajúce jedinečné priestorové kvality. V očiach mnohých sa z „industriálneho odpadu“ stala hrdá prístavná dominanta, ktorá dnes slúži ako prirodzený orientačný bod a predzvesť budúcej premeny areálu.
Text: Beáta Paňáková
Foto: Rasmus Hjortshøj – COAST Studio
Článok bol uverejnený v časopise ASB 8-9/2017.




















