Revitalizácia starej Mlynice a Sila
Nie každá cenná industriálna architektúra v Bratislave má nutne svoj smutný príbeh. Platí to aj pre Mlynicu, nachádzajúcu sa v niekdajšom areáli výroby ľahkých stavebných hmôt, ktorú developer – spoločnosť ise – revitalizoval na atraktívnu multifunkčnú budovu. Na jar by sa mali začať práce na vonkajších plochách, a to výsadbou a úpravou existujúcej zelene a parkovacích plôch.
Jednotlivé priestory začali novým majiteľom odovzdávať v januári a tí si ich postupne zariaďujú. V plnej prevádzke by Mlynica mohla byť v lete. „Kým lofty sú už predané, z komerčných priestorov zatiaľ kúpila jeden advokátska kancelária a ďalší finanční poradcovia,“ hovorí Oto Bortlík, konateľ stavebnej spoločnosti ise, s . r. o., pre ktorú nie je Mlynica prvou developerskou aktivitou.
Mlynica sa profiluje ako multifunkčná budova.
„Záujemcov máme na všetky kancelárske priestory, čakajú však na zapísanie aktuálneho stavu do katastra.“ Investor zdôrazňuje, že projekt je úspešný aj obchodne. Pôvodne plánovaná investícia si síce vyžiadala zvýšenie nákladov, ale tie sa odzrkadlili vo vyššom štandarde budovy a v lepšej využitelnosti pôvodných priestorov.
Od začiatku bolo zámerom zachovať maximum z pôvodnej budovy.
Developer neváhal vyslať za poznaním svoj tím do New Yorku, kde je možné vidieť, ako efektívne revitalizovať a následne užívať staré budovy podobného charakteru. „Nepreberné množstvo budov, ktoré sme navštívili v New Yorku, nám ukázalo, ako možno efektívne prevádzkovať budovy podľa súčasných štandardov, a pritom zachovať originálny pôvab starých priemyselných stavieb,“ dopĺňa Oto Bortlík.
K pôvodnému schodisku v zadnej časti budovy je pristavaný výťah.
Multifunkčný priestor
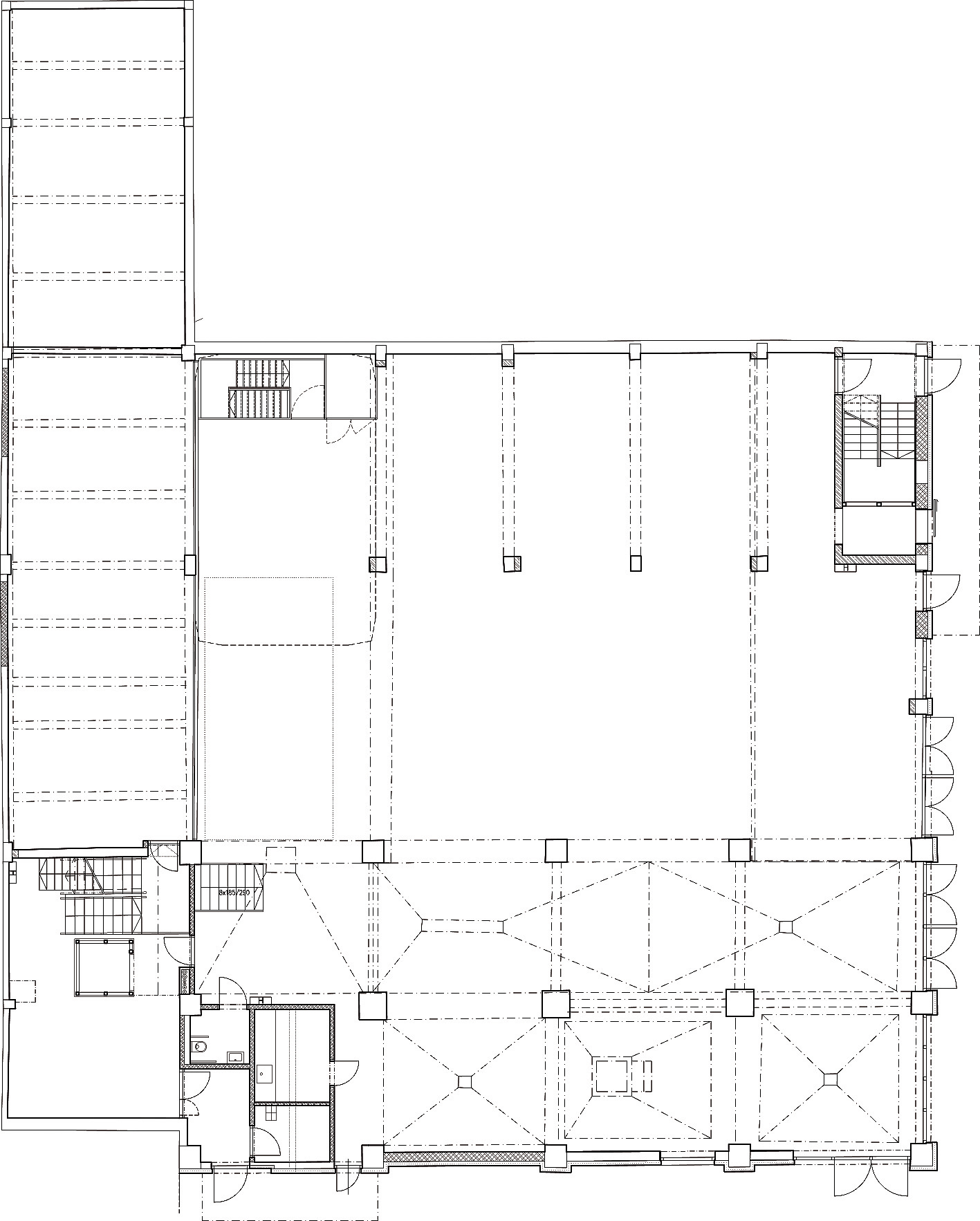
Srdcom Mlynice je centrálny viacúčelový priestor určený na spoločenské podujatia, výstavy, workshopy, semináre, konferencie, firemné eventy, módne prehliadky a pod. Výška tohto priestoru je členitá, pohybuje sa od 4,5 do 11 metrov, a jej súčasťou sú pôvodné masívne železobetónové stĺpy a stropy. Konštrukcia obsahuje niekoľko zaujímavých prvkov, ku ktorým patria aj vyústenia bývalých zásobníkov pokračujúcich do horných úrovní objektu.
Na prízemí vznikol eventový priestor, na štyroch poschodiach sú kancelárie a tzv. coworkingové priestory a na dvoch horných poschodiach je šesť loftov.
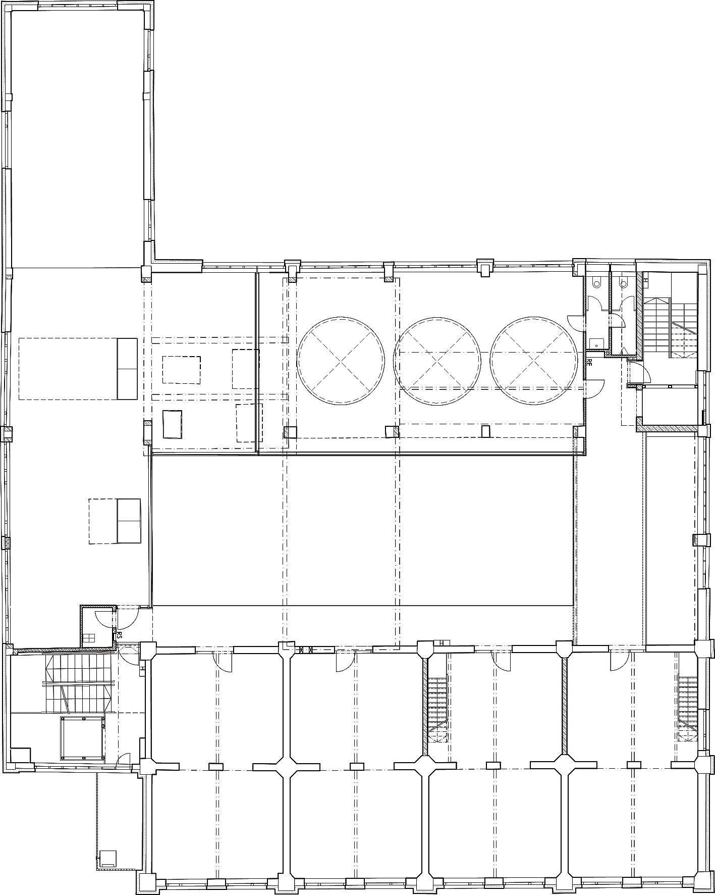
K ďalším konštrukčným unikátom patria: sklenené kopilitové steny na 2. NP, drevené hrazdené priečky (deliace priečky) na 3. – 4. NP, zasklená podlaha tvorená tromi kruhmi na 4. NP, pričom sa v každom kruhu nachádza 297 sklenených šošoviek s priemerom 12 cm, ako aj drevené lávky vedúce z kancelárie na 5. NP do „vagóna“ (podlhovastá kancelária) a na „vagón“, ktorý je zároveň oddychovou zónou. Rozloha tohto priestoru je približne 700 m2 vrátane prevádzkových priestorov a hygienického zázemia. Vyššie podlažia budú patriť obchodným potrebám spoločností i jednotlivcov.
Drevené lávky vedúce z kancelárie na 5. NP do „vagóna“ (podlhovastá kancelária) a na „vagón“, ktorý je zároveň oddychovou zónou.
Táto administratívna časť ponúkne na horných podlažiach viacero typov kancelárskych priestorov. Rozloha jednotlivých samostatných kancelárskych blokov sa pohybuje od 42 m2 až do 277 m2 a tieto priestory sú prístupné zo vzdušného átria. Súčasťou átriového priestoru sú otvorené veľkoplošné kancelárie, ktoré sa budú prevádzkovať „coworkingovým“ systémom aj s tzv. hotdesk zónou.
Na prízemí vznikol eventový priestor, na štyroch poschodiach sú kancelárie a tzv. coworkingové priestory a na dvoch horných poschodiach je šesť loftov.
Atraktívne bývanie v lofte
Mlynica ponúkne zaujímavé bývanie v podobe šiestich loftov s veľkorysou svetlou výškou a viacúrovňovým vertikálnym členením. Rozloha loftov je od 70 m2 až do 100 m2. Ku každému loftu bude patriť aj veľká terasa s výhľadom na mesto a široké okolie. Majitelia bytov si budú môcť užívať svoje súkromie a zároveň budú súčasťou komunity. Projekt Mlynica chce byť platformou komunitného života, kreatívnej práce, ale aj miestom na priateľské stretnutia. Charakter budovy umožňuje nevšedné, ale flexibilné usporiadanie priestoru.
Spoločnosť ise sa zatiaľ plne sústreďuje na zabehnutie Mlynice, druhú časť projektu, premenu Sila bude finalizovať v neskoršom období. Silo má tiež vydané stavebné povolenie a práce na ňom sa začali odstránením prístavby, zrealizovaním prípojok a vybudovaním parkoviska. Pôvodne investor uvažoval o Sile ako o firemnom sídle, napokon si zoberie dve podlažia v Mlynici.
REVITALIZÁCIA STAREJ MLYNICE A SILA
Miesto: Turbínova ul., Bratislava-Nové Mesto
Investor: ise, s. r. o.
Architekt: GutGut, s. r. o.
Realitný konzultant: IURIS, s. r. o.
Začiatok a koniec revitalizácie: 4/2016 – 10/2017
Úžitková plocha: 3 800 m2
![]() |
![]() |
| Pôdorys 1. NP | Pôdorys 4. NP |
TEXT: ĽUDOVÍT PETRÁNSKY
DOKUMENTÁCIA: GUTGUT
FOTO: BOYSPLAYNICE PHOTOGRAPHY
Článok bol uverejnený v časopise ASB 1-2/2018.





















