Reurbanizácia štvrte Rheinauhafen s ocenenými vežami
Administratívna budova Kranhaus 1 od autorov z BRT Architekten Bothe Richter Teherani a Linster Architekten bola v Cannes vyznamenaná Oskarom pre nehnuteľnosti MIPIM Award.
Za posledných 100 rokov bol Kolín v zásade charakterizovaný Rýnom, Dómom a oblúkovitou oceľovou konštrukciou mostu Hohenzoller. Nepotrvá však dlho a Kolín bude bohatší o ďalšiu výraznú dominantu – tri do pravého uhla vyčnievajúce „žeriavové domy“ na polostrove bývalého Rýnskeho prístavu, iba kilometer južne od Dómu. Zatiaľ je však tento komplex, pozostávajúci z jednej obytnej a dvoch administratívnych budov, nedokončený. Na severe sa bude ešte v roku 2010 realizovať výstavba obytného domu Pandion Vista a v najjužnejšej časti prebieha výstavba objektu Kranhaus Süd.
Rozhodnutie odbornej verejnosti v prospech objektu Kranhaus 1, ktorý nominovala medzinárodná porota, však určite nesúvisí iba s nezvyčajným tvarom budovy pripomínajúcim výškové budovy El Lissitzkého (v roku 1924 vyvinul ruský maliar a architekt víziu administratívnych veží podopierajúcich oblaky). Rozhodujúcim pre udelenie ceny MIPIM Award bola určite aj mimoriadna urbanistická poloha v bývalom riečnom prístave.
Štvrť Rheinauhafen patrí k jedným z najdôležitejších kolínskych urbanistických projektov 19. storočia. Slávnostne bola otvorená v roku 1898 po 20 rokoch výstavby. Po 2. svetovej vojne však pôvodný prístav v tejto štvrti stratil svoju funkciu a ostali po ňom opustené sklady a zásobníky, čo viedlo nepriaznivej urbanistickej situácii.
S cieľom trvalého odstránenia tohto stavu vyhlásilo mesto Kolín v roku 1992 súťaž na vytvorenie novej urbanistickej štruktúry na 30-hektárovom pozemku dlhom 2 km a širokom 200 m, v ktorej má byť miesto na pamiatkovo chránené staré budovy i novostavby s kultúrnou, obchodnou a obytnou funkciou.
–>–>
Víťazmi súťaže sa stali architekti Alfons Linster z Trieru a Hadi Teherani z Hamburgu. Teherani už vtedy navrhol tri významné „mostové domy“ inšpirované motívmi žeriavov, respektíve mestských brán, ktoré však jednou nohou stáli priamo v Rýne.

Začalo sa s výstavbou podzemnej garáže, ktorá sa tiahne takmer po celej dĺžke prístavnej hrádze, a preto sa dnes považuje za najdlhšiu podzemnú garáž v Európe. Mesto Kolín ako staviteľ si vytýčilo úlohu uľahčiť investorom rozhodnutie o vstupe do projektu pomocou infraštruktúry. Spolu s nosnou konštrukciou podzemnej garáže boli vybudované základy budúcej zástavby, takže prípadné problémy s podzemnou alebo záplavovou vodou sa vyriešili. Nielen podzemná garáž, ale aj podzemné podlažia ostanú vďaka vodotesným uzáverom na všetkých vstupoch a vjazdoch suché až do výšky hladiny 11,30 m. Na porovnanie: storočná voda v 20. storočí vystúpila na úroveň 10,70 m a priemerná hladina Rýna dosahuje 3,50 m.
Kranhaus 1 – stred
Zatiaľ čo prvé novostavby v oblasti štvrte Rheinauhafen boli už dávno obývané, výstavba objektu Kranhaus 1 sa začala až koncom roku 2006. Rovnako ako pri objemovo identických trojičkách, ktoré projektovali architektonické kancelárie Bothe Richter Teherani a Linster Architekten, tvorí Kranhaus 1 hmota s výškou 60 m, dĺžkou 70 m a šírkou 34 m zalomená do pravého uhla, ktorá je zo strany Rýna podopretá štíhlou výťahovou vežou, okolo ktorej sa vinie zasklené únikové schodisko.
Hlavná veža s úžitkovou plochou asi 600 m2 je konštrukčne riešená ako pomerne konvenčný oceľobetónový skelet. Oproti tomu päť najvyšších podlaží, ktoré vo dvoch traktoch (každý s plochou asi 2 000 m2) vyčnievajú do diaľky ako hrazdená konštrukcia, ležia medzi hlavnou a výťahovou vežou na komplexnej mostovej konštrukcii z predpätých oceľobetónových dutých nosníkov. Spodné podlažie horizontálnej časti, ktorá je vykonzolovaná vo výške 40 m do dĺžky 32 m, je uzavreté fasádou z kaziet z hliníkového plechu. Za touto fasádou sa skrývajú potrebné skladovacie plochy, ktoré si nenašli miesto v podzemnom podlaží vyplnenom garážou.
Fasáda a vnútorná klíma

Pri rozhodovaní zavážila okrem nízkych realizačných nákladov a nízkych nákladov na údržbu aj požiadavka na otvárateľné okenné krídla s priamym kontaktom s exteriérom, aby sa na všetkých podlažiach dala všetkými zmyslami vycítiť blízkosť Rýna. Vzhľadom na vypustenie vonkajšieho skleneného plášťa však bola vonkajšia protislnečná ochrana vystavená veľkému náporu vetra, typickému pre toto miesto. Schüco vyriešilo tento problém dvoma opatreniami: za prvé, boli použité špeciálne tvarované a vo veternom kanáli testované vonkajšie lamely BEB 80 RT, za druhé, rámové spevnenia fasádnych elementov sa nachádzajú na vonkajšej strane budovy, kde tvoria rám lícujúci s protislnečnými lamelami, ktorý poskytuje účinnú ochranu proti bočným účinkom vetra.
Úspora dosiahnutá zrušením druhého skleneného plášťa bola investovaná do nákladnej koncepcie technických zariadení budovy, ktoré pomocou celoplošných a individuálne nastaviteľných chladiacich stropov (chladiace médium tvorí podzemná voda z rýnskej studne hlbokej asi 30 m ), ako aj pomocou konvenčných konvektorov zabezpečujú príjemnú vnútornú klímu.
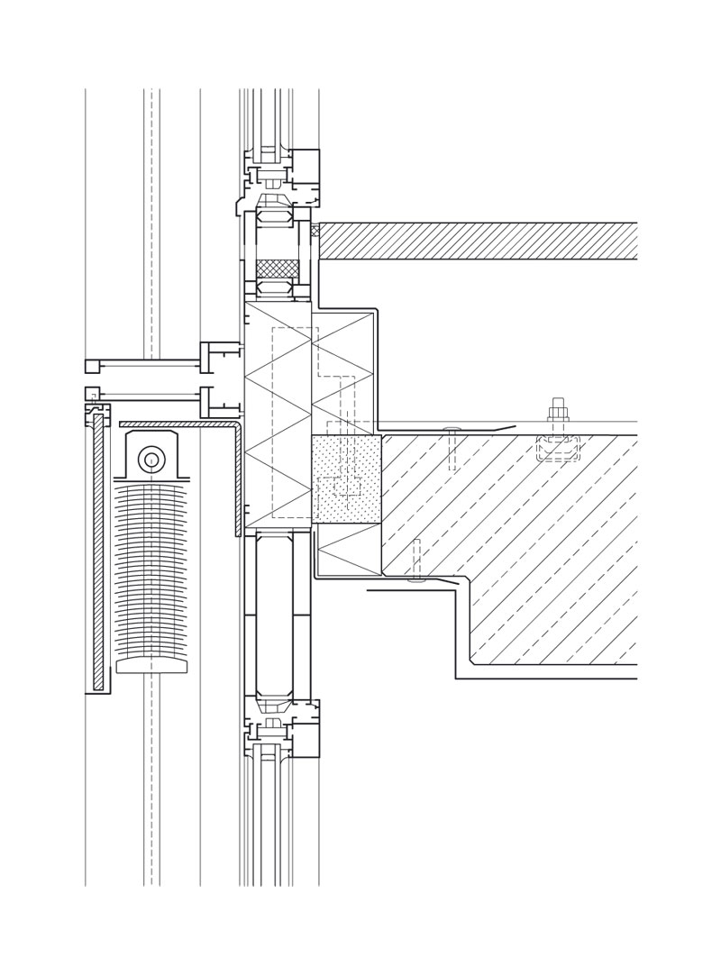
Fasádne elementy v špeciálnej konštrukcii, detail, M 1 : 10
| Elementová fasáda Schüco v špeciálnej konštrukcii Fasádu z elementov vyvinula spoločnosť Schüco International KG v Bielefelde ako špeciálnu konštrukciu. V statických vystuženiach hliníkových fasádnych profilov umiestnených zvonka je vo výške stropu uložená protislnečná ochrana Schüco. Žalúzie sú chránené pred klimatickými vplyvmi sklenenou tabuľou, vsadenou do vonkajšej konštrukcie zavetrenia. Okná sú napriek centrálnemu prívodu a odvodu vzduchu vybavené otváravými otočnými krídlami – taktiež so špeciálnou konštrukciou. Viditeľné krídlo má zvonka zošikmenú sklenenú lištu. |
Architektúra ako značka
Spojením neobyčajného tvaru budov s hospodárnym štandardom a jedinečným miestom pri vode vznikla nehnuteľnosť, ktorá sa bude dlhodobo dobre prenajímať. To je aspekt, ktorý zohral veľkú úlohu aj pri udeľovaní ceny MIPIM Award.
V tejto súvislosti nie je prekvapujúce, že všetky tri žeriavové domy boli zhora nadol prenajaté – horné podlažia boli obsadené ako prvé – najčastejšie majetnými advokátskymi a daňovými kanceláriámi. Rozhodujúce pre dobrú akceptovateľnosť žeriavových domov však je predovšetkým ich urbanistické začlenenie.
| Objekt Project Kranhaus 1 Miesto: Rheinauhafen, Köln/Nemecko Investor: Partner AG, Düsseldorf/Nemecko Čas výstavby: 11/2006 – 09/2008 Architekti: BRT – Bothe Richter Teherani, Hamburg/Nemecko, Linster Architekten, Trier/Nemecko |
Pozdĺžny rez, M 1 : 1000
Priečny rez, M 1 : 1000
Roland Pawlitschko
Zdroj: Schůco International KG













